Tu correo electrónico ha sido enviado.



Aspectos destacados
- Ubicación en la calle del Corazón de María, distrito urbano consolidado.
- Conexión mediante Metro (Prosperidad y Alfonso XIII), autobuses EMT y acceso a la M-30.
- Entorno próximo al Auditorio Nacional de Música y al Parque de Berlín.
Espacio disponibles(1)
Mostrar el precio como
- Espacio
- Tamaño
- Duración
-
Precio
- Uso
- Acondicionamiento
- Disponible
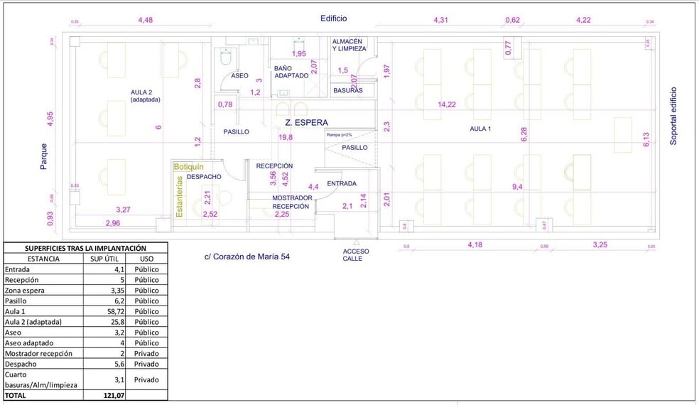
Ref.: PR99559890 Local comercial destinado a centro educativo en traspaso, actualmente en funcionamiento como academia de programación y robótica. Se sitúa en la calle Corazón de María, en el barrio de Prosperidad, en Madrid. El inmueble dispone de una superficie construida de 140 m2. La distribución interior incluye dos aulas tecnológicas destinadas a formación educativa. El espacio se encuentra reformado y adaptado para actividad docente. Cuenta con licencias en vigor para el desarrollo de la actividad. La academia opera con más de 60 alumnos recurrentes y una facturación aproximada de 4.500 €/mes, con actividad concentrada en horario de tarde. El entorno es urbano y consolidado, con uso mixto residencial y comercial. Se localiza en la calle Corazón de María, dentro del barrio de Prosperidad, una zona con presencia de centros educativos, comercios de proximidad y servicios.
- El precio no incluye gastos de comunidad e impuestos
- Ubicado en línea con otros locales
- Almacenamiento seguro
- Instalaciones de baño arrendadas
- Acceso de minusválidos
- Local educativo en funcionamiento.
- Licencias de actividad vigentes.
- Construido totalmente como Espacio comercial estándar
- Aire acondicionado central
- Listo para usar
- Escaparate
- Traspaso 59.000 €.
- Dos aulas tecnológicas.
- Actividad educativa consolidada.
| Espacio | Tamaño | Duración | Precio | Uso | Acondicionamiento | Disponible |
| Planta baja | 140 m² | Negociable | 171,43 € /m²/año EXCL 14,29 € /m²/mes EXCL 24.000 € /año EXCL 2.000 € /mes EXCL | Local | Construcción total | 30 días |
Planta baja
| Tamaño |
| 140 m² |
| Duración |
| Negociable |
|
Precio
|
| 171,43 € /m²/año EXCL 14,29 € /m²/mes EXCL 24.000 € /año EXCL 2.000 € /mes EXCL |
| Uso |
| Local |
| Acondicionamiento |
| Construcción total |
| Disponible |
| 30 días |
Planta baja
| Tamaño | 140 m² |
| Duración | Negociable |
|
Precio
|
2.000 € /mes EXCL |
| Uso | Local |
| Acondicionamiento | Construcción total |
| Disponible | 30 días |
Ref.: PR99559890 Local comercial destinado a centro educativo en traspaso, actualmente en funcionamiento como academia de programación y robótica. Se sitúa en la calle Corazón de María, en el barrio de Prosperidad, en Madrid. El inmueble dispone de una superficie construida de 140 m2. La distribución interior incluye dos aulas tecnológicas destinadas a formación educativa. El espacio se encuentra reformado y adaptado para actividad docente. Cuenta con licencias en vigor para el desarrollo de la actividad. La academia opera con más de 60 alumnos recurrentes y una facturación aproximada de 4.500 €/mes, con actividad concentrada en horario de tarde. El entorno es urbano y consolidado, con uso mixto residencial y comercial. Se localiza en la calle Corazón de María, dentro del barrio de Prosperidad, una zona con presencia de centros educativos, comercios de proximidad y servicios.
- El precio no incluye gastos de comunidad e impuestos
- Construido totalmente como Espacio comercial estándar
- Ubicado en línea con otros locales
- Aire acondicionado central
- Almacenamiento seguro
- Listo para usar
- Instalaciones de baño arrendadas
- Escaparate
- Acceso de minusválidos
- Traspaso 59.000 €.
- Local educativo en funcionamiento.
- Dos aulas tecnológicas.
- Licencias de actividad vigentes.
- Actividad educativa consolidada.
Información del edificio
| Espacio total disponible | 140 m² | Estilo del apartamento | Edificios de mediana altura |
| Tipo de inmueble | Edificio residencial | Tamaño del edificio | > 5.000 m² |
| Subtipo de inmueble | Apartamento | Año de construcción | 1990 - 1999 |
| Espacio total disponible | 140 m² |
| Tipo de inmueble | Edificio residencial |
| Subtipo de inmueble | Apartamento |
| Estilo del apartamento | Edificios de mediana altura |
| Tamaño del edificio | > 5.000 m² |
| Año de construcción | 1990 - 1999 |
Descripción del inmueble
Se trata de un inmueble de uso residencial situado en la calle del Corazón de María. En el entorno cercano se localizan espacios y equipamientos de referencia como el Auditorio Nacional de Música, el Parque de Berlín y el Hospital Nuestra Señora de América, así como distintos centros educativos y dotaciones sanitarias. La zona cuenta además con tejido comercial de barrio y servicios urbanos distribuidos a lo largo de vías como Príncipe de Vergara y Avenida de América. Las comunicaciones se articulan mediante transporte público y privado. En las proximidades se encuentran las estaciones de Metro Prosperidad y Metro Alfonso XIII (Línea 4), además de varias líneas de autobús EMT que conectan con distintos puntos de la ciudad. El acceso en vehículo privado se realiza a través de ejes viarios como Avenida de América y la M-30, que facilitan la conexión con otras áreas de Madrid y con la red principal de carreteras.
Locales cercanos
Elaborado por
Prosperidad
Parece que se ha producido un error al enviar tu mensaje. Vuelve a intentarlo.
Gracias. Se ha enviado tu mensaje.
