Iniciar sesión/Registrarse
Tu correo electrónico ha sido enviado.



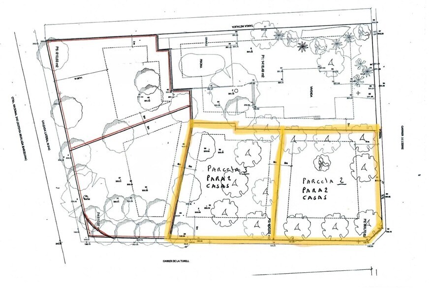
Aspectos destacados
- Suelo urbano de 1.604 m2 compuesto por 2 parcelas contiguas de 802 m2 cada una.
- Ubicación haciendo esquina con mucha visibilidad.
- Edificabilidad de 0,6 m2/m2 en 2 alturas sobre rasante y sótano.
- Zona residencial bien comunicada mediante la A-2.
Resumen ejecutivo
Oportunidad de suelo urbano de 1.604 m2 con edificabilidad de 0,6 m2/m2.
Tiene posibilidad de construir 4 viviendas (2 por parcela) con máximo 2 plantas sobre rasante y sótano.
Tiene posibilidad de construir 4 viviendas (2 por parcela) con máximo 2 plantas sobre rasante y sótano.
Información del edificio
| Precio | 400.000 € | Tipo de inmueble | Terreno |
| Tipo de venta | Inversión o usuario propietario | Subtipo de inmueble | Residencial |
| N.º de terrenos | 1 | Tamaño total del terreno | 0,16 ha |
| Precio | 400.000 € |
| Tipo de venta | Inversión o usuario propietario |
| N.º de terrenos | 1 |
| Tipo de inmueble | Terreno |
| Subtipo de inmueble | Residencial |
| Tamaño total del terreno | 0,16 ha |
1 Terreno disponible
Terreno
| Precio | 400.000 € | Tamaño del terreno | 0,16 ha |
| Precio por ha | 2.493.765,79 € |
| Precio | 400.000 € |
| Precio por ha | 2.493.765,79 € |
| Tamaño del terreno | 0,16 ha |
Suelo urbano de 1.604 m2 compuesto por 2 parcelas contiguas de 802 m2 cada una, situado haciendo esquina, sin edificación previa y con pendiente plana.
Descripción
Suelo urbano de 1.604 m2 con edificabilidad de 0,6 m2/m2 en 2 plantas sobre rasante más sótano.
1 1
1 de 4
Vídeos
Matterport tour exterior en 3D
Matterport tour en 3D
Fotos
Street view
Calle
Mapa
1 de 1
Elaborado por
Cal Migrat
¿Tienes cuenta con nosotros? Iniciar sesión
Parece que se ha producido un error al enviar tu mensaje. Vuelve a intentarlo.
Gracias. Se ha enviado tu mensaje.
