Tu correo electrónico ha sido enviado.



Parte de la información se ha traducido automáticamente.
Aspectos destacados
- 350,000 sq ft in the heart of Stratford.
- WELL Gold and BREEAM Outstanding.
- Roof Terraces.
- Bio-diverse Rooftop.
- Everyman Cinema on ground and lower ground. Available to book as presentation space.
- Educational Use consent in place for 200,000 sq ft.
- EPC A.
- 100% Fresh Air.
- Flexible Floorplates.
- Active Lobby with Events Space.
- Ability to offer self-contained entrance.
- Level 21 providing amenity space and terrace benefitting all occupiers.
Espacios disponibles(16)
Mostrar el precio como
- Espacio
- Tamaño
- Duración
- Precio
- Uso
- Acondicionamiento
- Disponible
Occupy, brand-new Grade A workspaces wrapped up within 350,000 square feet of imaginatively designed architecture at The Turing Building in Stratford Cross. Designed with flexibility and sustainability at its core, the building offers efficient, open-plan floor plates and best-in-class sustainability for forward-thinking occupiers. Please contact the agents for more information.
- Clase de uso: E
- Plano de planta en su mayoría abierta
- Se puede combinar con otros inmuebles hasta un total de 23.348 m² de espacio adyacente
- Calificación energética - A
- La mejor sostenibilidad de su clase
- Everyman Cinema integrado
- Instalaciones al final del viaje
- Construido parcialmente como Oficina estándar
- Espacio en excelentes condiciones
- Luz natural
- Instalaciones de baño arrendadas
- Sala de negocios exclusiva y espacio para eventos en la L21
- Cafetería en planta baja
Occupy, brand-new Grade A workspaces wrapped up within 350,000 square feet of imaginatively designed architecture at The Turing Building in Stratford Cross. Designed with flexibility and sustainability at its core, the building offers efficient, open-plan floor plates and best-in-class sustainability for forward-thinking occupiers. Please contact the agents for more information.
- Clase de uso: E
- Plano de planta en su mayoría abierta
- Se puede combinar con otros inmuebles hasta un total de 23.348 m² de espacio adyacente
- Luz natural
- Instalaciones de baño arrendadas
- Sala de negocios exclusiva y espacio para eventos en la L21
- Cafetería en planta baja
- Construido parcialmente como Oficina estándar
- Espacio en excelentes condiciones
- Aire acondicionado central
- Calificación energética - A
- La mejor sostenibilidad de su clase
- Everyman Cinema integrado
- Instalaciones al final del viaje
Occupy, brand-new Grade A workspaces wrapped up within 350,000 square feet of imaginatively designed architecture at The Turing Building in Stratford Cross. Designed with flexibility and sustainability at its core, the building offers efficient, open-plan floor plates and best-in-class sustainability for forward-thinking occupiers. Please contact the agents for more information.
- Clase de uso: E
- Plano de planta en su mayoría abierta
- Se puede combinar con otros inmuebles hasta un total de 23.348 m² de espacio adyacente
- Luz natural
- La mejor sostenibilidad de su clase
- Everyman Cinema integrado
- Instalaciones al final del viaje
- Construido parcialmente como Oficina estándar
- Espacio en excelentes condiciones
- Cocina
- Instalaciones de baño arrendadas
- Sala de negocios exclusiva y espacio para eventos en la L21
- Cafetería en planta baja
Occupy, brand-new Grade A workspaces wrapped up within 350,000 square feet of imaginatively designed architecture at The Turing Building in Stratford Cross. Designed with flexibility and sustainability at its core, the building offers efficient, open-plan floor plates and best-in-class sustainability for forward-thinking occupiers. Please contact the agents for more information.
- Clase de uso: E
- Plano de planta en su mayoría abierta
- Se puede combinar con otros inmuebles hasta un total de 23.348 m² de espacio adyacente
- Luz natural
- Instalaciones de baño arrendadas
- Sala de negocios exclusiva y espacio para eventos en la L21
- Cafetería en planta baja
- Construido parcialmente como Oficina estándar
- Espacio en excelentes condiciones
- Aire acondicionado central
- Calificación energética - A
- La mejor sostenibilidad de su clase
- Everyman Cinema integrado
- Instalaciones al final del viaje
Occupy, brand-new Grade A workspaces wrapped up within 350,000 square feet of imaginatively designed architecture at The Turing Building in Stratford Cross. Designed with flexibility and sustainability at its core, the building offers efficient, open-plan floor plates and best-in-class sustainability for forward-thinking occupiers. Please contact the agents for more information.
- Clase de uso: E
- Plano de planta en su mayoría abierta
- Se puede combinar con otros inmuebles hasta un total de 23.348 m² de espacio adyacente
- Luz natural
- Instalaciones de baño arrendadas
- Sala de negocios exclusiva y espacio para eventos en la L21
- Cafetería en planta baja
- Construido parcialmente como Oficina estándar
- Espacio en excelentes condiciones
- Aire acondicionado central
- Calificación energética - A
- La mejor sostenibilidad de su clase
- Everyman Cinema integrado
- Instalaciones al final del viaje
Occupy, brand-new Grade A workspaces wrapped up within 350,000 square feet of imaginatively designed architecture at The Turing Building in Stratford Cross. Designed with flexibility and sustainability at its core, the building offers efficient, open-plan floor plates and best-in-class sustainability for forward-thinking occupiers. Please contact the agents for more information.
- Clase de uso: E
- Plano de planta en su mayoría abierta
- Se puede combinar con otros inmuebles hasta un total de 23.348 m² de espacio adyacente
- Luz natural
- La mejor sostenibilidad de su clase
- Everyman Cinema integrado
- Instalaciones al final del viaje
- Construido parcialmente como Oficina estándar
- Espacio en excelentes condiciones
- Cocina
- Instalaciones de baño arrendadas
- Sala de negocios exclusiva y espacio para eventos en la L21
- Cafetería en planta baja
Occupy, brand-new Grade A workspaces wrapped up within 350,000 square feet of imaginatively designed architecture at The Turing Building in Stratford Cross. Designed with flexibility and sustainability at its core, the building offers efficient, open-plan floor plates and best-in-class sustainability for forward-thinking occupiers. Please contact the agents for more information.
- Clase de uso: E
- Plano de planta en su mayoría abierta
- Se puede combinar con otros inmuebles hasta un total de 23.348 m² de espacio adyacente
- Luz natural
- Instalaciones de baño arrendadas
- Sala de negocios exclusiva y espacio para eventos en la L21
- Cafetería en planta baja
- Construido parcialmente como Oficina estándar
- Espacio en excelentes condiciones
- Aire acondicionado central
- Calificación energética - A
- La mejor sostenibilidad de su clase
- Everyman Cinema integrado
- Instalaciones al final del viaje
Occupy, brand-new Grade A workspaces wrapped up within 350,000 square feet of imaginatively designed architecture at The Turing Building in Stratford Cross. Designed with flexibility and sustainability at its core, the building offers efficient, open-plan floor plates and best-in-class sustainability for forward-thinking occupiers. Please contact the agents for more information.
- Clase de uso: E
- Plano de planta en su mayoría abierta
- Aire acondicionado central
- Calificación energética - A
- Best-In-Class Sustainability
- Integrated Everyman Cinema
- End-Of-Trip Facilities
- Construido parcialmente como Oficina estándar
- Espacio en excelentes condiciones
- Luz natural
- Instalaciones de baño arrendadas
- Exclusive business lounge and event space on L21
- Ground Floor Cafe
Occupy, brand-new Grade A workspaces wrapped up within 350,000 square feet of imaginatively designed architecture at The Turing Building in Stratford Cross. Designed with flexibility and sustainability at its core, the building offers efficient, open-plan floor plates and best-in-class sustainability for forward-thinking occupiers. Please contact the agents for more information.
- Clase de uso: E
- Plano de planta en su mayoría abierta
- Se puede combinar con otros inmuebles hasta un total de 23.348 m² de espacio adyacente
- Luz natural
- Instalaciones de baño arrendadas
- Sala de negocios exclusiva y espacio para eventos en la L21
- Cafetería en planta baja
- Construido parcialmente como Oficina estándar
- Espacio en excelentes condiciones
- Aire acondicionado central
- Calificación energética - A
- La mejor sostenibilidad de su clase
- Everyman Cinema integrado
- Instalaciones al final del viaje
Occupy, brand-new Grade A workspaces wrapped up within 350,000 square feet of imaginatively designed architecture at The Turing Building in Stratford Cross. Designed with flexibility and sustainability at its core, the building offers efficient, open-plan floor plates and best-in-class sustainability for forward-thinking occupiers. Please contact the agents for more information.
- Clase de uso: E
- Plano de planta en su mayoría abierta
- Se puede combinar con otros inmuebles hasta un total de 23.348 m² de espacio adyacente
- Cocina
- La mejor sostenibilidad de su clase
- Everyman Cinema integrado
- Instalaciones al final del viaje
- Construido parcialmente como Oficina estándar
- Espacio en excelentes condiciones
- Calefacción y aire acondicionado centrales
- Instalaciones de baño arrendadas
- Sala de negocios exclusiva y espacio para eventos en la L21
- Cafetería en planta baja
Occupy, brand-new Grade A workspaces wrapped up within 350,000 square feet of imaginatively designed architecture at The Turing Building in Stratford Cross. Designed with flexibility and sustainability at its core, the building offers efficient, open-plan floor plates and best-in-class sustainability for forward-thinking occupiers. Please contact the agents for more information.
- Clase de uso: E
- Plano de planta en su mayoría abierta
- Se puede combinar con otros inmuebles hasta un total de 23.348 m² de espacio adyacente
- Luz natural
- La mejor sostenibilidad de su clase
- Everyman Cinema integrado
- Instalaciones al final del viaje
- Construido parcialmente como Oficina estándar
- Espacio en excelentes condiciones
- Cocina
- Instalaciones de baño arrendadas
- Sala de negocios exclusiva y espacio para eventos en la L21
- Cafetería en planta baja
Occupy, brand-new Grade A workspaces wrapped up within 350,000 square feet of imaginatively designed architecture at The Turing Building in Stratford Cross. Designed with flexibility and sustainability at its core, the building offers efficient, open-plan floor plates and best-in-class sustainability for forward-thinking occupiers. Please contact the agents for more information.
- Clase de uso: E
- Plano de planta en su mayoría abierta
- Se puede combinar con otros inmuebles hasta un total de 23.348 m² de espacio adyacente
- Luz natural
- Instalaciones de baño arrendadas
- Sala de negocios exclusiva y espacio para eventos en la L21
- Cafetería en planta baja
- Construido parcialmente como Oficina estándar
- Espacio en excelentes condiciones
- Aire acondicionado central
- Calificación energética - A
- La mejor sostenibilidad de su clase
- Everyman Cinema integrado
- Instalaciones al final del viaje
Occupy, brand-new Grade A workspaces wrapped up within 350,000 square feet of imaginatively designed architecture at The Turing Building in Stratford Cross. Designed with flexibility and sustainability at its core, the building offers efficient, open-plan floor plates and best-in-class sustainability for forward-thinking occupiers. Please contact the agents for more information.
- Clase de uso: E
- Plano de planta en su mayoría abierta
- Se puede combinar con otros inmuebles hasta un total de 23.348 m² de espacio adyacente
- Luz natural
- Instalaciones de baño arrendadas
- Sala de negocios exclusiva y espacio para eventos en la L21
- Cafetería en planta baja
- Construido parcialmente como Oficina estándar
- Espacio en excelentes condiciones
- Aire acondicionado central
- Calificación energética - A
- La mejor sostenibilidad de su clase
- Everyman Cinema integrado
- Instalaciones al final del viaje
2,207-square-foot terrace available.
- Clase de uso: E
- Plano de planta en su mayoría abierta
- Se puede combinar con otros inmuebles hasta un total de 23.348 m² de espacio adyacente
- Balcón
- Calificación energética - A
- La mejor sostenibilidad de su clase
- Everyman Cinema integrado
- Instalaciones al final del viaje
- Construido parcialmente como Oficina estándar
- Espacio en excelentes condiciones
- Aire acondicionado central
- Luz natural
- Instalaciones de baño arrendadas
- Sala de negocios exclusiva y espacio para eventos en la L21
- Cafetería en planta baja
Occupy, brand-new Grade A workspaces wrapped up within 350,000 square feet of imaginatively designed architecture at The Turing Building in Stratford Cross. Designed with flexibility and sustainability at its core, the building offers efficient, open-plan floor plates and best-in-class sustainability for forward-thinking occupiers. Please contact the agents for more information.
- Clase de uso: E
- Plano de planta en su mayoría abierta
- Se puede combinar con otros inmuebles hasta un total de 23.348 m² de espacio adyacente
- Luz natural
- Instalaciones de baño arrendadas
- Sala de negocios exclusiva y espacio para eventos en la L21
- Cafetería en planta baja
- Construido parcialmente como Oficina estándar
- Espacio en excelentes condiciones
- Aire acondicionado central
- Calificación energética - A
- La mejor sostenibilidad de su clase
- Everyman Cinema integrado
- Instalaciones al final del viaje
Occupy, brand-new Grade A workspaces wrapped up within 350,000 square feet of imaginatively designed architecture at The Turing Building in Stratford Cross. Designed with flexibility and sustainability at its core, the building offers efficient, open-plan floor plates and best-in-class sustainability for forward-thinking occupiers. Please contact the agents for more information.
- Clase de uso: E
- Plano de planta en su mayoría abierta
- Se puede combinar con otros inmuebles hasta un total de 23.348 m² de espacio adyacente
- Luz natural
- Instalaciones de baño arrendadas
- Exclusive business lounge and event space on L21
- Ground Floor Cafe
- Construido parcialmente como Oficina estándar
- Espacio en excelentes condiciones
- Aire acondicionado central
- Calificación energética - A
- Best-In-Class Sustainability
- Integrated Everyman Cinema
- End-Of-Trip Facilities
| Espacio | Tamaño | Duración | Precio | Uso | Acondicionamiento | Disponible |
| Planta 7 | 1.628 m² | Negociable | 610,97 € /m²/año 50,91 € /m²/mes 994.686 € /año 82.890 € /mes | Oficina | Construcción parcial | Inmediata |
| Planta 8 | 1.629 m² | Negociable | 610,97 € /m²/año 50,91 € /m²/mes 995.253 € /año 82.938 € /mes | Oficina | Construcción parcial | Inmediata |
| Planta 9 | 1.629 m² | Negociable | 610,97 € /m²/año 50,91 € /m²/mes 995.253 € /año 82.938 € /mes | Oficina | Construcción parcial | Inmediata |
| Planta 10 | 1.629 m² | Negociable | 610,97 € /m²/año 50,91 € /m²/mes 995.253 € /año 82.938 € /mes | Oficina | Construcción parcial | Inmediata |
| Planta 11 | 1.631 m² | Negociable | 610,97 € /m²/año 50,91 € /m²/mes 996.559 € /año 83.047 € /mes | Oficina | Construcción parcial | Inmediata |
| Planta 12 | 1.631 m² | Negociable | 610,97 € /m²/año 50,91 € /m²/mes 996.616 € /año 83.051 € /mes | Oficina | Construcción parcial | Pendiente |
| Planta 13, módulo North | 929 m² | Negociable | 610,97 € /m²/año 50,91 € /m²/mes 567.613 € /año 47.301 € /mes | Oficina | Construcción parcial | Pendiente |
| Planta 13, módulo South | 804 m² | Negociable | 610,97 € /m²/año 50,91 € /m²/mes 491.383 € /año 40.949 € /mes | Oficina | Construcción parcial | Inmediata |
| Planta 14 | 1.699 m² | Negociable | 610,97 € /m²/año 50,91 € /m²/mes 1.038.051 € /año 86.504 € /mes | Oficina | Construcción parcial | Pendiente |
| Planta 15 | 1.735 m² | Negociable | 610,97 € /m²/año 50,91 € /m²/mes 1.060.018 € /año 88.335 € /mes | Oficina | Construcción parcial | Inmediata |
| Planta 16 | 1.708 m² | Negociable | 610,97 € /m²/año 50,91 € /m²/mes 1.043.557 € /año 86.963 € /mes | Oficina | Construcción parcial | Inmediata |
| Planta 17 | 1.735 m² | Negociable | 610,97 € /m²/año 50,91 € /m²/mes 1.060.018 € /año 88.335 € /mes | Oficina | Construcción parcial | Inmediata |
| Planta 18 | 1.736 m² | Negociable | 610,97 € /m²/año 50,91 € /m²/mes 1.060.643 € /año 88.387 € /mes | Oficina | Construcción parcial | Inmediata |
| Planta 19 | 1.523 m² | Negociable | 610,97 € /m²/año 50,91 € /m²/mes 930.546 € /año 77.545 € /mes | Oficina | Construcción parcial | Inmediata |
| Planta 20 | 1.523 m² | Negociable | 610,97 € /m²/año 50,91 € /m²/mes 930.489 € /año 77.541 € /mes | Oficina | Construcción parcial | Inmediata |
| Planta 21, módulo Amenity Floor | 983 m² | Negociable | Bajo solicitud Bajo solicitud Bajo solicitud Bajo solicitud | Oficina | Construcción parcial | Inmediata |
Planta 7
| Tamaño |
| 1.628 m² |
| Duración |
| Negociable |
| Precio |
| 610,97 € /m²/año 50,91 € /m²/mes 994.686 € /año 82.890 € /mes |
| Uso |
| Oficina |
| Acondicionamiento |
| Construcción parcial |
| Disponible |
| Inmediata |
Planta 8
| Tamaño |
| 1.629 m² |
| Duración |
| Negociable |
| Precio |
| 610,97 € /m²/año 50,91 € /m²/mes 995.253 € /año 82.938 € /mes |
| Uso |
| Oficina |
| Acondicionamiento |
| Construcción parcial |
| Disponible |
| Inmediata |
Planta 9
| Tamaño |
| 1.629 m² |
| Duración |
| Negociable |
| Precio |
| 610,97 € /m²/año 50,91 € /m²/mes 995.253 € /año 82.938 € /mes |
| Uso |
| Oficina |
| Acondicionamiento |
| Construcción parcial |
| Disponible |
| Inmediata |
Planta 10
| Tamaño |
| 1.629 m² |
| Duración |
| Negociable |
| Precio |
| 610,97 € /m²/año 50,91 € /m²/mes 995.253 € /año 82.938 € /mes |
| Uso |
| Oficina |
| Acondicionamiento |
| Construcción parcial |
| Disponible |
| Inmediata |
Planta 11
| Tamaño |
| 1.631 m² |
| Duración |
| Negociable |
| Precio |
| 610,97 € /m²/año 50,91 € /m²/mes 996.559 € /año 83.047 € /mes |
| Uso |
| Oficina |
| Acondicionamiento |
| Construcción parcial |
| Disponible |
| Inmediata |
Planta 12
| Tamaño |
| 1.631 m² |
| Duración |
| Negociable |
| Precio |
| 610,97 € /m²/año 50,91 € /m²/mes 996.616 € /año 83.051 € /mes |
| Uso |
| Oficina |
| Acondicionamiento |
| Construcción parcial |
| Disponible |
| Pendiente |
Planta 13, módulo North
| Tamaño |
| 929 m² |
| Duración |
| Negociable |
| Precio |
| 610,97 € /m²/año 50,91 € /m²/mes 567.613 € /año 47.301 € /mes |
| Uso |
| Oficina |
| Acondicionamiento |
| Construcción parcial |
| Disponible |
| Pendiente |
Planta 13, módulo South
| Tamaño |
| 804 m² |
| Duración |
| Negociable |
| Precio |
| 610,97 € /m²/año 50,91 € /m²/mes 491.383 € /año 40.949 € /mes |
| Uso |
| Oficina |
| Acondicionamiento |
| Construcción parcial |
| Disponible |
| Inmediata |
Planta 14
| Tamaño |
| 1.699 m² |
| Duración |
| Negociable |
| Precio |
| 610,97 € /m²/año 50,91 € /m²/mes 1.038.051 € /año 86.504 € /mes |
| Uso |
| Oficina |
| Acondicionamiento |
| Construcción parcial |
| Disponible |
| Pendiente |
Planta 15
| Tamaño |
| 1.735 m² |
| Duración |
| Negociable |
| Precio |
| 610,97 € /m²/año 50,91 € /m²/mes 1.060.018 € /año 88.335 € /mes |
| Uso |
| Oficina |
| Acondicionamiento |
| Construcción parcial |
| Disponible |
| Inmediata |
Planta 16
| Tamaño |
| 1.708 m² |
| Duración |
| Negociable |
| Precio |
| 610,97 € /m²/año 50,91 € /m²/mes 1.043.557 € /año 86.963 € /mes |
| Uso |
| Oficina |
| Acondicionamiento |
| Construcción parcial |
| Disponible |
| Inmediata |
Planta 17
| Tamaño |
| 1.735 m² |
| Duración |
| Negociable |
| Precio |
| 610,97 € /m²/año 50,91 € /m²/mes 1.060.018 € /año 88.335 € /mes |
| Uso |
| Oficina |
| Acondicionamiento |
| Construcción parcial |
| Disponible |
| Inmediata |
Planta 18
| Tamaño |
| 1.736 m² |
| Duración |
| Negociable |
| Precio |
| 610,97 € /m²/año 50,91 € /m²/mes 1.060.643 € /año 88.387 € /mes |
| Uso |
| Oficina |
| Acondicionamiento |
| Construcción parcial |
| Disponible |
| Inmediata |
Planta 19
| Tamaño |
| 1.523 m² |
| Duración |
| Negociable |
| Precio |
| 610,97 € /m²/año 50,91 € /m²/mes 930.546 € /año 77.545 € /mes |
| Uso |
| Oficina |
| Acondicionamiento |
| Construcción parcial |
| Disponible |
| Inmediata |
Planta 20
| Tamaño |
| 1.523 m² |
| Duración |
| Negociable |
| Precio |
| 610,97 € /m²/año 50,91 € /m²/mes 930.489 € /año 77.541 € /mes |
| Uso |
| Oficina |
| Acondicionamiento |
| Construcción parcial |
| Disponible |
| Inmediata |
Planta 21, módulo Amenity Floor
| Tamaño |
| 983 m² |
| Duración |
| Negociable |
| Precio |
| Bajo solicitud Bajo solicitud Bajo solicitud Bajo solicitud |
| Uso |
| Oficina |
| Acondicionamiento |
| Construcción parcial |
| Disponible |
| Inmediata |
Planta 7
| Tamaño | 1.628 m² |
| Duración | Negociable |
| Precio | 82.890 € /mes |
| Uso | Oficina |
| Acondicionamiento | Construcción parcial |
| Disponible | Inmediata |
Occupy, brand-new Grade A workspaces wrapped up within 350,000 square feet of imaginatively designed architecture at The Turing Building in Stratford Cross. Designed with flexibility and sustainability at its core, the building offers efficient, open-plan floor plates and best-in-class sustainability for forward-thinking occupiers. Please contact the agents for more information.
- Clase de uso: E
- Construido parcialmente como Oficina estándar
- Plano de planta en su mayoría abierta
- Espacio en excelentes condiciones
- Se puede combinar con otros inmuebles hasta un total de 23.348 m² de espacio adyacente
- Luz natural
- Calificación energética - A
- Instalaciones de baño arrendadas
- La mejor sostenibilidad de su clase
- Sala de negocios exclusiva y espacio para eventos en la L21
- Everyman Cinema integrado
- Cafetería en planta baja
- Instalaciones al final del viaje
Planta 8
| Tamaño | 1.629 m² |
| Duración | Negociable |
| Precio | 82.938 € /mes |
| Uso | Oficina |
| Acondicionamiento | Construcción parcial |
| Disponible | Inmediata |
Occupy, brand-new Grade A workspaces wrapped up within 350,000 square feet of imaginatively designed architecture at The Turing Building in Stratford Cross. Designed with flexibility and sustainability at its core, the building offers efficient, open-plan floor plates and best-in-class sustainability for forward-thinking occupiers. Please contact the agents for more information.
- Clase de uso: E
- Construido parcialmente como Oficina estándar
- Plano de planta en su mayoría abierta
- Espacio en excelentes condiciones
- Se puede combinar con otros inmuebles hasta un total de 23.348 m² de espacio adyacente
- Aire acondicionado central
- Luz natural
- Calificación energética - A
- Instalaciones de baño arrendadas
- La mejor sostenibilidad de su clase
- Sala de negocios exclusiva y espacio para eventos en la L21
- Everyman Cinema integrado
- Cafetería en planta baja
- Instalaciones al final del viaje
Planta 9
| Tamaño | 1.629 m² |
| Duración | Negociable |
| Precio | 82.938 € /mes |
| Uso | Oficina |
| Acondicionamiento | Construcción parcial |
| Disponible | Inmediata |
Occupy, brand-new Grade A workspaces wrapped up within 350,000 square feet of imaginatively designed architecture at The Turing Building in Stratford Cross. Designed with flexibility and sustainability at its core, the building offers efficient, open-plan floor plates and best-in-class sustainability for forward-thinking occupiers. Please contact the agents for more information.
- Clase de uso: E
- Construido parcialmente como Oficina estándar
- Plano de planta en su mayoría abierta
- Espacio en excelentes condiciones
- Se puede combinar con otros inmuebles hasta un total de 23.348 m² de espacio adyacente
- Cocina
- Luz natural
- Instalaciones de baño arrendadas
- La mejor sostenibilidad de su clase
- Sala de negocios exclusiva y espacio para eventos en la L21
- Everyman Cinema integrado
- Cafetería en planta baja
- Instalaciones al final del viaje
Planta 10
| Tamaño | 1.629 m² |
| Duración | Negociable |
| Precio | 82.938 € /mes |
| Uso | Oficina |
| Acondicionamiento | Construcción parcial |
| Disponible | Inmediata |
Occupy, brand-new Grade A workspaces wrapped up within 350,000 square feet of imaginatively designed architecture at The Turing Building in Stratford Cross. Designed with flexibility and sustainability at its core, the building offers efficient, open-plan floor plates and best-in-class sustainability for forward-thinking occupiers. Please contact the agents for more information.
- Clase de uso: E
- Construido parcialmente como Oficina estándar
- Plano de planta en su mayoría abierta
- Espacio en excelentes condiciones
- Se puede combinar con otros inmuebles hasta un total de 23.348 m² de espacio adyacente
- Aire acondicionado central
- Luz natural
- Calificación energética - A
- Instalaciones de baño arrendadas
- La mejor sostenibilidad de su clase
- Sala de negocios exclusiva y espacio para eventos en la L21
- Everyman Cinema integrado
- Cafetería en planta baja
- Instalaciones al final del viaje
Planta 11
| Tamaño | 1.631 m² |
| Duración | Negociable |
| Precio | 83.047 € /mes |
| Uso | Oficina |
| Acondicionamiento | Construcción parcial |
| Disponible | Inmediata |
Occupy, brand-new Grade A workspaces wrapped up within 350,000 square feet of imaginatively designed architecture at The Turing Building in Stratford Cross. Designed with flexibility and sustainability at its core, the building offers efficient, open-plan floor plates and best-in-class sustainability for forward-thinking occupiers. Please contact the agents for more information.
- Clase de uso: E
- Construido parcialmente como Oficina estándar
- Plano de planta en su mayoría abierta
- Espacio en excelentes condiciones
- Se puede combinar con otros inmuebles hasta un total de 23.348 m² de espacio adyacente
- Aire acondicionado central
- Luz natural
- Calificación energética - A
- Instalaciones de baño arrendadas
- La mejor sostenibilidad de su clase
- Sala de negocios exclusiva y espacio para eventos en la L21
- Everyman Cinema integrado
- Cafetería en planta baja
- Instalaciones al final del viaje
Planta 12
| Tamaño | 1.631 m² |
| Duración | Negociable |
| Precio | 83.051 € /mes |
| Uso | Oficina |
| Acondicionamiento | Construcción parcial |
| Disponible | Pendiente |
Occupy, brand-new Grade A workspaces wrapped up within 350,000 square feet of imaginatively designed architecture at The Turing Building in Stratford Cross. Designed with flexibility and sustainability at its core, the building offers efficient, open-plan floor plates and best-in-class sustainability for forward-thinking occupiers. Please contact the agents for more information.
- Clase de uso: E
- Construido parcialmente como Oficina estándar
- Plano de planta en su mayoría abierta
- Espacio en excelentes condiciones
- Se puede combinar con otros inmuebles hasta un total de 23.348 m² de espacio adyacente
- Cocina
- Luz natural
- Instalaciones de baño arrendadas
- La mejor sostenibilidad de su clase
- Sala de negocios exclusiva y espacio para eventos en la L21
- Everyman Cinema integrado
- Cafetería en planta baja
- Instalaciones al final del viaje
Planta 13, módulo North
| Tamaño | 929 m² |
| Duración | Negociable |
| Precio | 47.301 € /mes |
| Uso | Oficina |
| Acondicionamiento | Construcción parcial |
| Disponible | Pendiente |
Occupy, brand-new Grade A workspaces wrapped up within 350,000 square feet of imaginatively designed architecture at The Turing Building in Stratford Cross. Designed with flexibility and sustainability at its core, the building offers efficient, open-plan floor plates and best-in-class sustainability for forward-thinking occupiers. Please contact the agents for more information.
- Clase de uso: E
- Construido parcialmente como Oficina estándar
- Plano de planta en su mayoría abierta
- Espacio en excelentes condiciones
- Se puede combinar con otros inmuebles hasta un total de 23.348 m² de espacio adyacente
- Aire acondicionado central
- Luz natural
- Calificación energética - A
- Instalaciones de baño arrendadas
- La mejor sostenibilidad de su clase
- Sala de negocios exclusiva y espacio para eventos en la L21
- Everyman Cinema integrado
- Cafetería en planta baja
- Instalaciones al final del viaje
Planta 13, módulo South
| Tamaño | 804 m² |
| Duración | Negociable |
| Precio | 40.949 € /mes |
| Uso | Oficina |
| Acondicionamiento | Construcción parcial |
| Disponible | Inmediata |
Occupy, brand-new Grade A workspaces wrapped up within 350,000 square feet of imaginatively designed architecture at The Turing Building in Stratford Cross. Designed with flexibility and sustainability at its core, the building offers efficient, open-plan floor plates and best-in-class sustainability for forward-thinking occupiers. Please contact the agents for more information.
- Clase de uso: E
- Construido parcialmente como Oficina estándar
- Plano de planta en su mayoría abierta
- Espacio en excelentes condiciones
- Aire acondicionado central
- Luz natural
- Calificación energética - A
- Instalaciones de baño arrendadas
- Best-In-Class Sustainability
- Exclusive business lounge and event space on L21
- Integrated Everyman Cinema
- Ground Floor Cafe
- End-Of-Trip Facilities
Planta 14
| Tamaño | 1.699 m² |
| Duración | Negociable |
| Precio | 86.504 € /mes |
| Uso | Oficina |
| Acondicionamiento | Construcción parcial |
| Disponible | Pendiente |
Occupy, brand-new Grade A workspaces wrapped up within 350,000 square feet of imaginatively designed architecture at The Turing Building in Stratford Cross. Designed with flexibility and sustainability at its core, the building offers efficient, open-plan floor plates and best-in-class sustainability for forward-thinking occupiers. Please contact the agents for more information.
- Clase de uso: E
- Construido parcialmente como Oficina estándar
- Plano de planta en su mayoría abierta
- Espacio en excelentes condiciones
- Se puede combinar con otros inmuebles hasta un total de 23.348 m² de espacio adyacente
- Aire acondicionado central
- Luz natural
- Calificación energética - A
- Instalaciones de baño arrendadas
- La mejor sostenibilidad de su clase
- Sala de negocios exclusiva y espacio para eventos en la L21
- Everyman Cinema integrado
- Cafetería en planta baja
- Instalaciones al final del viaje
Planta 15
| Tamaño | 1.735 m² |
| Duración | Negociable |
| Precio | 88.335 € /mes |
| Uso | Oficina |
| Acondicionamiento | Construcción parcial |
| Disponible | Inmediata |
Occupy, brand-new Grade A workspaces wrapped up within 350,000 square feet of imaginatively designed architecture at The Turing Building in Stratford Cross. Designed with flexibility and sustainability at its core, the building offers efficient, open-plan floor plates and best-in-class sustainability for forward-thinking occupiers. Please contact the agents for more information.
- Clase de uso: E
- Construido parcialmente como Oficina estándar
- Plano de planta en su mayoría abierta
- Espacio en excelentes condiciones
- Se puede combinar con otros inmuebles hasta un total de 23.348 m² de espacio adyacente
- Calefacción y aire acondicionado centrales
- Cocina
- Instalaciones de baño arrendadas
- La mejor sostenibilidad de su clase
- Sala de negocios exclusiva y espacio para eventos en la L21
- Everyman Cinema integrado
- Cafetería en planta baja
- Instalaciones al final del viaje
Planta 16
| Tamaño | 1.708 m² |
| Duración | Negociable |
| Precio | 86.963 € /mes |
| Uso | Oficina |
| Acondicionamiento | Construcción parcial |
| Disponible | Inmediata |
Occupy, brand-new Grade A workspaces wrapped up within 350,000 square feet of imaginatively designed architecture at The Turing Building in Stratford Cross. Designed with flexibility and sustainability at its core, the building offers efficient, open-plan floor plates and best-in-class sustainability for forward-thinking occupiers. Please contact the agents for more information.
- Clase de uso: E
- Construido parcialmente como Oficina estándar
- Plano de planta en su mayoría abierta
- Espacio en excelentes condiciones
- Se puede combinar con otros inmuebles hasta un total de 23.348 m² de espacio adyacente
- Cocina
- Luz natural
- Instalaciones de baño arrendadas
- La mejor sostenibilidad de su clase
- Sala de negocios exclusiva y espacio para eventos en la L21
- Everyman Cinema integrado
- Cafetería en planta baja
- Instalaciones al final del viaje
Planta 17
| Tamaño | 1.735 m² |
| Duración | Negociable |
| Precio | 88.335 € /mes |
| Uso | Oficina |
| Acondicionamiento | Construcción parcial |
| Disponible | Inmediata |
Occupy, brand-new Grade A workspaces wrapped up within 350,000 square feet of imaginatively designed architecture at The Turing Building in Stratford Cross. Designed with flexibility and sustainability at its core, the building offers efficient, open-plan floor plates and best-in-class sustainability for forward-thinking occupiers. Please contact the agents for more information.
- Clase de uso: E
- Construido parcialmente como Oficina estándar
- Plano de planta en su mayoría abierta
- Espacio en excelentes condiciones
- Se puede combinar con otros inmuebles hasta un total de 23.348 m² de espacio adyacente
- Aire acondicionado central
- Luz natural
- Calificación energética - A
- Instalaciones de baño arrendadas
- La mejor sostenibilidad de su clase
- Sala de negocios exclusiva y espacio para eventos en la L21
- Everyman Cinema integrado
- Cafetería en planta baja
- Instalaciones al final del viaje
Planta 18
| Tamaño | 1.736 m² |
| Duración | Negociable |
| Precio | 88.387 € /mes |
| Uso | Oficina |
| Acondicionamiento | Construcción parcial |
| Disponible | Inmediata |
Occupy, brand-new Grade A workspaces wrapped up within 350,000 square feet of imaginatively designed architecture at The Turing Building in Stratford Cross. Designed with flexibility and sustainability at its core, the building offers efficient, open-plan floor plates and best-in-class sustainability for forward-thinking occupiers. Please contact the agents for more information.
- Clase de uso: E
- Construido parcialmente como Oficina estándar
- Plano de planta en su mayoría abierta
- Espacio en excelentes condiciones
- Se puede combinar con otros inmuebles hasta un total de 23.348 m² de espacio adyacente
- Aire acondicionado central
- Luz natural
- Calificación energética - A
- Instalaciones de baño arrendadas
- La mejor sostenibilidad de su clase
- Sala de negocios exclusiva y espacio para eventos en la L21
- Everyman Cinema integrado
- Cafetería en planta baja
- Instalaciones al final del viaje
Planta 19
| Tamaño | 1.523 m² |
| Duración | Negociable |
| Precio | 77.545 € /mes |
| Uso | Oficina |
| Acondicionamiento | Construcción parcial |
| Disponible | Inmediata |
2,207-square-foot terrace available.
- Clase de uso: E
- Construido parcialmente como Oficina estándar
- Plano de planta en su mayoría abierta
- Espacio en excelentes condiciones
- Se puede combinar con otros inmuebles hasta un total de 23.348 m² de espacio adyacente
- Aire acondicionado central
- Balcón
- Luz natural
- Calificación energética - A
- Instalaciones de baño arrendadas
- La mejor sostenibilidad de su clase
- Sala de negocios exclusiva y espacio para eventos en la L21
- Everyman Cinema integrado
- Cafetería en planta baja
- Instalaciones al final del viaje
Planta 20
| Tamaño | 1.523 m² |
| Duración | Negociable |
| Precio | 77.541 € /mes |
| Uso | Oficina |
| Acondicionamiento | Construcción parcial |
| Disponible | Inmediata |
Occupy, brand-new Grade A workspaces wrapped up within 350,000 square feet of imaginatively designed architecture at The Turing Building in Stratford Cross. Designed with flexibility and sustainability at its core, the building offers efficient, open-plan floor plates and best-in-class sustainability for forward-thinking occupiers. Please contact the agents for more information.
- Clase de uso: E
- Construido parcialmente como Oficina estándar
- Plano de planta en su mayoría abierta
- Espacio en excelentes condiciones
- Se puede combinar con otros inmuebles hasta un total de 23.348 m² de espacio adyacente
- Aire acondicionado central
- Luz natural
- Calificación energética - A
- Instalaciones de baño arrendadas
- La mejor sostenibilidad de su clase
- Sala de negocios exclusiva y espacio para eventos en la L21
- Everyman Cinema integrado
- Cafetería en planta baja
- Instalaciones al final del viaje
Planta 21, módulo Amenity Floor
| Tamaño | 983 m² |
| Duración | Negociable |
| Precio | Bajo solicitud |
| Uso | Oficina |
| Acondicionamiento | Construcción parcial |
| Disponible | Inmediata |
Occupy, brand-new Grade A workspaces wrapped up within 350,000 square feet of imaginatively designed architecture at The Turing Building in Stratford Cross. Designed with flexibility and sustainability at its core, the building offers efficient, open-plan floor plates and best-in-class sustainability for forward-thinking occupiers. Please contact the agents for more information.
- Clase de uso: E
- Construido parcialmente como Oficina estándar
- Plano de planta en su mayoría abierta
- Espacio en excelentes condiciones
- Se puede combinar con otros inmuebles hasta un total de 23.348 m² de espacio adyacente
- Aire acondicionado central
- Luz natural
- Calificación energética - A
- Instalaciones de baño arrendadas
- Best-In-Class Sustainability
- Exclusive business lounge and event space on L21
- Integrated Everyman Cinema
- Ground Floor Cafe
- End-Of-Trip Facilities
Matterport Tours (Tours virtuales en 3D)
Descripción general del inmueble
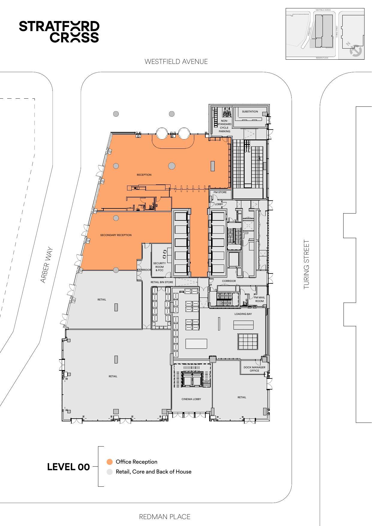
Bienvenido a The Turing Building, una torre de oficinas comerciales de próxima generación que forma una parte clave del distrito de Stratford Cross, en el corazón cultural del este de Londres. Con más de 350 000 pies cuadrados de espacio de trabajo sostenible y de primera categoría, el diseño del edificio Turing ha redefinido el lugar de trabajo, ofreciendo un entorno único para entusiasmar, capacitar e inspirar a las personas para que desarrollen todo su potencial. Ubicado en el centro neurálgico de la cultura de Londres, el barrio dinámico y bien comunicado de Stratford combina la investigación y la educación con la cultura y la innovación, y ofrece un destino inspirador donde las empresas prosperan. Ubicado entre 560 acres del Parque Olímpico Reina Isabel, las instituciones creativas de East Bank, el Estadio de Londres y una amplia variedad de tiendas, restaurantes y lugares de entretenimiento, incluida la cercana Westfield Stratford City, este destino en constante evolución en el corazón de Stratford lo tiene todo. Rodeado de increíbles barrios y a solo cinco minutos a pie de algunas de las experiencias más increíbles de la capital, nunca te faltarán cosas que hacer en Stratford. Diseñado pensando en la flexibilidad, el edificio Turing cuenta con pisos transparentes y eficientes, espacios verdes para trabajar y estudiar, espacios flexibles para eventos y una terraza en la azotea con gran biodiversidad y amplias vistas de la capital, que ofrece a los ocupantes una experiencia de primera clase a la altura de sus ambiciones. Date cuenta del esplendor del edificio al entrar, donde las personas son recibidas por un impresionante y activo vestíbulo con un cine integrado con tres pantallas y una planta baja repleta de vida dirigida por tiendas minoristas, lo que convierte este edificio en un activo para la comunidad en general. La ambición del edificio era crear un edificio comercial ejemplar diseñado para atraer inquilinos, inspirar la colaboración y apoyar nuevas formas de trabajar, al tiempo que se reducía la huella de carbono y se generaba un impacto positivo. Gracias a un diseño excepcional del espacio de trabajo, el edificio Turing ha mejorado el bienestar y la felicidad de los ocupantes, prestando especial atención a la mejora de la calidad del aire, los espacios de trabajo al aire libre y los diseños flexibles para fomentar la colaboración y, al mismo tiempo, combatir las emisiones de carbono y los costes de ocupación. Ahorra energía con una iluminación LED 100% de bajo consumo para crear un entorno de trabajo óptimo y alcanzar tus objetivos de cero emisiones netas de carbono al formar parte del mayor plan energético descentralizado del Reino Unido, en el que todos los edificios de Stratford Cross funcionan con calderas de biomasa en los centros de energía de la red de calefacción y refrigeración del distrito de Stratford. Impulsada por el legado de los Juegos Olímpicos, la conectividad de Stratford ha mejorado considerablemente en la última década. Con los servicios de Jubilee Line, Elizabeth Line, DLR y National Rail accesibles, viajar es muy fácil, ya que Stratford se ha consolidado como uno de los destinos mejor conectados de Londres y el vecindario ideal para ubicar su negocio.
- Atrio
- Línea de autobús
- Cocina
- Calificación energética - A
- Terraza en azotea
- Calefacción central
- Baños en zonas comunes
- Exposición directa al ascensor
- Luz natural
- Espacio diáfano
- Aire acondicionado
Información del edificio
Dosier de comercialización
Puntos de interés
Bares y restaurantes |
|||
|---|---|---|---|
| Figo | - | - | 2 min. a pie |
| Itsu | - | - | 2 min. a pie |
| Nespresso Boutique | - | - | 5 min. a pie |
Locales |
||
|---|---|---|
| Beaverbrooks | Joyería/Relojes | 5 min. a pie |
| Levi's | Ropa unisex | 5 min. a pie |
| Accessorize | Ropa para mujer | 5 min. a pie |
| Vans | Ropa unisex | 5 min. a pie |
| INGLOT | Salud y belleza | 5 min. a pie |
Hoteles |
|
|---|---|
| Hyatt House |
125 habitaciones
4 min. a pie
|
| Autograph Collection |
145 habitaciones
6 min. a pie
|
| Hyatt Regency |
225 habitaciones
6 min. a pie
|
| Urban Rest |
36 habitaciones
7 min. a pie
|
| Aparthotel Adagio |
136 habitaciones
7 min. a pie
|
Acerca Franja oriental
London’s eastern fringe is an emerging office destination, offering occupiers speedy access to central London at far lower occupational costs than can be found in more established areas to the west. It encompasses a host of vibrant areas like Whitechapel, Hackney and Wapping, with Stratford’s Queen Elizabeth Olympic Park and international railway station as its centrepiece.
The area has risen in status as an office location over the past decade, with the 2012 Olympic Games acting as a catalyst for regeneration and development. Its already-strong transport links improved yet further in 2022 with the arrival of Elizabeth line services. Such improvements have helped put the area on the radar of an increasing pool of office occupiers. Key movers to the area in recent years include Cancer Research, the British Council and the Financial Conduct Authority, while a wave of smaller technology and media companies have gravitated to the likes of Here East in Stratford and trendy hotspots like Whitechapel. Firms can expect to pay around 30-40% less, on average, for space here than they would in central London.
Strong transport connections and a vibrant social and retail scene have helped fuel outsized population growth in recent years, with a host of residential developers targeting the area due to its growing popularity with young professionals. Its population is projected to continue rising faster than the London average in the coming years, too, increasing the area’s vibrancy still further, as well as its pool of local workers.
Equipos de alquiler
Equipos de alquiler
Angus Goswell,
Partner/Department Head,Chairman London Offices
Mike Voller, Partner, London Office Leasing
Mike vuelve a unirse a Knight Frank después de seis años en Spring4, la principal consultora inmobiliaria boutique de Londres, donde se especializó en asesorar a ocupantes corporativos en una amplia gama de transacciones, como arrendamientos, adquisiciones, reacondicionamientos, compras y alquileres.
Richard Howard,
Executive Director
Descripción del propietario
Otros inmuebles de la cartera de CPP INVESTMENTS
Descripción del arquitecto
Elaborado por
Empresa no proporcionada
The Turing Building | Westfield Ave
Parece que se ha producido un error al enviar tu mensaje. Vuelve a intentarlo.
Gracias. Se ha enviado tu mensaje.




