Tu correo electrónico ha sido enviado.


TERRENO Disponibilidad
Mostrar el precio como
| Precio de alquiler |
|
Tamaño del terreno | 0,91 ha |
| Plazo del alquiler | Negociable |
| Precio de alquiler | |
| Plazo del alquiler | Negociable |
| Tamaño del terreno | 0,91 ha |
Descripción general del inmueble
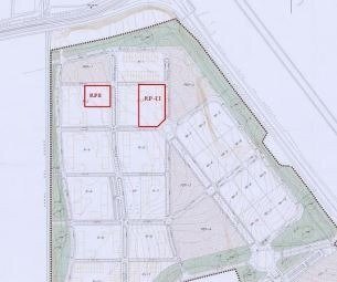
Urbis te ofrece un suelo industrial en venta en Valladolid... Son dos parcelas RP-8 (para 45 unidades) y RP-11 (para 70 unidades) pertenecen al Plan Parcial del Sector 44 Industrial Jalón. La urbanización está recepcionada y la Asociación de Propietarios está en proceso de disolución. No tienen ninguna edificación... La superficie global de las parcelas es de 9.099,3 m2s y le corresponde un aprovechamiento de 12.101,90 m2t para viviendas plurifamiliares en bloque abierto... Las obras de urbanización ejecutadas en el Sector Industrial Jalón, se encuentran finalizadas y con un buen nivel de acabados bueno. Se han delimitado las parcelas con un bordillo de final de acera, que facilita la identificación de las propiedades particulares... Si buscas un suelo industrial, no cabe duda de que con estas parcelas, acertarás... No lo dudes, aquí tienes tu terreno industrial... Comparte con nosotros tus sueños y nuestro PERSONAL SHOPPER inmobiliario los hará realidad. Financiación a medida, hasta el 100%... ¿Quieres visitarlo? o necesitas más información, llama al y pásate al rosa... Por deseo de algunos propietarios, tenemos inmuebles en esta misma zona que solo están anunciados en nuestra web. Para verlos entre en .
Información del edificio
| Espacio total disponible | 0,91 ha | Subtipo de inmueble | Comercial |
| Tipo de inmueble | Terreno |
| Espacio total disponible | 0,91 ha |
| Tipo de inmueble | Terreno |
| Subtipo de inmueble | Comercial |
Elaborado por
"Valladolid, Valladolid 47013"
Parece que se ha producido un error al enviar tu mensaje. Vuelve a intentarlo.
Gracias. Se ha enviado tu mensaje.
