Tu correo electrónico ha sido enviado.


Parte de la información se ha traducido automáticamente.
Aspectos destacados
- Excellent connectivity to M6, M54, and key Midlands distribution routes
- 30 million people reachable within a two-hour drive
- Ideal for nationwide and regional food distribution
Resumen ejecutivo
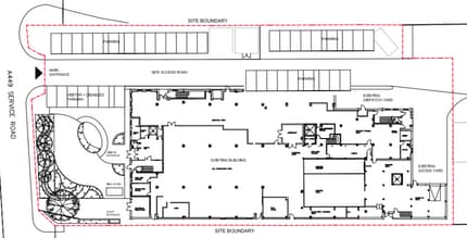
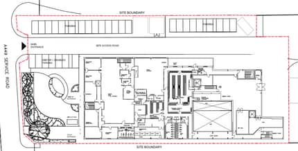
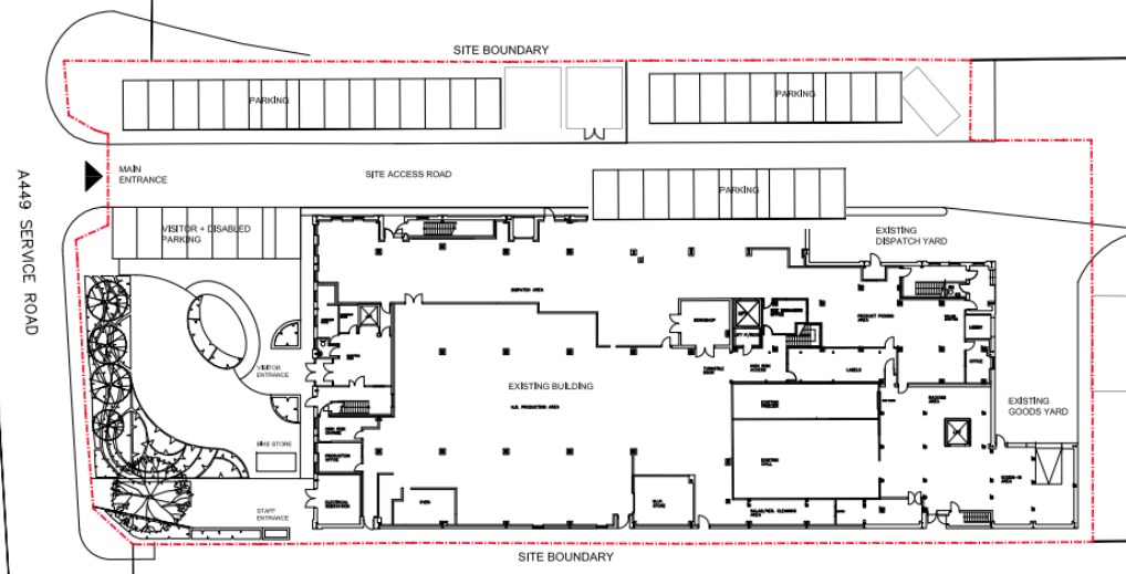
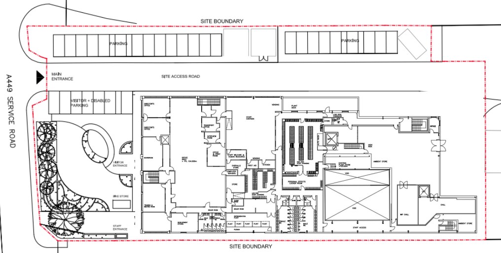
The property offers a plug-and-play, food-grade infrastructure designed to meet the highest compliance standards, suitable for businesses that are expanding or relocating. It is retailer-approved and holds a BRC Grade A certification for both high-risk and low-risk operations. The facility includes temperature-controlled zones and employs trained, experienced on-site food production staff. Its flexible layout supports a wide range of food processing applications. The site is secure and gated, providing excellent logistical access.
Información del edificio
| Tipo de venta | Usuario propietario | N.º de plantas | 1 |
| Tenencia | Plena propiedad | Año de construcción | 1975 |
| Tipo de inmueble | Nave | Alquiler | Único inquilino |
| Subtipo de inmueble | Procesamiento de alimentos | Ratio de parking | 0,07/1.000 m² |
| Clase de edificio | B | N.º de puertas a nivel del suelo o que permiten el acceso directo con vehículo | 2 |
| Superficie bruta alquilable | 3.530 m² |
| Tipo de venta | Usuario propietario |
| Tenencia | Plena propiedad |
| Tipo de inmueble | Nave |
| Subtipo de inmueble | Procesamiento de alimentos |
| Clase de edificio | B |
| Superficie bruta alquilable | 3.530 m² |
| N.º de plantas | 1 |
| Año de construcción | 1975 |
| Alquiler | Único inquilino |
| Ratio de parking | 0,07/1.000 m² |
| N.º de puertas a nivel del suelo o que permiten el acceso directo con vehículo | 2 |
Características del edificio
- Línea de autobús
- Recinto cerrado
- Sistema de seguridad
- Señalización
- Recepción
- Persianas automáticas
Servicios básicos
- Gas
- Agua
- Alcantarillado
Espacios disponibles
- Espacio
- Tamaño
- Uso
- Acondicionamiento
- Disponible
An exceptional opportunity to lease approx. 38,000 sq ft stateof-the-art Food Processing Facility. The property offers a plug-and-play, food-grade infrastructure designed to meet the highest compliance standards, suitable for businesses that are expanding or relocating. It is retailer-approved and holds a BRC Grade A certification for both high-risk and low-risk operations. The facility includes temperature-controlled zones and employs trained, experienced on-site food production staff. Its flexible layout supports a wide range of food processing applications. The site is secure and gated, providing excellent logistical access.
An exceptional opportunity to lease approx. 38,000 sq ft stateof-the-art Food Processing Facility. The property offers a plug-and-play, food-grade infrastructure designed to meet the highest compliance standards, suitable for businesses that are expanding or relocating. It is retailer-approved and holds a BRC Grade A certification for both high-risk and low-risk operations. The facility includes temperature-controlled zones and employs trained, experienced on-site food production staff. Its flexible layout supports a wide range of food processing applications. The site is secure and gated, providing excellent logistical access.
| Espacio | Tamaño | Uso | Acondicionamiento | Disponible |
| Planta baja | 1.987 m² | Nave | Construcción parcial | Inmediata |
| Planta 1 | 1.543 m² | Nave | Construcción parcial | Inmediata |
Planta baja
| Tamaño |
| 1.987 m² |
| Uso |
| Nave |
| Acondicionamiento |
| Construcción parcial |
| Disponible |
| Inmediata |
Planta 1
| Tamaño |
| 1.543 m² |
| Uso |
| Nave |
| Acondicionamiento |
| Construcción parcial |
| Disponible |
| Inmediata |
Planta baja
| Tamaño | 1.987 m² |
| Uso | Nave |
| Acondicionamiento | Construcción parcial |
| Disponible | Inmediata |
An exceptional opportunity to lease approx. 38,000 sq ft stateof-the-art Food Processing Facility. The property offers a plug-and-play, food-grade infrastructure designed to meet the highest compliance standards, suitable for businesses that are expanding or relocating. It is retailer-approved and holds a BRC Grade A certification for both high-risk and low-risk operations. The facility includes temperature-controlled zones and employs trained, experienced on-site food production staff. Its flexible layout supports a wide range of food processing applications. The site is secure and gated, providing excellent logistical access.
Planta 1
| Tamaño | 1.543 m² |
| Uso | Nave |
| Acondicionamiento | Construcción parcial |
| Disponible | Inmediata |
An exceptional opportunity to lease approx. 38,000 sq ft stateof-the-art Food Processing Facility. The property offers a plug-and-play, food-grade infrastructure designed to meet the highest compliance standards, suitable for businesses that are expanding or relocating. It is retailer-approved and holds a BRC Grade A certification for both high-risk and low-risk operations. The facility includes temperature-controlled zones and employs trained, experienced on-site food production staff. Its flexible layout supports a wide range of food processing applications. The site is secure and gated, providing excellent logistical access.
Elaborado por
Stafford Court | Stafford Rd
Parece que se ha producido un error al enviar tu mensaje. Vuelve a intentarlo.
Gracias. Se ha enviado tu mensaje.




