Tu correo electrónico ha sido enviado.



Parte de la información se ha traducido automáticamente.
Aspectos destacados
- Allocated car parking spaces.
- Detached grade A office building
- Close to A45/A46 Tollbar Island interchange
Resumen ejecutivo
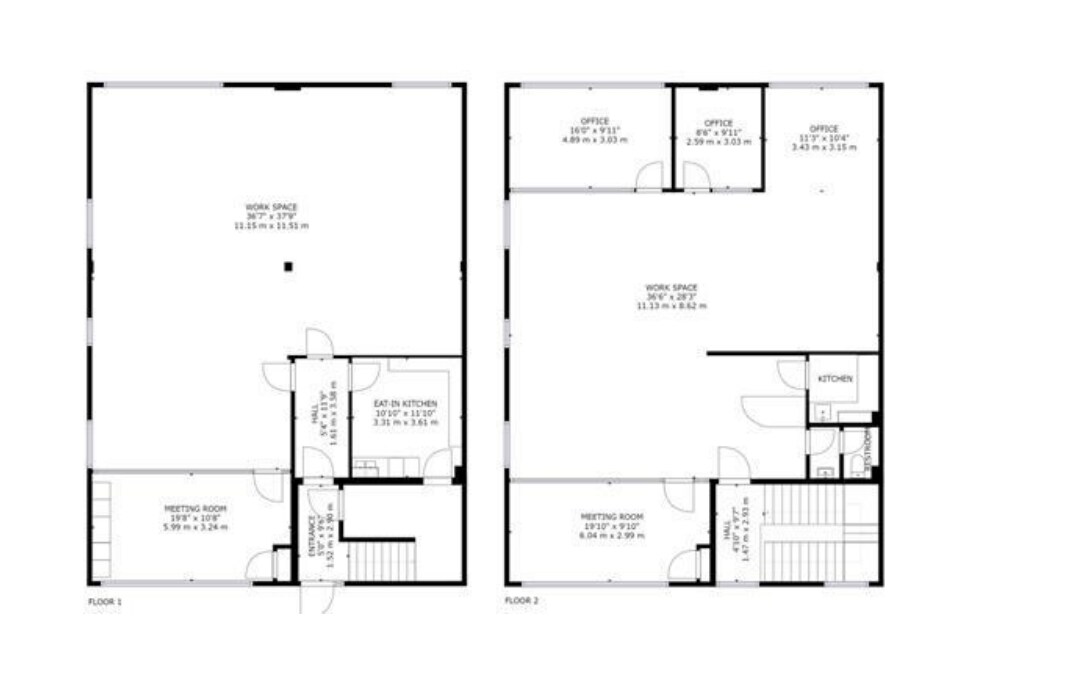
The property comprises a detached and self-contained two floor office building which forms part of a business park. The building is of modern steel frame construction with external walls clad in cavity brickwork under a pitched tile covered roof. The property is located within Phase 1 of the Courtyard Office Scheme known as Cobalt Centre situated on the south eastern corner of Middlemarch Park with direct access from Siskin Parkway East which forms part of the main circulatory road of the estate. Middlemarch Business Park is situated just off the intersection of the A45 and A46 trunk roads at Toll Bar End, this being on the south eastern side of Coventry and close to Coventry Airport. The access provides excellent communications to the Midlands Motorway Network including the M45, M1, M6, M42 and M69 which are all within easy reach.
1 Unidad disponible
- Unidad
- Tamaño
- Uso
- Precio
- Ingresos netos de explotación
| Tipo de venta | Usuario propietario | Tenencia | Plena propiedad |
| Tipo de venta | Usuario propietario |
| Tenencia | Plena propiedad |
established office park on Middlemarch Business Park, known as The Cobalt
Centre. The offices are self-contained and benefit from a high quality fit
out including glazed boardroom. There is a ceiling mounted heating /
cooling system and full access raised floors with floor boxes, power and
data in situ.
| Unidad | Tamaño | Uso | Precio | Ingresos netos de explotación |
| Unidad 6 | 152 m² | Oficina | Bajo solicitud | - |
Unidad 6
| Tamaño |
| 152 m² |
| Uso |
| Oficina |
| Precio |
| Bajo solicitud |
| Ingresos netos de explotación |
| - |
Unidad 6
| Tamaño | 152 m² |
| Uso | Oficina |
| Precio | Bajo solicitud |
| Ingresos netos de explotación | - |
| Tipo de venta | Usuario propietario |
| Tenencia | Plena propiedad |
| Descripción | |
| Modern detached two storey office building, forming part of the<br> established office park on Middlemarch Business Park, known as The Cobalt<br> Centre. The offices are self-contained and benefit from a high quality fit<br> out including glazed boardroom. There is a ceiling mounted heating /<br> cooling system and full access raised floors with floor boxes, power and<br> data in situ.</li></ul> | |
| Notas de venta | |
| Price on application</li></ul> |
Información del edificio
| Tamaño total del edificio | 295 m² | Tamaño de planta tipo | 145 m² |
| Tipo de inmueble | Oficina (Edificio multipropietario) | Año de construcción | 2008 |
| Clase de edificio | B | Tamaño del terreno | 0,04 ha |
| Plantas | 2 |
| Tamaño total del edificio | 295 m² |
| Tipo de inmueble | Oficina (Edificio multipropietario) |
| Clase de edificio | B |
| Plantas | 2 |
| Tamaño de planta tipo | 145 m² |
| Año de construcción | 2008 |
| Tamaño del terreno | 0,04 ha |
Características del edificio
- Patio
- Sistema de seguridad
- Calificación energética - C
- Aire acondicionado
- Sistema de suelo elevado
Elaborado por
Siskin Pky E - The Cobalt Centre
Parece que se ha producido un error al enviar tu mensaje. Vuelve a intentarlo.
Gracias. Se ha enviado tu mensaje.


