Tu correo electrónico ha sido enviado.



Información del edificio
| Precio | 920.000 € | Tipo de inmueble | Terreno |
| Tipo de venta | Inversión o usuario propietario | Subtipo de inmueble | Comercial |
| N.º de terrenos | 1 | Tamaño total del terreno | 0,03 ha |
| Precio | 920.000 € |
| Tipo de venta | Inversión o usuario propietario |
| N.º de terrenos | 1 |
| Tipo de inmueble | Terreno |
| Subtipo de inmueble | Comercial |
| Tamaño total del terreno | 0,03 ha |
1 Terreno disponible
Terreno
| Precio | 920.000 € | Tamaño del terreno | 0,03 ha |
| Precio por ha | 29.870.309,44 € |
| Precio | 920.000 € |
| Precio por ha | 29.870.309,44 € |
| Tamaño del terreno | 0,03 ha |
Descripción
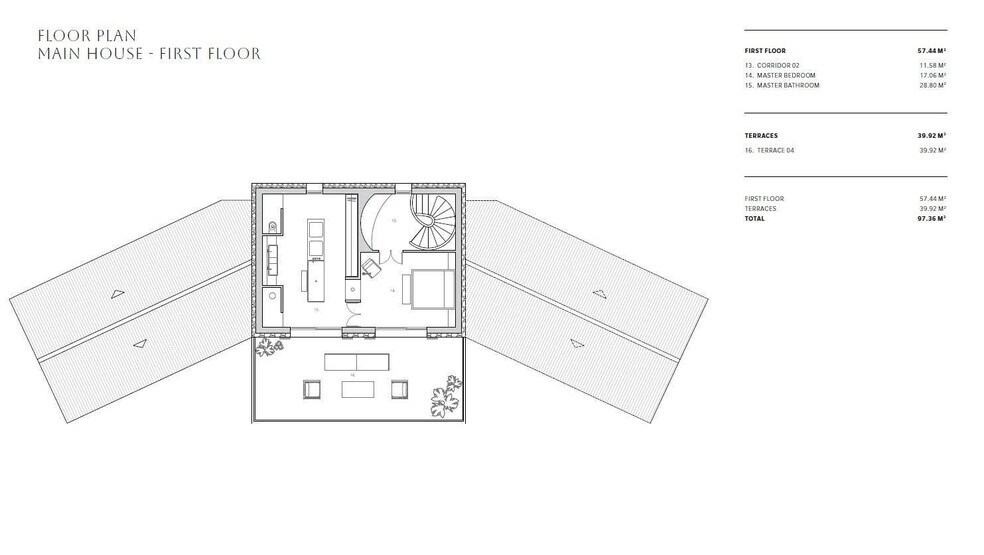
Presentamos un terreno excepcional de 59.235 m² en una de las zonas más demandadas del sureste de Mallorca. Lo que hace única a esta finca no es solo su tamaño, sino contar con un Proyecto aprobado y la Licencia para construir. Ubicación Estratégica Situada en el triángulo de oro del sureste: Privacidad absoluta: En el tranquilo entorno rural de Ses Salines. Conectividad: A solo 5 minutos del alma de Santanyí (mercados, arte y gastronomía). Mar: A un paso de las aguas cristalinas de Es Trenc, Playas de Santanyi, Colonia de Sant Jordi y el pintoresco puerto de Cala Figuera. El Proyecto: Arquitectura, Lujo y Funcionalidad La licencia permite la construcción de una imponente vivienda de 482 m² distribuidos con elegancia y sentido práctico: Planta Noble (Zona Social y Descanso): Espacio Open-Concept (120 m²): Salón, comedor y cocina de diseño integrados en un área bañada por la luz natural gracias a sus grandes ventanales. Suites de Invitados: 2 amplios dormitorios con baño privado (en suite). Extras: Elegante distribuidor, aseo de cortesía, despensa y zona de servicio. Planta Superior (El Refugio Maestro): Master Suite de 57 m²: Un santuario privado con vestidor, baño de lujo y acceso directo a una terraza privada de 39 m² con vistas panorámicas al paisaje mallorquín. Sótano y Garaje: Sótano de 120 m² diseñado para la vida moderna: bodega, lavandería, sala técnica y trastero. Garaje cerrado con capacidad para 2 coches, motos y equipamiento deportivo. Exteriores Diseñados para el "Lifestyle" Mallorquín El proyecto exterior es un oasis de convivencia y relax: Piscina de diseño (35 m²): Rodeada de amplias zonas de solárium. Un paraíso de terrazas: Casi 600 m² de terrazas, porches y pérgolas que crean microambientes de sol y sombra para cenas al aire libre y barbacoas. Existe la posibilidad de adquirir este terreno con el proyecto de lujo totalmente finalizado. Una propiedad única diseñada para quienes buscan exclusividad y confort. Solicite más información indicando la Ref. DRAC-CR1510DB.
Elaborado por
"Santanyí, Islas Baleares 07690"
Parece que se ha producido un error al enviar tu mensaje. Vuelve a intentarlo.
Gracias. Se ha enviado tu mensaje.
