Tu correo electrónico ha sido enviado.



Información del edificio
| Precio | 445.000 € | Tipo de inmueble | Terreno |
| Tipo de venta | Inversión o usuario propietario | Subtipo de inmueble | Comercial |
| N.º de terrenos | 1 | Tamaño total del terreno | 0,04 ha |
| Precio | 445.000 € |
| Tipo de venta | Inversión o usuario propietario |
| N.º de terrenos | 1 |
| Tipo de inmueble | Terreno |
| Subtipo de inmueble | Comercial |
| Tamaño total del terreno | 0,04 ha |
1 Terreno disponible
Terreno
| Precio | 445.000 € | Tamaño del terreno | 0,04 ha |
| Precio por ha | 12.714.268,60 € |
| Precio | 445.000 € |
| Precio por ha | 12.714.268,60 € |
| Tamaño del terreno | 0,04 ha |
Descripción
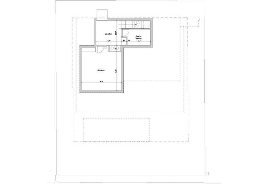
¡Gran Oportunidad ! Parcela de aprox. 350 m² en una ubicación privilegiada de Cap des Moro, con licencia de construcción en vigor y proyecto iniciado. El proyecto aprobado contempla una vivienda unifamiliar de aprox. 150 m² con 3 dormitorios y 3 baños, además de una piscina de 22 m². El sótano el suelo de losa ya están ejecutados y terminados, permitiendo un rápido avance de la obra. La parcela se sitúa en una calle tranquila, a poca distancia del mar y a menos de 10 minutos a pie de la magnífica playa S'Amarador. El acceso al pintoresco pueblo de Santanyí es rápido, a 10 minutos en coche. Cuenta con servicios de electricidad y agua de red disponibles. La base perfecta para terminar su futuro chalet a medida.
Elaborado por
"Santanyí, Islas Baleares 07690"
Parece que se ha producido un error al enviar tu mensaje. Vuelve a intentarlo.
Gracias. Se ha enviado tu mensaje.

