Tu correo electrónico ha sido enviado.



Parte de la información se ha traducido automáticamente.
Aspectos destacados
- Cerca del aeropuerto de Dundee
- Excelente centro de logística/distribución
- Amplio aparcamiento
Características
Espacio disponibles(1)
Mostrar el precio como
- Espacio
- Tamaño
- Duración
- Precio
- Uso
- Acondicionamiento
- Disponible
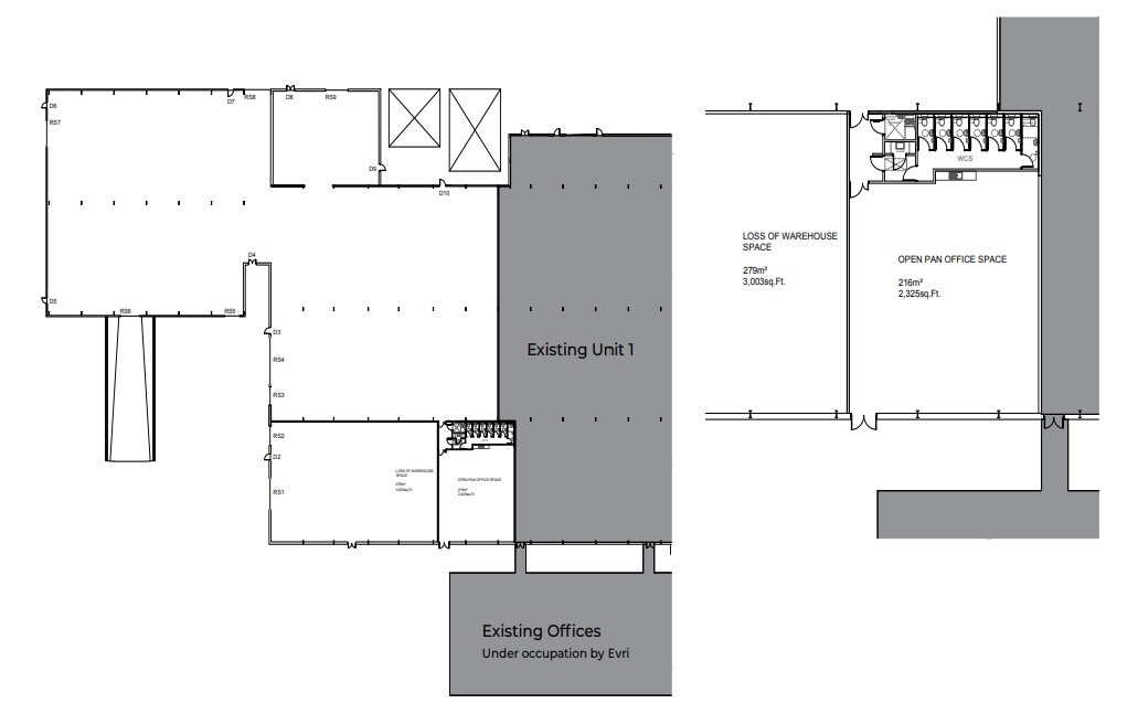
A number of vehicle and pedestrian doors provide access to the property, along with dock leveller access on the southern elevation of the building. Internally, the subjects are reasonably regular in their configuration.
- Clase de uso: Clase 6
- Instalaciones de baño arrendadas
- Excelentes opciones de diseño interno
- Patio de circulación
- Cocina
- Patio
- WC e instalaciones para el personal
| Espacio | Tamaño | Duración | Precio | Uso | Acondicionamiento | Disponible |
| Planta baja | 4.270 m² | Negociable | Bajo solicitud Bajo solicitud Bajo solicitud Bajo solicitud | Nave | Construcción total | Inmediata |
Planta baja
| Tamaño |
| 4.270 m² |
| Duración |
| Negociable |
| Precio |
| Bajo solicitud Bajo solicitud Bajo solicitud Bajo solicitud |
| Uso |
| Nave |
| Acondicionamiento |
| Construcción total |
| Disponible |
| Inmediata |
Planta baja
| Tamaño | 4.270 m² |
| Duración | Negociable |
| Precio | Bajo solicitud |
| Uso | Nave |
| Acondicionamiento | Construcción total |
| Disponible | Inmediata |
A number of vehicle and pedestrian doors provide access to the property, along with dock leveller access on the southern elevation of the building. Internally, the subjects are reasonably regular in their configuration.
- Clase de uso: Clase 6
- Cocina
- Instalaciones de baño arrendadas
- Patio
- Excelentes opciones de diseño interno
- WC e instalaciones para el personal
- Patio de circulación
Descripción general del inmueble
Las instalaciones del sujeto comprenden un almacén semiadosado de planta abierta de buena calidad con aparcamiento y patio asociados. Internamente, las instalaciones están construidas con estructura de pórtico de acero bajo un techo inclinado, con láminas de perfil aislante. Internamente, las instalaciones están dispuestas para proporcionar un almacén de planta abierta con suelo de hormigón con una altura máxima de alero de 8,0 m. Además, las instalaciones cuentan con 7 puertas para vehículos comerciales, múltiples puertas de acceso para peatones y un muelle en la elevación sur del edificio. Externamente, el edificio cuenta con un patio y un área de carga designados. Existe la posibilidad de crear más espacio de patio en la elevación norte, así como más estacionamiento adicional disponible mediante negociación por separado.
Información del edificio: nave logística
Elaborado por
Empresa no proporcionada
Riverside Ave
Parece que se ha producido un error al enviar tu mensaje. Vuelve a intentarlo.
Gracias. Se ha enviado tu mensaje.



