Tu correo electrónico ha sido enviado.



Aspectos destacados
- Inmueble de uso terciario en el distrito de Chamartín, Madrid.
- Accesos mediante metro, autobuses urbanos y vías principales como la M-30.
- Entorno próximo a Parque de Berlín y Auditorio Nacional de Música.
Espacio disponibles(1)
Mostrar el precio como
- Espacio
- Tamaño
- Duración
-
Precio
- Uso
- Acondicionamiento
- Disponible
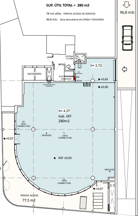
Oficina – Local en esquina con gran visibilidad y excelente luminosidad natural, situado en edificio exclusivo y representativo. El inmueble cuenta con una superficie de 357 m2, distribuida en un espacio completamente diáfano, lo que permite una gran versatilidad de implantación. Dispone de una altura libre de 3 metros, aportando amplitud y confort al espacio. Destaca por su fachada acristalada, que garantiza una magnífica entrada de luz natural durante toda la jornada, reforzando la visibilidad y presencia del activo al tratarse de un local en esquina. El edificio ofrece muelle de carga propio, con acceso directo desde la calle al inmueble, así como dos plazas de aparcamiento incluidas. El espacio se encuentra en buen estado de conservación y está equipado con falso techo modular con luminarias LED empotradas, suelo técnico elevado para cableado, red de datos por suelo técnico, y fibra óptica. Dispone de sistema de climatización individual, sistema de protección contra incendios, seguridad 24 horas con control de accesos, dos ascensores y montacargas. Además, cuenta con cocina y está totalmente adaptado para personas con movilidad reducida. Una excelente oportunidad para empresas que buscan un espacio moderno, funcional y altamente representativo, con visibilidad, luz natural y excelentes prestaciones técnicas.
- El precio incluye gastos de comunidad e impuestos
- Plano de planta abierta
- Espacio esquinero
- Luz natural
- Espacio diáfano
- En esquina con fachada acristalada.
- Suelo técnico elevado y falso techo.
- Dos plazas de aparcamiento incluidas.
- Construido totalmente como Espacio comercial estándar
- Aire acondicionado central
- Falsos techos
- Instalaciones de baño arrendadas
- Superficie diáfana de 357 m2.
- Altura libre interior de 3 m.
- Muelle de carga con acceso directo.
| Espacio | Tamaño | Duración | Precio | Uso | Acondicionamiento | Disponible |
| Planta baja | 357 m² | Negociable | 255,47 € /m²/año INCL 21,29 € /m²/mes INCL 91.201 € /año INCL 7.600 € /mes INCL | Oficina/Local | Construcción total | Inmediata |
Planta baja
| Tamaño |
| 357 m² |
| Duración |
| Negociable |
|
Precio
|
| 255,47 € /m²/año INCL 21,29 € /m²/mes INCL 91.201 € /año INCL 7.600 € /mes INCL |
| Uso |
| Oficina/Local |
| Acondicionamiento |
| Construcción total |
| Disponible |
| Inmediata |
Planta baja
| Tamaño | 357 m² |
| Duración | Negociable |
|
Precio
|
7.600 € /mes INCL |
| Uso | Oficina/Local |
| Acondicionamiento | Construcción total |
| Disponible | Inmediata |
Oficina – Local en esquina con gran visibilidad y excelente luminosidad natural, situado en edificio exclusivo y representativo. El inmueble cuenta con una superficie de 357 m2, distribuida en un espacio completamente diáfano, lo que permite una gran versatilidad de implantación. Dispone de una altura libre de 3 metros, aportando amplitud y confort al espacio. Destaca por su fachada acristalada, que garantiza una magnífica entrada de luz natural durante toda la jornada, reforzando la visibilidad y presencia del activo al tratarse de un local en esquina. El edificio ofrece muelle de carga propio, con acceso directo desde la calle al inmueble, así como dos plazas de aparcamiento incluidas. El espacio se encuentra en buen estado de conservación y está equipado con falso techo modular con luminarias LED empotradas, suelo técnico elevado para cableado, red de datos por suelo técnico, y fibra óptica. Dispone de sistema de climatización individual, sistema de protección contra incendios, seguridad 24 horas con control de accesos, dos ascensores y montacargas. Además, cuenta con cocina y está totalmente adaptado para personas con movilidad reducida. Una excelente oportunidad para empresas que buscan un espacio moderno, funcional y altamente representativo, con visibilidad, luz natural y excelentes prestaciones técnicas.
- El precio incluye gastos de comunidad e impuestos
- Construido totalmente como Espacio comercial estándar
- Plano de planta abierta
- Aire acondicionado central
- Espacio esquinero
- Falsos techos
- Luz natural
- Instalaciones de baño arrendadas
- Espacio diáfano
- Superficie diáfana de 357 m2.
- En esquina con fachada acristalada.
- Altura libre interior de 3 m.
- Suelo técnico elevado y falso techo.
- Muelle de carga con acceso directo.
- Dos plazas de aparcamiento incluidas.
Descripción general del inmueble
Local-oficina en alquiler situada en la calle de Santa María Magdalena, en Madrid. En el entorno cercano se localizan espacios urbanos y equipamientos de referencia como el Parque de Berlín, el Auditorio Nacional de Música y el eje del paseo de la Castellana. En las inmediaciones existen también edificios institucionales, centros educativos, instalaciones sanitarias y áreas comerciales de proximidad, además de oficinas y servicios vinculados a la actividad terciaria del distrito. Las comunicaciones se apoyan en la red de transporte público de Madrid, con estaciones de metro cercanas como Colombia (líneas 8 y 9) y Concha Espina (línea 9), así como varias líneas de autobuses de la EMT que conectan con distintos puntos de la ciudad. El acceso en transporte privado se realiza a través de vías principales como el paseo de la Castellana y la M-30, que facilita la conexión con el resto de la red viaria metropolitana.
- Línea de autobús
- Metro
- Sistema de seguridad
- Cerca del transporte público
- Acceso de minusválidos
- Wifi
- Ascensor
- Iluminación empotrada
- Baño privado
- Aire acondicionado
Información del edificio
Elaborado por
Calle de Santa María Magdalena
Parece que se ha producido un error al enviar tu mensaje. Vuelve a intentarlo.
Gracias. Se ha enviado tu mensaje.



