Tu correo electrónico ha sido enviado.
Aspectos destacados
- Ubicación estratégica y fácil acceso para negocios y residentes.
- Excelente visibilidad en la Calle Armas, Llerena.
Resumen ejecutivo
Edificio residencial con locales comerciales en planta baja, ubicado en la Calle Armas, en Llerena, Badajoz. Construido en 2008, el edificio ofrece buena visibilidad y una ubicación estratégica, ideal tanto para vivienda como para negocios en una zona transitada.
1 Unidad disponible
Unidad -
| Tamaño | 226 m² | Uso | Local |
| Precio | 216.600 € | Tipo de venta | Inversión o usuario propietario |
| Precio por m² | 958,66 € |
| Tamaño | 226 m² |
| Precio | 216.600 € |
| Precio por m² | 958,66 € |
| Uso | Local |
| Tipo de venta | Inversión o usuario propietario |
Descripción
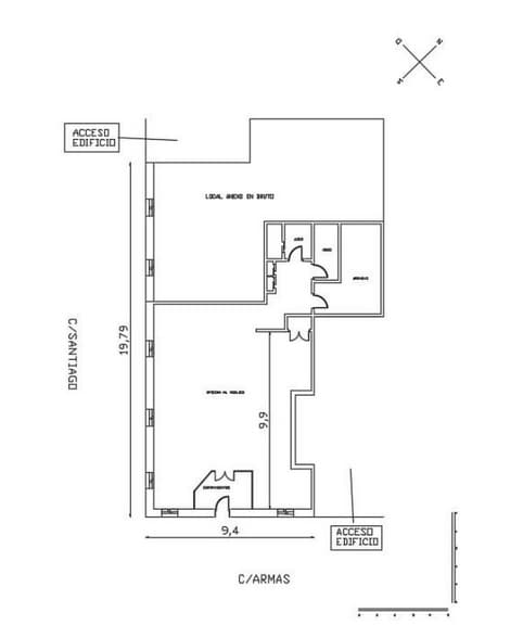
Local comercial en planta baja en la Calle Armas, Llerena, Badajoz. En buen estado, con acceso directo desde la calle y excelente visibilidad, ideal para comercios u oficinas que busquen presencia en una zona transitada.
Notas de venta
Ref: 75332653
Local comercial en planta baja, situado en la Calle Armas, en el municipio de Llerena, provincia de Badajoz. El inmueble se encuentra en buen estado, listo para su uso inmediato, y cuenta con acceso directo desde la calle, lo que facilita la entrada de clientes a pie. Su ubicación estratégica y su excelente visibilidad lo convierten en una opción ideal para comercios, oficinas o cualquier actividad que busque presencia en una zona transitada y con gran afluencia peatonal. Este local ofrece la comodidad de la planta baja y representa una oportunidad perfecta para establecer o expandir un negocio en el corazón de Llerena.
Foto interior
Foto interior
Foto interior
Foto interior
Información del edificio
Elaborado por
Calle Armas
Parece que se ha producido un error al enviar tu mensaje. Vuelve a intentarlo.
Gracias. Se ha enviado tu mensaje.
