Tu correo electrónico ha sido enviado.
Aspectos destacados
- Excelente visibilidad comercial en una de las principales calles de La Zarza.
- Edificio de uso residencial y comercial con dos plantas, ideal para inversión o negocio propio.
Resumen ejecutivo
Edificio residencial y comercial situado en La Zarza (Badajoz), calle Carrera, construido en 1980, con dos plantas sobre rasante y buena visibilidad comercial.
1 Unidad disponible
Unidad -
| Tamaño | 169 m² | Uso | Local |
| Precio | 87.100 € | Tipo de venta | Inversión o usuario propietario |
| Precio por m² | 515,41 € |
| Tamaño | 169 m² |
| Precio | 87.100 € |
| Precio por m² | 515,41 € |
| Uso | Local |
| Tipo de venta | Inversión o usuario propietario |
Descripción
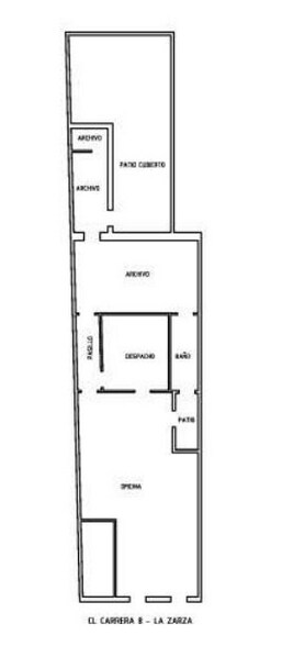
Local en La Zarza (Badajoz), calle Carrera, con una superficie construida de 169 m2.
Notas de venta
Ref: 0075330496
Local ubicado en la provincia de Badajoz, en el municipio de La Zarza, situado en la calle Carrera. El inmueble dispone de una superficie total construida de 169 m2, ofreciendo un espacio amplio y versátil, ideal para el desarrollo de diferentes actividades comerciales, profesionales o de servicios.
Su localización en una de las vías del municipio facilita el acceso y la visibilidad, lo que lo convierte en una opción interesante tanto para inversión como para negocio propio.
Foto fachada
Foto fachada
Foto interior
Foto interior
Plano Alquilujo Internacional
Información del edificio
Características del edificio
- Balcón
Elaborado por
Calle Carrera
Parece que se ha producido un error al enviar tu mensaje. Vuelve a intentarlo.
Gracias. Se ha enviado tu mensaje.
