Tu correo electrónico ha sido enviado.



Parte de la información se ha traducido automáticamente.
Aspectos destacados
- Attractive market town
- Situated in a busy area near public transport and carpark
- Strategically located on the A3
Resumen ejecutivo
This schemes comprises 4 townhouses, 4 apartments and 2 commercial/retail units. Petersfield is an attractive market town strategically located on the A3 London to Portsmouth trunk road approximately 18 miles to the north of Portsmouth and 25 miles to the south of Guildford. Road communications are excellent and in addition Petersfield benefits from a fast frequent train service to London Waterloo and to Portsmouth and the South Coast. The property is situated on The Courtyard, opposite the open air swimming pool and Petersfield festival theatre, a short walk into the town centre. The town offers a wide range of retail and food & beverage including Waitrose, Gails Bakery, Mint Velvet, Crew Clothing, Cafe Nero and Annie Jones.
Información del edificio
| Tamaño total del edificio | 163 m² | Plantas | 3 |
| Tipo de inmueble | Local | Tamaño de planta tipo | 163 m² |
| Subtipo de inmueble | Local a pie de calle en edificio residencial | Año de construcción | 2027 |
| Clase de edificio | B | Tamaño del terreno | 0,06 ha |
| Tamaño total del edificio | 163 m² |
| Tipo de inmueble | Local |
| Subtipo de inmueble | Local a pie de calle en edificio residencial |
| Clase de edificio | B |
| Plantas | 3 |
| Tamaño de planta tipo | 163 m² |
| Año de construcción | 2027 |
| Tamaño del terreno | 0,06 ha |
Características del edificio
- Línea de autobús
- Sistema de seguridad
2 UNidades disponibles
Unidad Left
| Tamaño | 86 m² | Uso | Local |
| Precio | 286.923 € | Tipo de venta | Usuario propietario |
| Precio por m² | 3.317,31 € | Tenencia | Plena propiedad |
| Tamaño | 86 m² |
| Precio | 286.923 € |
| Precio por m² | 3.317,31 € |
| Uso | Local |
| Tipo de venta | Usuario propietario |
| Tenencia | Plena propiedad |
Descripción
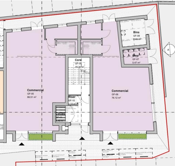
Upon completion, the development will comprise two newly constructed ground floor commercial retail units finished to a shell condition with services capped. Practical completion is anticipated in Spring 2027.
Notas de venta
There is the option to purchase with vacant possession and quote a price of £250,000, per unit, subject to contract.
Floor Plan
Unidad Right
| Tamaño | 76 m² | Uso | Local |
| Precio | 286.923 € | Tipo de venta | Usuario propietario |
| Precio por m² | 3.770,96 € | Tenencia | Plena propiedad |
| Tamaño | 76 m² |
| Precio | 286.923 € |
| Precio por m² | 3.770,96 € |
| Uso | Local |
| Tipo de venta | Usuario propietario |
| Tenencia | Plena propiedad |
Descripción
Upon completion, the development will comprise two newly constructed ground floor commercial retail units finished to a shell condition with services capped. Practical completion is anticipated in Spring 2027.
Notas de venta
There is the option to purchase with vacant possession and quote a price of £250,000, per unit, subject to contract.
Floor Plan
Locales cercanos
Elaborado por
Heath Rd - The Courtyard
Parece que se ha producido un error al enviar tu mensaje. Vuelve a intentarlo.
Gracias. Se ha enviado tu mensaje.

