Tu correo electrónico ha sido enviado.



Parte de la información se ha traducido automáticamente.
Aspectos destacados
- Attractive market town
- Situated in a busy area near public transport and carpark
- Strategically located on the A3
Espacios disponibles (2)
Mostrar el precio como
- Espacio
- Tamaño
- Duración
- Precio
- Tipo
| Espacio | Tamaño | Duración | Precio | Tipo de alquiler | ||
| Planta baja, módulo Left | 86 m² | Negociable | 258,52 € /m²/año 21,54 € /m²/mes 22.361 € /año 1.863 € /mes | Reparación y seguros completos | ||
| Planta baja, módulo Right | 76 m² | Negociable | 293,88 € /m²/año 24,49 € /m²/mes 22.361 € /año 1.863 € /mes | Reparación y seguros completos |
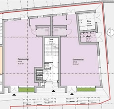
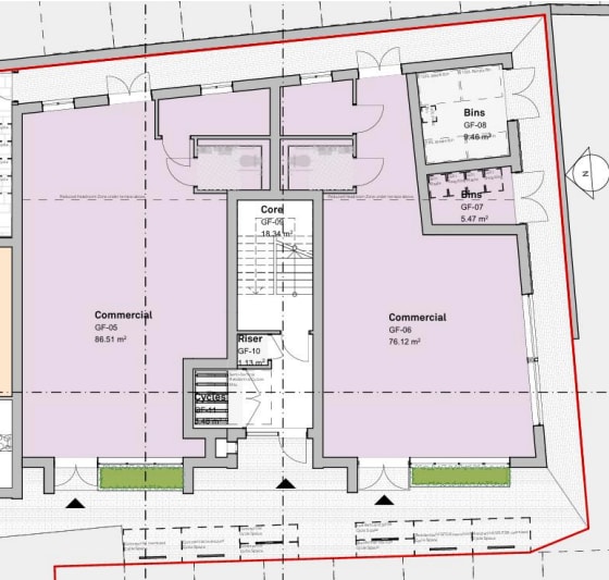
Planta baja, módulo Left
Upon compleon, the development will comprise two newly constructed ground floor commercial retail units finished to a shell condion with services capped. Praccal compleon is ancipated in Spring 2027. The property is available to let by way of a new full repairing and insuring lease for a term to be agreed at a commencing rent of £19,500 per unit, per annum exclusive.
- Clase de uso: E
- Espacio muy demandado en un extremo de un área comercial
- Se puede combinar con otros inmuebles hasta un total de 163 m² de espacio adyacente
- Baños privados
- Open plan accommodaon
- To be finished to shell with services capped
- Brand new unit
Planta baja, módulo Right
Upon compleon, the development will comprise two newly constructed ground floor commercial retail units finished to a shell condion with services capped. Praccal compleon is ancipated in Spring 2027. The property is available to let by way of a new full repairing and insuring lease for a term to be agreed at a commencing rent of £19,500 per unit, per annum exclusive.
- Clase de uso: E
- Espacio muy demandado en un extremo de un área comercial
- Se puede combinar con otros inmuebles hasta un total de 163 m² de espacio adyacente
- Baños privados
- Open plan accommodaon
- To be finished to shell with services capped
- Brand new unit
Gastos de comunidad
La cuota del alquiler y los gastos de comunidad que el inquilino (arrendatario) es responsable de pagar al propietario (arrendador) a lo largo del plazo del alquiler se negocian antes de que ambas partes firmen el contrato de alquiler. Los gastos de comunidad variarán en función de los servicios ofrecidos. Contactar con el agente del anuncio para conocer mejor los costes asociados a cada tipo de servicios o sus gastos adicionales.
1. Reparación y seguros completos: Todas las obligaciones de reparación y seguros del inmueble (o su parte del inmueble), ya sean interna o externamente.
2. Solo reparación interna: El inquilino solo es responsable de las reparaciones internas. El propietario es responsable de las reparaciones estructurales y externas.
3. Reparación y seguros internos: El inquilino solo es responsable de las reparaciones internas y del seguro de las partes internas del inmueble. El propietario es responsable de las reparaciones estructurales y externas.
4. Negociable o por det.: Se usa cuando el contacto de alquiler no establece los gastos de comunidad
Información del edificio
| Espacio total disponible | 163 m² | Superficie bruta alquilable | 163 m² |
| Tipo de inmueble | Local | Año de construcción | 2027 |
| Subtipo de inmueble | Local a pie de calle en edificio residencial | Estado de construcción | Suelo urbano |
| Espacio total disponible | 163 m² |
| Tipo de inmueble | Local |
| Subtipo de inmueble | Local a pie de calle en edificio residencial |
| Superficie bruta alquilable | 163 m² |
| Año de construcción | 2027 |
| Estado de construcción | Suelo urbano |
Descripción del inmueble
This schemes comprises 4 townhouses, 4 apartments and 2 commercial/retail units. Petersfield is an attractive market town strategically located on the A3 London to Portsmouth trunk road approximately 18 miles to the north of Portsmouth and 25 miles to the south of Guildford. Road communications are excellent and in addition Petersfield benefits from a fast frequent train service to London Waterloo and to Portsmouth and the South Coast. The property is situated on The Courtyard, opposite the open air swimming pool and Petersfield festival theatre, a short walk into the town centre. The town offers a wide range of retail and food & beverage including Waitrose, Gails Bakery, Mint Velvet, Crew Clothing, Cafe Nero and Annie Jones.
- Línea de autobús
- Sistema de seguridad
Locales cercanos
Elaborado por
The Courtyard | Heath Rd
Parece que se ha producido un error al enviar tu mensaje. Vuelve a intentarlo.
Gracias. Se ha enviado tu mensaje.


