Tu correo electrónico ha sido enviado.



Información del edificio
| Precio | 7.000.000 € | Tipo de inmueble | Terreno |
| Tipo de venta | Inversión o usuario propietario | Subtipo de inmueble | Comercial |
| N.º de terrenos | 1 | Tamaño total del terreno | 2,96 ha |
| Precio | 7.000.000 € |
| Tipo de venta | Inversión o usuario propietario |
| N.º de terrenos | 1 |
| Tipo de inmueble | Terreno |
| Subtipo de inmueble | Comercial |
| Tamaño total del terreno | 2,96 ha |
1 Terreno disponible
Terreno
| Precio | 7.000.000 € | Tamaño del terreno | 2,96 ha |
| Precio por ha | 2.367.507,82 € |
| Precio | 7.000.000 € |
| Precio por ha | 2.367.507,82 € |
| Tamaño del terreno | 2,96 ha |
Descripción
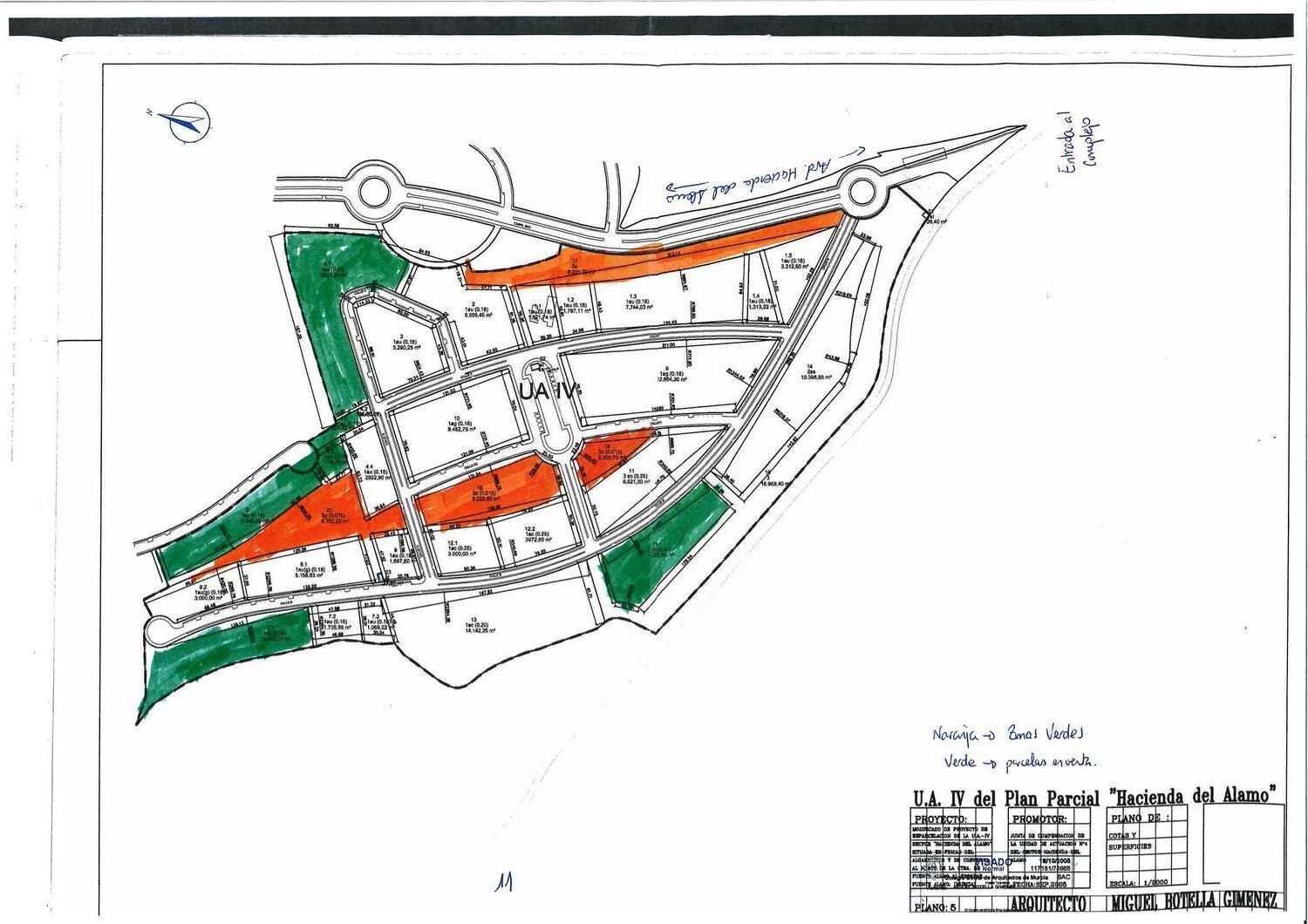
INFORMACIÓN COMERCIAL: - En venta suelo urbano, urbanización ejecutada. - En total, 6 parcelas siendo 1 de ellas de uso hotelero o para hacer viviendas turísticas. - Las 6 parcelas se encuentran dentro del campo de golf inaugurado en el año 2004. - Superficie total de las parcelas: 29.567, 24 m2 - Tipología de vivienda: residencial unifamiliar aislada o agrupada. - Volumen de viviendas: 92 viviendas - Superficie edificable (edificabilidad): aproximadamente 10.000 m2 - En el plano, parcelas en color verde y zonas verdes en color naranja. OTROS DATOS DE INTERÉS: * En Hacienda del Álamo Golf & Resort hay un supermercado, tiendas, cafeterías, restaurantes, instalaciones deportivas, etc. + Complejo privado, cerrado perimetralmente y con seguridad. * El núcleo urbano de Fuente Álamo se encuentra a 5 km. * Distancia a playas del Mediterráneo 17 km (Isla Plana, La Azohia) y a playas del Mar Menor 26 km * Distancia a Cartagena 25 km y a Murcia capital 36 km. * Buenas comunicaciones por carretera y autopista. * Aeropuerto internacional de Corvera a 12,8 km y al aeropuerto de Alicante 115 km, con vuelos regulares a toda Europa.
Elaborado por
Hacienda del, S/N
Parece que se ha producido un error al enviar tu mensaje. Vuelve a intentarlo.
Gracias. Se ha enviado tu mensaje.
