Tu correo electrónico ha sido enviado.



Información del edificio
Acerca FUENGIROLA, MAL 29640
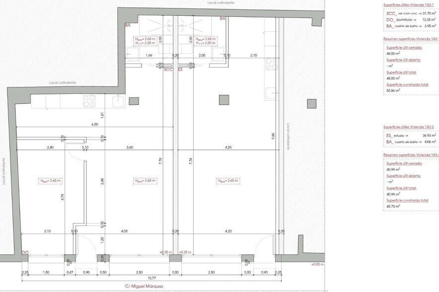
Local Comercial en venta a 50m del Paseo Marítimo de Fuengirola - Gran potencial de inversión Oportunidad de inversión en una de las ubicaciones más cotizadas de Fuengirola: Calle Miguel Márquez, a solo 50 metros del Paseo Marítimo. Local comercial de 102 m², actualmente diáfano, con proyecto en tramitación para cambio de uso y segregación ante el Ayuntamiento. El proyecto contempla la creación de: • 1 apartamento de 1 dormitorio • 1 estudio independiente Se incluyen en el anuncio: ?? Plano del proyecto aprobado por arquitecto ??? Imágenes orientativas realizadas con IA que muestran el potencial y posible resultado final (renders no contractuales) Una vez finalizada la transformación, el activo se convierte en una excelente opción para: ?? Alquiler de larga temporada ?? Alquiler de media estancia ?? Reventa individual de las unidades ?? Estrategia patrimonial con alta demanda en zona prime Ubicación estratégica junto al mar, servicios, transporte y zona consolidada con fuerte demanda nacional e internacional. Producto ideal para inversores que buscan crear valor desde el primer momento. Para más información técnica y estudio de rentabilidad estimada, contáctanos. El precio indicado no incluye impuestos ni gastos. Se aplicará ITP 7 %, además de notaría (aprox. 0,3 %-0,5 %) y Registro de la propiedad (aprox. 0,1 %-0,3 %) sobre el precio de venta. Los importes indicados tienen carácter meramente informativo y pueden variar según el caso concreto. Para esta propiedad, los gastos aproximados serán de: ITP: 27.650€ Notaría: Entre 1.185€ (0,3%) y 1.975€ (0,5%) Registro de la propiedad: Entre 395€ (0,1%) y 1,185€ (0,3%) La compraventa de este inmueble no conlleva honorarios de intermediación inmobiliaria para la parte compradora. El local se vende sin mobiliario
Locales cercanos
Elaborado por
"Fuengirola, Málaga 29640"
Parece que se ha producido un error al enviar tu mensaje. Vuelve a intentarlo.
Gracias. Se ha enviado tu mensaje.
