Tu correo electrónico ha sido enviado.



Parte de la información se ha traducido automáticamente.
Aspectos destacados
- Ubicación destacada junto al centro de ocio Olympia
- Local comercial en el centro de la ciudad con amplia fachada
- Frente al parque comercial Gallagher
Espacios disponibles (1)
Mostrar el precio como
- Espacio
- Tamaño
- Duración
- Precio
- Tipo
| Espacio | Tamaño | Duración | Precio | Tipo de alquiler | ||
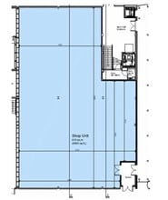
| Planta baja | 610 m² | Negociable | 140,99 € /m²/año 11,75 € /m²/mes 86.002 € /año 7.167 € /mes | Reparación y seguros completos |
Planta baja
The subjects comprise a new, ground floor retail unit finished to shell specification.
- Clase de uso: Clase 1A
- Ubicado en línea con otros locales
- Almacenamiento seguro
- Nueva unidad comercial en la planta baja
Gastos de comunidad
La cuota del alquiler y los gastos de comunidad que el inquilino (arrendatario) es responsable de pagar al propietario (arrendador) a lo largo del plazo del alquiler se negocian antes de que ambas partes firmen el contrato de alquiler. Los gastos de comunidad variarán en función de los servicios ofrecidos. Contactar con el agente del anuncio para conocer mejor los costes asociados a cada tipo de servicios o sus gastos adicionales.
1. Reparación y seguros completos: Todas las obligaciones de reparación y seguros del inmueble (o su parte del inmueble), ya sean interna o externamente.
2. Solo reparación interna: El inquilino solo es responsable de las reparaciones internas. El propietario es responsable de las reparaciones estructurales y externas.
3. Reparación y seguros internos: El inquilino solo es responsable de las reparaciones internas y del seguro de las partes internas del inmueble. El propietario es responsable de las reparaciones estructurales y externas.
4. Negociable o por det.: Se usa cuando el contacto de alquiler no establece los gastos de comunidad
Información del edificio
| Espacio total disponible | 610 m² | Superficie bruta alquilable | 18.581 m² |
| Tipo de inmueble | Local | Año de construcción | 2013 |
| Subtipo de inmueble | Local a pie de calle | Ratio de parking | 0,19/1.000 m² |
| Espacio total disponible | 610 m² |
| Tipo de inmueble | Local |
| Subtipo de inmueble | Local a pie de calle |
| Superficie bruta alquilable | 18.581 m² |
| Año de construcción | 2013 |
| Ratio de parking | 0,19/1.000 m² |
Descripción del inmueble
La propiedad tiene una fachada prominente a East Whale Lane, junto al centro de ocio Olympia, que ha recibido a 500 000 visitantes a la piscina, el gimnasio y el centro de ocio hasta noviembre de 2018. Los huéspedes se centran en el parque comercial Gallagher, donde entre sus inquilinos se encuentran M&S Simply Food, Next Matalan TK Maxx, Brantano y DW Fitness. Hay un amplio aparcamiento público en las inmediaciones de los huéspedes.
- Acceso 24 horas
- Línea de autobús
- Almacén/trastero
Locales cercanos
Elaborado por
Retail Premises | East Whale Ln
Parece que se ha producido un error al enviar tu mensaje. Vuelve a intentarlo.
Gracias. Se ha enviado tu mensaje.



