Iniciar sesión/Registrarse
Tu correo electrónico ha sido enviado.


Parte de la información se ha traducido automáticamente.
RESUMEN EJECUTIVO
A VENDRE ! Terrains allant d'environ 1269m² à 2570 m² environ DREMIL LAFAGE
Accès A68 à environ 18mn et A61 à environ 20mn !
Descriptif:
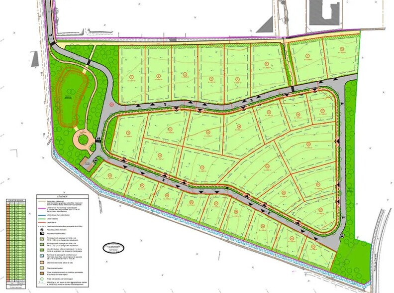
A Dremil-Lafage, dans une zone d'activités, nous vous proposons plusieurs terrains industriels à vendre allant d'environ 1269m² à 2570 m² environ, avec possibilité de construction en VEFA (Vente en Etat Futur Achèvement) : nous consulter pour voir les conditions
- Permis déposé et purgé de tous recours des tiers en date du 15/08/2023
- Régime : Locaux d'activité, Bureaux (pas d'usine ni d'entrepôt logistique)
- Hauteur construction 12 m
- Construction en limite 4 m min
– Espace Vert 25% de l'unité foncière
- surface de plancher maximale 60% de l'unité foncière
D'autres terrains sont disponibles sur ce site! Nous consulter.
Prix de vente net vendeur à partir de 150 000 EUR HT
Honoraires d'agence à la charge du vendeur, pas de frais d'agence à la charge de l'acquéreur pour l'achat de terrains
Disponible Immédiatement !!!
A visiter Absolument !
REF T-19197
Pour visiter contacter Cédric GONZALEZ au 06 84 97 70 62 ou 05 61 61 77 77
VUDENHAUT IMMO - Agences TOULOUSE SUD & SUD-EST
www.vdh-immo.com
Accès A68 à environ 18mn et A61 à environ 20mn !
Descriptif:
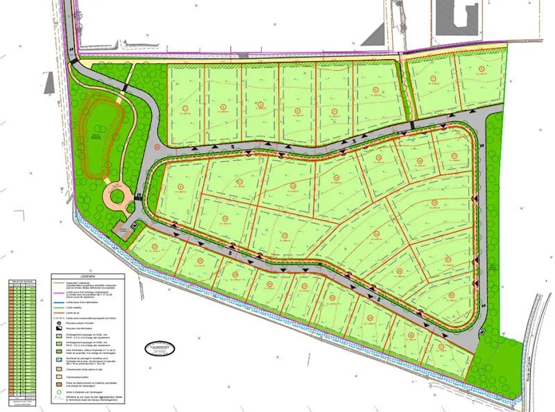
A Dremil-Lafage, dans une zone d'activités, nous vous proposons plusieurs terrains industriels à vendre allant d'environ 1269m² à 2570 m² environ, avec possibilité de construction en VEFA (Vente en Etat Futur Achèvement) : nous consulter pour voir les conditions
- Permis déposé et purgé de tous recours des tiers en date du 15/08/2023
- Régime : Locaux d'activité, Bureaux (pas d'usine ni d'entrepôt logistique)
- Hauteur construction 12 m
- Construction en limite 4 m min
– Espace Vert 25% de l'unité foncière
- surface de plancher maximale 60% de l'unité foncière
D'autres terrains sont disponibles sur ce site! Nous consulter.
Prix de vente net vendeur à partir de 150 000 EUR HT
Honoraires d'agence à la charge du vendeur, pas de frais d'agence à la charge de l'acquéreur pour l'achat de terrains
Disponible Immédiatement !!!
A visiter Absolument !
REF T-19197
Pour visiter contacter Cédric GONZALEZ au 06 84 97 70 62 ou 05 61 61 77 77
VUDENHAUT IMMO - Agences TOULOUSE SUD & SUD-EST
www.vdh-immo.com
INFORMACIÓN DEL EDIFICIO
| Precio | 150.000 € | Tipo de inmueble | Terreno |
| Tipo de venta | Usuario propietario | Subtipo de inmueble | Comercial |
| N.º de terrenos | 1 | Tamaño total del terreno | 0,13 ha |
| Precio | 150.000 € |
| Tipo de venta | Usuario propietario |
| N.º de terrenos | 1 |
| Tipo de inmueble | Terreno |
| Subtipo de inmueble | Comercial |
| Tamaño total del terreno | 0,13 ha |
1 TERRENO DISPONIBLE
Terreno
| Precio | 150.000 € | Tamaño del terreno | 0,13 ha |
| Precio por ha | 1.182.069,77 € |
| Precio | 150.000 € |
| Precio por ha | 1.182.069,77 € |
| Tamaño del terreno | 0,13 ha |
1 1
1 de 3
VÍDEOS
MATTERPORT TOUR EXTERIOR EN 3D
MATTERPORT TOUR EN 3D
FOTOS
STREET VIEW
CALLE
MAPA
1 de 1
Elaborado por
"31280 Drémil-Lafage"
¿Tienes cuenta con nosotros? Iniciar sesión
Parece que se ha producido un error al enviar tu mensaje. Vuelve a intentarlo.
Gracias. Se ha enviado tu mensaje.
