Tu correo electrónico ha sido enviado.



Aspectos destacados
- Video Intercom.
- washing room.
- Alarm.
Información del edificio
| Precio | 461.000 € | Tipo de inmueble | Terreno |
| Tipo de venta | Inversión o usuario propietario | Subtipo de inmueble | Comercial |
| N.º de terrenos | 1 | Tamaño total del terreno | 0,13 ha |
| Precio | 461.000 € |
| Tipo de venta | Inversión o usuario propietario |
| N.º de terrenos | 1 |
| Tipo de inmueble | Terreno |
| Subtipo de inmueble | Comercial |
| Tamaño total del terreno | 0,13 ha |
1 Terreno disponible
Terreno
| Precio | 461.000 € | Tamaño del terreno | 0,13 ha |
| Precio por ha | 3.624.214,36 € |
| Precio | 461.000 € |
| Precio por ha | 3.624.214,36 € |
| Tamaño del terreno | 0,13 ha |
Descripción
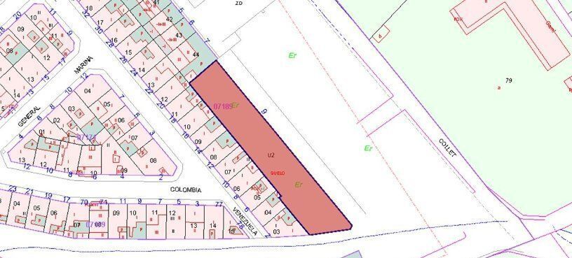
Suelo urbano de uso residencial, situado en Castellón de la Plana... Cuenta con una superficie de 1272 m2. Permite una edificabilidad aproximada de 5088 m2... Ubicado en zona urbana periférica residencia, junto a la Universidad Jaume I, entre la autopista del Mediterráneo AP-7, calle de Borriol y el camino del Collet... La forma del suelo es rectangular y es bastante llano... Ubicado cerca de centros de enseñanza, supermercado, centro de salud, parque, centro comercial, farmacia, transporte público y privado... A 10 minutos caminando de la parada del tranvía con servicio de la línea T1... La estación de tren se encuentra a una distancia de 1.5 kilómetros y la carretera nacional N-340 a 1.8 kilómetros...
Elaborado por
"CASTELLÓN DE LA PLANA, Castellón 12004"
Parece que se ha producido un error al enviar tu mensaje. Vuelve a intentarlo.
Gracias. Se ha enviado tu mensaje.
