Tu correo electrónico ha sido enviado.



Aspectos destacados
- Zona logística de referencia, con presencia de empresas líderes del sector del transporte, distribución, alimentación y retail.
- Excelentes comunicaciones tanto por carretera A-1, M-50, M-40.
Características
Espacio disponibles(1)
Mostrar el precio como
- Espacio
- Tamaño
- Duración
-
Precio
- Uso
- Acondicionamiento
- Disponible
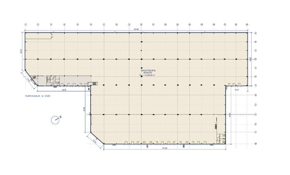
Ref. MAD-IND-01629 San Agustín DC1 es una plataforma logística de última generación diseñada para satisfacer las necesidades operativas de empresas del sector logístico, distribución o comercio electrónico, esta nave ofrece una solución flexible y eficiente. Cuenta con una superficie total de 14.945 m2 con 14.500 m2 de almacén y 445 m2 de oficinas. Las características técnicas son las siguientes: - Estructura de pórticos paralelos de hormigón prefabricado. - Cubierta tipo sándwich con aislamiento y ventilación natural. - Protección contra incendios completa: ESFR, red de BIEs, hidratantes exteriores, extintores. - 19 muelles de carga con puertas seccionales y abrigos. - Solera de hormigón de 20 cm con resistencia a cargas puntuales de 8 Tn. - Altura libre: 12 m. - Vallado perimetral y CCTV. El entorno inmediato está consolidado como una zona logística de referencia, con presencia de empresas líderes del sector del transporte, distribución, alimentación y retail. La zona ofrece excelentes comunicaciones tanto por carretera como por proximidad a centros urbanos. Además, San Agustín de Guadalix es un municipio con fuerte desarrollo industrial, baja densidad de tráfico pesado en comparación con otros ejes y una administración local favorable al desarrollo empresarial. Ubicada estratégicamente en el corazón del corredor logístico norte de Madrid, esta nave industrial forma parte del reconocido Pologis Park San Agustín, uno de los enclaves logísticos de referencia en la Comunidad de Madrid. Se sitúa en el Polígono Industrial Sur de San Agustín de Guadalix, con acceso directo desde la Calle La Lobera, gozando de excelentes comunicaciones tanto por carretera (A-1, M-50, M-40) como por proximidad a núcleos urbanos e infraestructuras clave.
- El precio no incluye gastos de comunidad e impuestos
- Oficinas divididas
- Sistema de seguridad
- Luz natural
- Plataforma logística de última generación.
- Ideal para logística de cualquier sector.
- Aire acondicionado central
- Baños privados
- Monitorización con circuito cerrado de televisión (CCTV)
- Patio
- 19 muelles de carga.
- Excelentes comunicaciones por A-1, M-50 y M-40.
| Espacio | Tamaño | Duración | Precio | Uso | Acondicionamiento | Disponible |
| Planta baja | 14.945 m² | Negociable | 49,20 € /m²/año EXCL 4,10 € /m²/mes EXCL 735.289 € /año EXCL 61.274 € /mes EXCL | Nave | - | Inmediata |
Planta baja
| Tamaño |
| 14.945 m² |
| Duración |
| Negociable |
|
Precio
|
| 49,20 € /m²/año EXCL 4,10 € /m²/mes EXCL 735.289 € /año EXCL 61.274 € /mes EXCL |
| Uso |
| Nave |
| Acondicionamiento |
| - |
| Disponible |
| Inmediata |
Planta baja
| Tamaño | 14.945 m² |
| Duración | Negociable |
|
Precio
|
61.274 € /mes EXCL |
| Uso | Nave |
| Acondicionamiento | - |
| Disponible | Inmediata |
Ref. MAD-IND-01629 San Agustín DC1 es una plataforma logística de última generación diseñada para satisfacer las necesidades operativas de empresas del sector logístico, distribución o comercio electrónico, esta nave ofrece una solución flexible y eficiente. Cuenta con una superficie total de 14.945 m2 con 14.500 m2 de almacén y 445 m2 de oficinas. Las características técnicas son las siguientes: - Estructura de pórticos paralelos de hormigón prefabricado. - Cubierta tipo sándwich con aislamiento y ventilación natural. - Protección contra incendios completa: ESFR, red de BIEs, hidratantes exteriores, extintores. - 19 muelles de carga con puertas seccionales y abrigos. - Solera de hormigón de 20 cm con resistencia a cargas puntuales de 8 Tn. - Altura libre: 12 m. - Vallado perimetral y CCTV. El entorno inmediato está consolidado como una zona logística de referencia, con presencia de empresas líderes del sector del transporte, distribución, alimentación y retail. La zona ofrece excelentes comunicaciones tanto por carretera como por proximidad a centros urbanos. Además, San Agustín de Guadalix es un municipio con fuerte desarrollo industrial, baja densidad de tráfico pesado en comparación con otros ejes y una administración local favorable al desarrollo empresarial. Ubicada estratégicamente en el corazón del corredor logístico norte de Madrid, esta nave industrial forma parte del reconocido Pologis Park San Agustín, uno de los enclaves logísticos de referencia en la Comunidad de Madrid. Se sitúa en el Polígono Industrial Sur de San Agustín de Guadalix, con acceso directo desde la Calle La Lobera, gozando de excelentes comunicaciones tanto por carretera (A-1, M-50, M-40) como por proximidad a núcleos urbanos e infraestructuras clave.
- El precio no incluye gastos de comunidad e impuestos
- Aire acondicionado central
- Oficinas divididas
- Baños privados
- Sistema de seguridad
- Monitorización con circuito cerrado de televisión (CCTV)
- Luz natural
- Patio
- Plataforma logística de última generación.
- 19 muelles de carga.
- Ideal para logística de cualquier sector.
- Excelentes comunicaciones por A-1, M-50 y M-40.
Descripción general del inmueble
San Agustín DC1 es una plataforma logística de última generación diseñada para satisfacer las necesidades operativas de empresas del sector logístico, distribución o comercio electrónico, esta nave ofrece una solución flexible y eficiente. Cuenta con una superficie total de 14.945 m2 con 14.500 m2 de almacén y 445 m2 de oficinas. Las características técnicas son las siguientes: Estructura de pórticos paralelos de hormigón prefabricado. Cubierta tipo sándwich con aislamiento y ventilación natural. Protección contra incendios completa: ESFR, red de BIEs, hidratantes exteriores, extintores. 19 muelles de carga con puertas seccionales y abrigos. Solera de hormigón de 20 cm con resistencia a cargas puntuales de 8 Tn. Altura libre: 12 m. Vallado perimetral y CCTV. El entorno inmediato está consolidado como una zona logística de referencia, con presencia de empresas líderes del sector del transporte, distribución, alimentación y retail. La zona ofrece excelentes comunicaciones tanto por carretera como por proximidad a centros urbanos. Además, San Agustín de Guadalix es un municipio con fuerte desarrollo industrial, baja densidad de tráfico pesado en comparación con otros ejes y una administración local favorable al desarrollo empresarial. Ubicada estratégicamente en el corazón del corredor logístico norte de Madrid, esta nave industrial forma parte del reconocido Pologis Park San Agustín, uno de los enclaves logísticos de referencia en la Comunidad de Madrid. Se sitúa en el Polígono Industrial Sur de San Agustín de Guadalix, con acceso directo desde la Calle La Lobera, gozando de excelentes comunicaciones tanto por carretera (A-1, M-50, M-40) como por proximidad a núcleos urbanos e infraestructuras clave.
Información del edificio: nave logística
Elaborado por
Empresa no proporcionada
DC1 | Carretera Nacional 1, 25
Parece que se ha producido un error al enviar tu mensaje. Vuelve a intentarlo.
Gracias. Se ha enviado tu mensaje.
