Tu correo electrónico ha sido enviado.

Aspectos destacados
- Edificio residencial en zona consolidada.
- Frente a la Ronda Sur.
- Todo tipo de servicios y comercios implantados.
- Bien comunicado mediante transporte público.
Espacio disponibles(1)
Mostrar el precio como
- Espacio
- Tamaño
- Duración
-
Precio
- Uso
- Acondicionamiento
- Disponible
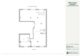
Estupenda oficina disponible en alquiler ubicada en un emblemático edificio residencial ubicado en una zona con todo tipo de servicios y comercios implantados. Cuenta con una superficie de 388 m2 distribuido en dos alturas. El interior goza de mucha luminosidad gracias a sus numerosos ventanales. La planta baja Dispone de una amplia zona diáfana, un baño y el acceso a la planta superior que dispone de una zona totalmente diáfana. Excelentes comunicaciones tanto por carretera, gracias a su cercanía con la Ronda Sur, como mediante transporte público.
- El precio no incluye gastos de comunidad
- Construido totalmente como Oficina estándar
- Con capacidad para 11-33 personas
- Espacio en excelentes condiciones
- Techos altos
- Espacio diáfano
- Espacio distribuido en varias alturas.
- Magníficas comunicaciones.
- El precio incluye impuestos
- Plano de planta en su mayoría abierta
- Techos acabados: 2,20 metros-3,95 metros
- Baños privados
- Luz natural
- Oficina con mucha luminosidad interior.
- En zona consolidada.
| Espacio | Tamaño | Duración | Precio | Uso | Acondicionamiento | Disponible |
| Planta baja, módulo 1 | 388 m² | Negociable | 80,45 € /m²/año + Cargos 6,70 € /m²/mes + Cargos 31.213 € /año + Cargos 2.601 € /mes + Cargos | Oficina | Construcción total | Inmediata |
Planta baja, módulo 1
| Tamaño |
| 388 m² |
| Duración |
| Negociable |
|
Precio
|
| 80,45 € /m²/año + Cargos 6,70 € /m²/mes + Cargos 31.213 € /año + Cargos 2.601 € /mes + Cargos |
| Uso |
| Oficina |
| Acondicionamiento |
| Construcción total |
| Disponible |
| Inmediata |
Planta baja, módulo 1
| Tamaño | 388 m² |
| Duración | Negociable |
|
Precio
|
2.601 € /mes + Cargos |
| Uso | Oficina |
| Acondicionamiento | Construcción total |
| Disponible | Inmediata |
Estupenda oficina disponible en alquiler ubicada en un emblemático edificio residencial ubicado en una zona con todo tipo de servicios y comercios implantados. Cuenta con una superficie de 388 m2 distribuido en dos alturas. El interior goza de mucha luminosidad gracias a sus numerosos ventanales. La planta baja Dispone de una amplia zona diáfana, un baño y el acceso a la planta superior que dispone de una zona totalmente diáfana. Excelentes comunicaciones tanto por carretera, gracias a su cercanía con la Ronda Sur, como mediante transporte público.
- El precio no incluye gastos de comunidad
- El precio incluye impuestos
- Construido totalmente como Oficina estándar
- Plano de planta en su mayoría abierta
- Con capacidad para 11-33 personas
- Techos acabados: 2,20 metros-3,95 metros
- Espacio en excelentes condiciones
- Baños privados
- Techos altos
- Luz natural
- Espacio diáfano
- Oficina con mucha luminosidad interior.
- Espacio distribuido en varias alturas.
- En zona consolidada.
- Magníficas comunicaciones.
Descripción del inmueble
Edificio residencial que cuenta con una superficie de 3.354 m2 distribuidos en 6 plantas sobre rasante. En una zona dinámica y con alta actividad comercial.
Información del edificio
| Espacio total disponible | 388 m² | Estilo del apartamento | Edificios de mediana altura |
| N.º de unidades | 20 | Tamaño del edificio | 3.354 m² |
| Tipo de inmueble | Edificio residencial | Año de construcción | 1948 |
| Subtipo de inmueble | Apartamento |
| Espacio total disponible | 388 m² |
| N.º de unidades | 20 |
| Tipo de inmueble | Edificio residencial |
| Subtipo de inmueble | Apartamento |
| Estilo del apartamento | Edificios de mediana altura |
| Tamaño del edificio | 3.354 m² |
| Año de construcción | 1948 |
Elaborado por
Calle Arzobispo Guisasola, 38
Parece que se ha producido un error al enviar tu mensaje. Vuelve a intentarlo.
Gracias. Se ha enviado tu mensaje.



