Iniciar sesión/Registrarse
Tu correo electrónico ha sido enviado.



Aspectos destacados
- Suelo urbano residencial entre medianeras.
- Ubicación céntrica.
- Posibilidad de construir 4 viviendas y local o 5 viviendas.
- Buenas comunicaciones.
Resumen ejecutivo
Terreno situado delante del mercado de la Salut de Badalona, entre medianeras, listo para empezar a construir.
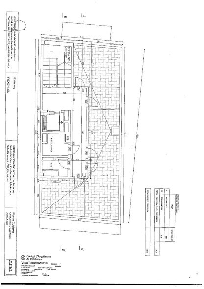
Pueden construirse 4 viviendas más local. Podría construirse una quinta vivienda en planta baja adaptándola a la normativa.
Los pisos son aproximadamente de 70 m2 cada uno.
Se entrega proyecto básico, proyecto ejecutivo, estudio geotécnico y proyecto de energía solar realizado en 2007, por lo que deberá revisarse con la normativa actual.
Pueden construirse 4 viviendas más local. Podría construirse una quinta vivienda en planta baja adaptándola a la normativa.
Los pisos son aproximadamente de 70 m2 cada uno.
Se entrega proyecto básico, proyecto ejecutivo, estudio geotécnico y proyecto de energía solar realizado en 2007, por lo que deberá revisarse con la normativa actual.
Información del edificio
| Precio | 219.000 € | Tipo de inmueble | Terreno |
| Tipo de venta | Inversión | Subtipo de inmueble | Residencial |
| N.º de terrenos | 1 | Tamaño total del terreno | 0,01 ha |
| Precio | 219.000 € |
| Tipo de venta | Inversión |
| N.º de terrenos | 1 |
| Tipo de inmueble | Terreno |
| Subtipo de inmueble | Residencial |
| Tamaño total del terreno | 0,01 ha |
1 Terreno disponible
Terreno
| Precio | 219.000 € | Tamaño del terreno | 0,01 ha |
| Precio por ha | 25.762.200,60 € |
| Precio | 219.000 € |
| Precio por ha | 25.762.200,60 € |
| Tamaño del terreno | 0,01 ha |
Suelo urbano rectangular situado entre medianeras.
Descripción
Suelo urbano con uso residencial, situado en zona céntrica y consolidada con todo tipo de servicios.
1 1
1 de 5
Vídeos
Matterport tour exterior en 3D
Matterport tour en 3D
Fotos
Street view
Calle
Mapa
1 de 1
Elaborado por
La Salut - Lloreda
¿Tienes cuenta con nosotros? Iniciar sesión
Parece que se ha producido un error al enviar tu mensaje. Vuelve a intentarlo.
Gracias. Se ha enviado tu mensaje.
