Iniciar sesión/Registrarse
Tu correo electrónico ha sido enviado.



ASPECTOS DESTACADOS
- Suelo urbano con uso residencial.
- Múltiples posibilidades.
- Situado entre medianeras en zona consolidada.
- Alto tránsito diario.
RESUMEN EJECUTIVO
Suelo urbano con uso residencial y ubicación céntrica en zona consolidada.
Se encuentra entre medianeras y listo para construir.
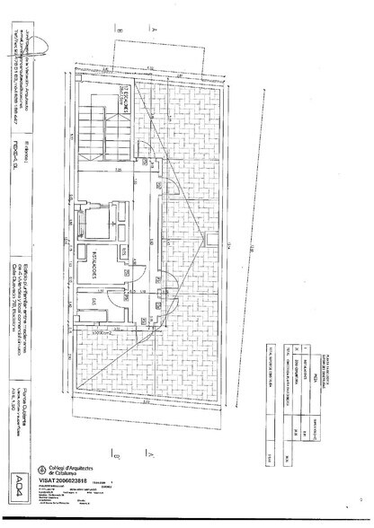
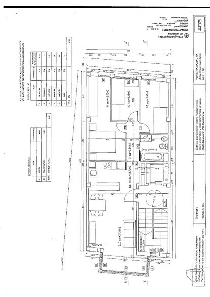
Permite la construcción de 4 pisos más local, con dimensión de 70 m2 cada piso.
Se entrega proyecto básico, proyecto ejecutivo, estudio geotécnico y proyecto energía solar. Todo ello se realizó en el año 2007, por lo que deberá revisarse y actualizar la normativa actual.
Se encuentra entre medianeras y listo para construir.
Permite la construcción de 4 pisos más local, con dimensión de 70 m2 cada piso.
Se entrega proyecto básico, proyecto ejecutivo, estudio geotécnico y proyecto energía solar. Todo ello se realizó en el año 2007, por lo que deberá revisarse y actualizar la normativa actual.
INFORMACIÓN DEL EDIFICIO
| Precio | 250.000 € | Tipo de inmueble | Terreno |
| Tipo de venta | Inversión o usuario propietario | Subtipo de inmueble | Residencial |
| N.º de terrenos | 1 | Tamaño total del terreno | 0,01 ha |
| Precio | 250.000 € |
| Tipo de venta | Inversión o usuario propietario |
| N.º de terrenos | 1 |
| Tipo de inmueble | Terreno |
| Subtipo de inmueble | Residencial |
| Tamaño total del terreno | 0,01 ha |
1 TERRENO DISPONIBLE
Terreno
| Precio | 250.000 € | Tamaño del terreno | 0,01 ha |
| Precio por ha | 29.408.904,79 € |
| Precio | 250.000 € |
| Precio por ha | 29.408.904,79 € |
| Tamaño del terreno | 0,01 ha |
Suelo urbano de 85 m2 con posibilidad de construir 5 plantas sobre rasante.
DESCRIPCIÓN
Suelo urbano situado entre medianeras, con posibilidad de construir 5 plantas sobre rasante.
1 1
1 de 4
VÍDEOS
MATTERPORT TOUR EXTERIOR EN 3D
MATTERPORT TOUR EN 3D
FOTOS
STREET VIEW
CALLE
MAPA
1 de 1
Elaborado por
La Salut - Lloreda
¿Tienes cuenta con nosotros? Iniciar sesión
Parece que se ha producido un error al enviar tu mensaje. Vuelve a intentarlo.
Gracias. Se ha enviado tu mensaje.
