Iniciar sesión/Registrarse
Tu correo electrónico ha sido enviado.



Parte de la información se ha traducido automáticamente.
ASPECTOS DESTACADOS
- High exposure to 156 Street
- 26,460 SF total building area
- Fully paved site
- Fully fenced site
RESUMEN EJECUTIVO
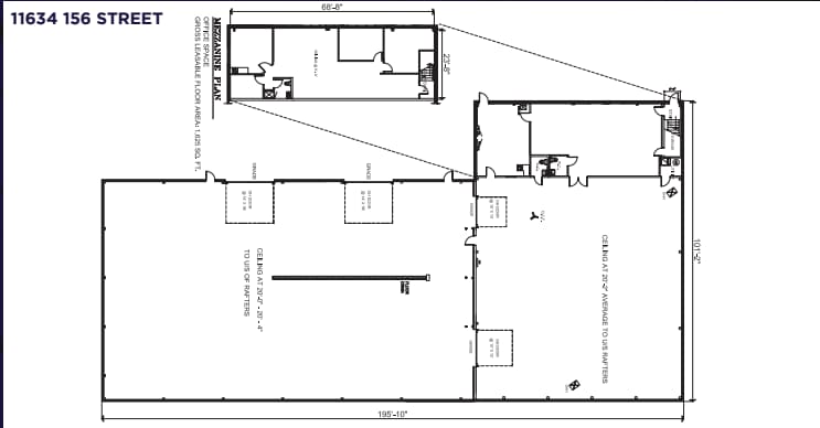
The AWG Industrial Facility, located at 11634 and 11638 156 Street in Edmonton, Alberta, is now offered for sale at $5,200,000. This high-exposure, fully paved and fenced 1.5-acre site features two industrial buildings totaling 26,460 SF. The west building at 11634, constructed between 1990 and 2004, offers 18,160 SF of gross area with a clear ceiling height of approximately 20 feet, two grade-level doors, and a large, improved office space with mezzanine. The east building at 11638, built in 1989, features 8,300 SF of ground area, a clear span shop, drive-thru loading with eight grade-level doors, and ceiling heights of approximately 15 feet. Both buildings have 400-amp power and are heated with radiant tube and overhead gas-fired units. Zoned IM (Medium Industrial), the property offers excellent operational efficiency, office and shop lunchrooms, and second-floor office space. This offering presents an outstanding opportunity for owner-users or investors seeking a well-located industrial asset in Edmonton's thriving west-end industrial node. 2024 property taxes are $97,053.41.
INFORMACIÓN DEL EDIFICIO
| Precio | 3.212.919 € | Número de inmuebles | 2 |
| Precio/m² | 1.307 € / m² | A la venta individualmente | 0 |
| Tipo de venta | Inversión o usuario propietario | Tamaño total del edificio | 2.458 m² |
| Estado | Activo | Superficie total del terreno | 1,23 ha |
| Precio | 3.212.919 € |
| Precio/m² | 1.307 € / m² |
| Tipo de venta | Inversión o usuario propietario |
| Estado | Activo |
| Número de inmuebles | 2 |
| A la venta individualmente | 0 |
| Tamaño total del edificio | 2.458 m² |
| Superficie total del terreno | 1,23 ha |
INMUEBLES
| NOMBRE DEL INMUEBLE/DIRECCIÓN | TIPO DE INMUEBLE | Tamaño | AÑO DE CONSTRUCCIÓN | PRECIO INDIVIDUAL |
|---|---|---|---|---|
| 11634 156 St NW, Edmonton, AB T5M 3T5 | Nave | 1.687 m² | 1990 | - |
| 11638 156th St NW, Edmonton, AB T5V 3T5 | Nave | 771 m² | 1989 | - |
1 de 7
VÍDEOS
MATTERPORT TOUR EXTERIOR EN 3D
MATTERPORT TOUR EN 3D
FOTOS
STREET VIEW
CALLE
MAPA
Elaborado por
AWG Industrial Facility
¿Tienes cuenta con nosotros? Iniciar sesión
Parece que se ha producido un error al enviar tu mensaje. Vuelve a intentarlo.
Gracias. Se ha enviado tu mensaje.

