Tu correo electrónico ha sido enviado.



Aspectos destacados
- Localizado en una esquina, lo que expone la propiedad a un alto tráfico peatonal, generando visibilidad para el negocio.
- Cercano a la autopista E-5, a la carretera M-11 y bien comunicado mediante transporte público.
Resumen ejecutivo
Edificio de oficinas de 21.192 m², construido en 1993 a lo largo de la Avenida del Partenón, en Madrid. Su ubicación en el corazón de Campo de las Naciones lo convierte en un inmueble moderno y representativo, ideal para empresas. Además, ofrece excelentes comunicaciones frente a IFEMA y junto a la estación de metro, en una zona empresarial consolidada.
1 Unidad disponible
| Tamaño | 383 m² | Uso | Oficina |
| Precio | 2.000.000 € | Tipo de venta | Inversión o usuario propietario |
| Precio por m² | 5.222,66 € |
| Tamaño | 383 m² |
| Precio | 2.000.000 € |
| Precio por m² | 5.222,66 € |
| Uso | Oficina |
| Tipo de venta | Inversión o usuario propietario |
Descripción
Oficina exterior de 383 m² distribuida en despachos y una zona diáfana.
Notas de venta
Gran oportunidad de adquirir una oficina exterior de 383?m², distribuida en despachos y una zona diáfana que permite una configuración flexible del espacio. El inmueble dispone de suelo técnico y falso techo metálico con luminarias LED empotradas, lo que garantiza funcionalidad y eficiencia energética. Su localización en el corazón de Campo de las Naciones lo convierte en un activo moderno y representativo, ideal para empresas que buscan visibilidad y prestigio.
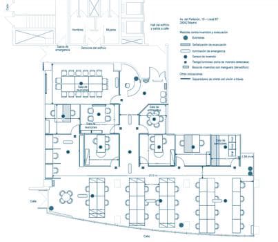
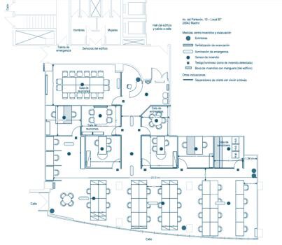
Plano de la oficina
Interior
Interior
Interior
Interior
Interior
Información del edificio
| Tamaño total del edificio | 21.192 m² | Tamaño de planta tipo | 3.531 m² |
| Tipo de inmueble | Oficina (Edificio multipropietario) | Año de construcción | 1993 |
| Clase de edificio | B | Tamaño del terreno | 0,53 ha |
| Plantas | 6 | Ratio de parking | 0,13/1.000 m² |
| Tamaño total del edificio | 21.192 m² |
| Tipo de inmueble | Oficina (Edificio multipropietario) |
| Clase de edificio | B |
| Plantas | 6 |
| Tamaño de planta tipo | 3.531 m² |
| Año de construcción | 1993 |
| Tamaño del terreno | 0,53 ha |
| Ratio de parking | 0,13/1.000 m² |
Características del edificio
- Sistema de seguridad
- Aire acondicionado
Elaborado por
Avenida del Partenón, 8-10
Parece que se ha producido un error al enviar tu mensaje. Vuelve a intentarlo.
Gracias. Se ha enviado tu mensaje.

