Tu correo electrónico ha sido enviado.



INFORMACIÓN DEL EDIFICIO
ACERCA ANGLÈS, GER 17160
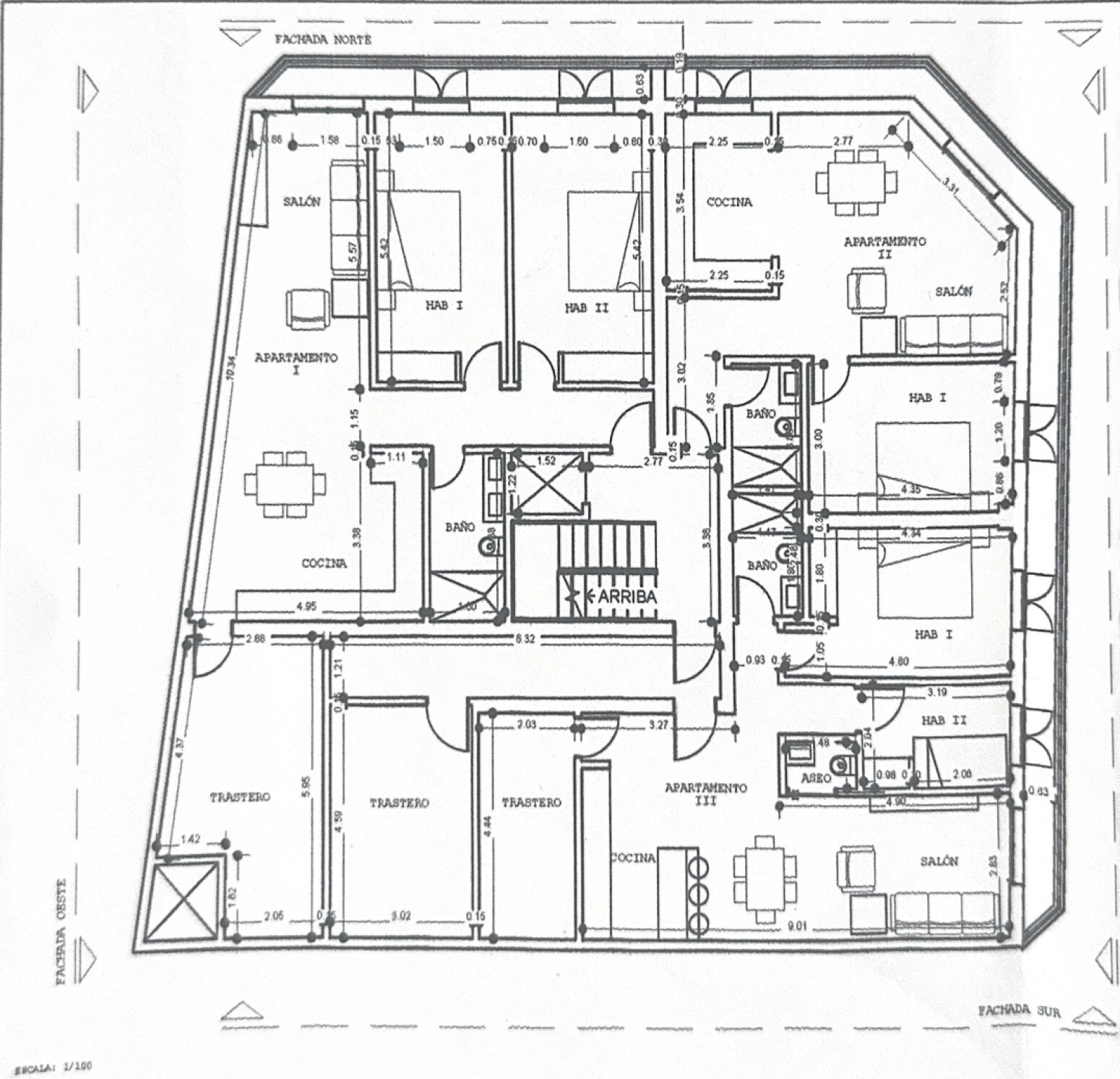
ANGV01- Angles, local; Se presentan a la venta dos locales comerciales en primera planta ubicados en Anglès (Girona), con una superficie total de 314.92 m² construidos + 299 m² útiles. La propiedad se encuentra en esquina, lo que le proporciona gran luminosidad y visibilidad, dentro de un edificio con ascensor y solo un vecino, garantizando comodidad y privacidad. Ambos locales han tenido un preproyecto aprobado por el Ayuntamiento para realizar el cambio de uso a vivienda, permitiendo desarrollar hasta tres apartamentos y un estudio. Esta característica convierte a la propiedad en una excelente oportunidad de inversión para promotores o particulares interesados en proyectos residenciales con alta rentabilidad. Además, la distribución y ubicación de los locales permiten múltiples usos alternativos, incluyendo oficinas, coworking, escuelas, gimnasios, estudios profesionales o cualquier proyecto comercial que requiera espacios amplios y bien comunicados. Ubicados en una zona céntrica de Anglès, con fácil acceso y buena conexión con Girona, estos locales representan una inversión versátil y segura, ofreciendo flexibilidad de desarrollo y gran potencial de revalorización. Local en desuso actualmente, no tiene certificado energético. Contacto profesional: Para obtener información detallada o concertar una visita, por favor comuníquese con nosotros. Esta es una oportunidad única para adquirir un inmueble con múltiples posibilidades en un entorno con alto potencial de crecimiento.
Elaborado por
"Anglès, Gerona 17160"
Parece que se ha producido un error al enviar tu mensaje. Vuelve a intentarlo.
Gracias. Se ha enviado tu mensaje.
