Tu correo electrónico ha sido enviado.
Aspectos destacados
- Edificio residencial con locales comerciales en planta baja, ubicado en una zona consolidada de Alhaurín el Grande.
- Construcción de 1955, de dos plantas, con buenas comunicaciones mediante transporte público.
Resumen ejecutivo
Edificio residencial con locales comerciales en planta baja, ubicado en Alhaurín el Grande (Málaga), en la calle San Sebastián. Construido en 1955, consta de dos plantas y dispone de buenas comunicaciones mediante transporte público.
1 Unidad disponible
Unidad -
| Tamaño | 329 m² | Uso | Local |
| Precio | 489.800 € | Tipo de venta | Inversión o usuario propietario |
| Precio por m² | 1.488,89 € |
| Tamaño | 329 m² |
| Precio | 489.800 € |
| Precio por m² | 1.488,89 € |
| Uso | Local |
| Tipo de venta | Inversión o usuario propietario |
Descripción
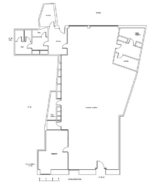
Local en Alhaurín el Grande (Málaga), calle San Sebastián, con una superficie de 329 m2 y amplias posibilidades de implantación.
Notas de venta
Ref: 0102XX
Local situado en la provincia de Málaga, en el municipio de Alhaurín el Grande, en la calle San Sebastián. Dispone de una amplia superficie de 329 m2, ofreciendo múltiples posibilidades de implantación y adaptación a distintos usos. Buena visibilidad comercial.
Foto interior
Foto interior
Foto interior
Foto interior
Foto interior
Plano Alquilujo Internacional
Información del edificio
Características del edificio
Características del espacio
- Transporte público
Elaborado por
Calle San Sebastian
Parece que se ha producido un error al enviar tu mensaje. Vuelve a intentarlo.
Gracias. Se ha enviado tu mensaje.
