Iniciar sesión/Registrarse
Tu correo electrónico ha sido enviado.



Parte de la información se ha traducido automáticamente.
Aspectos destacados
- Property has immediate access to Martin Place, Barangaroo and the city's core financial and legal precincts.
- Surrounded by premium dining, retail, and lifestyle amenities in Sydney’s core business district
- Prime CBD location between Wynyard and Town Hall stations for superior connectivity
Resumen ejecutivo
50 York Street is widely regarded as one of Sydney’s most distinguished heritage office buildings. Originally constructed circa 1885, the six-storey converted warehouse features a painted stucco façade in the Victorian Free Classical style, delivering a strong street presence. The building is further enhanced by an impressive main lobby, highlighted by soaring ceilings and elegant decorative detailing.
1 Unidad disponible
- Unidad
- Tamaño
- Uso
- Precio
- Ingresos netos de explotación
| Tipo de venta | Inversión |
| Tipo de venta | Inversión |
Descripción
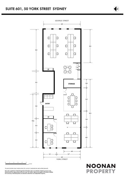
Suite 601 is a penthouse office that combines classic heritage character with high-quality contemporary finishes. The suite enjoys an elevated outlook and excellent natural light from expansive east- and west-facing window frontages. Comprising 233 sqm of internal office accommodation, the space is enhanced by high ceilings, exposed brickwork, and extensive glass partitioning, creating a refined yet functional workplace environment. Prominent lift lobby exposure provides a strong sense of arrival and exclusivity.
Notas de venta
Suite 601 at 50 York Street offers a rare opportunity to secure a premium penthouse office within one of Sydney’s most iconic heritage buildings. This strata-titled property combines Victorian Free Classical architecture with a sophisticated modern fitout, creating an exceptional workplace environment in the heart of the CBD.
Positioned between Wynyard and Town Hall stations, the property provides outstanding connectivity to Sydney’s financial core, Barangaroo, and Martin Place. The surrounding precinct is home to leading corporates, professional services, and global occupiers, reinforcing the long-term investment appeal of this address.
The 233 m² suite features a high-quality layout including a welcoming reception, an impressive boardroom with integrated AV, multiple executive offices, and generous open-plan work areas. Design elements such as exposed brickwork, high ceilings, extensive glass partitioning, and dual east-west window frontages ensure abundant natural light throughout. Additional amenities include breakout zones, an internal kitchen, air conditioning, and access to recently upgraded communal bathrooms and showers.
Ownership costs are clearly defined, with council rates of $1,326 per quarter, water rates of $160 per quarter, and strata fees of $10,879 per quarter, reflecting the premium nature of this asset and its meticulously maintained common areas.
50 York Street is celebrated for its striking façade and grand lobby with ultra-high ceilings and decorative finishes. Originally constructed in the late 19th century, the building has been carefully preserved, offering a unique blend of heritage character and modern functionality. With its prime location, premium fitout, and strong surrounding amenity, this property is ideally suited for owner-occupiers or investors seeking a blue-chip CBD asset with enduring value.
Positioned between Wynyard and Town Hall stations, the property provides outstanding connectivity to Sydney’s financial core, Barangaroo, and Martin Place. The surrounding precinct is home to leading corporates, professional services, and global occupiers, reinforcing the long-term investment appeal of this address.
The 233 m² suite features a high-quality layout including a welcoming reception, an impressive boardroom with integrated AV, multiple executive offices, and generous open-plan work areas. Design elements such as exposed brickwork, high ceilings, extensive glass partitioning, and dual east-west window frontages ensure abundant natural light throughout. Additional amenities include breakout zones, an internal kitchen, air conditioning, and access to recently upgraded communal bathrooms and showers.
Ownership costs are clearly defined, with council rates of $1,326 per quarter, water rates of $160 per quarter, and strata fees of $10,879 per quarter, reflecting the premium nature of this asset and its meticulously maintained common areas.
50 York Street is celebrated for its striking façade and grand lobby with ultra-high ceilings and decorative finishes. Originally constructed in the late 19th century, the building has been carefully preserved, offering a unique blend of heritage character and modern functionality. With its prime location, premium fitout, and strong surrounding amenity, this property is ideally suited for owner-occupiers or investors seeking a blue-chip CBD asset with enduring value.
| Unidad | Tamaño | Uso | Precio | Ingresos netos de explotación |
| Unidad 601 | 233 m² | Oficina | 1.656.940 € (7.114,14 €/m²) | - |
Unidad 601
| Tamaño |
| 233 m² |
| Uso |
| Oficina |
| Precio |
| 1.656.940 € (7.114,14 €/m²) |
| Ingresos netos de explotación |
| - |
1 de 10
Vídeos
Matterport tour exterior en 3D
Matterport tour en 3D
Fotos
Street view
Calle
Mapa
Unidad 601
| Tamaño | 233 m² |
| Uso | Oficina |
| Precio | 1.656.940 € (7.114,14 €/m²) |
| Ingresos netos de explotación | - |
| Tipo de venta | Inversión |
| Descripción | |
| Suite 601 is a penthouse office that combines classic heritage character with high-quality contemporary finishes. The suite enjoys an elevated outlook and excellent natural light from expansive east- and west-facing window frontages. Comprising 233 sqm of internal office accommodation, the space is enhanced by high ceilings, exposed brickwork, and extensive glass partitioning, creating a refined yet functional workplace environment. Prominent lift lobby exposure provides a strong sense of arrival and exclusivity.</li></ul> | |
| Notas de venta | |
| Suite 601 at 50 York Street offers a rare opportunity to secure a premium penthouse office within one of Sydney’s most iconic heritage buildings. This strata-titled property combines Victorian Free Classical architecture with a sophisticated modern fitout, creating an exceptional workplace environment in the heart of the CBD.<br> <br> Positioned between Wynyard and Town Hall stations, the property provides outstanding connectivity to Sydney’s financial core, Barangaroo, and Martin Place. The surrounding precinct is home to leading corporates, professional services, and global occupiers, reinforcing the long-term investment appeal of this address.<br> <br> The 233 m² suite features a high-quality layout including a welcoming reception, an impressive boardroom with integrated AV, multiple executive offices, and generous open-plan work areas. Design elements such as exposed brickwork, high ceilings, extensive glass partitioning, and dual east-west window frontages ensure abundant natural light throughout. Additional amenities include breakout zones, an internal kitchen, air conditioning, and access to recently upgraded communal bathrooms and showers.<br> <br> Ownership costs are clearly defined, with council rates of $1,326 per quarter, water rates of $160 per quarter, and strata fees of $10,879 per quarter, reflecting the premium nature of this asset and its meticulously maintained common areas.<br> <br> 50 York Street is celebrated for its striking façade and grand lobby with ultra-high ceilings and decorative finishes. Originally constructed in the late 19th century, the building has been carefully preserved, offering a unique blend of heritage character and modern functionality. With its prime location, premium fitout, and strong surrounding amenity, this property is ideally suited for owner-occupiers or investors seeking a blue-chip CBD asset with enduring value.</li></ul> |
Información del edificio
Los siguientes datos sobre la propiedad se aplican a todo el edificio. Los detalles correspondientes a las unidades de condominio individuales pueden variar y se enumeran en la información de las unidades que figura más arriba.
| Tamaño total del edificio | 3.256 m² | Plantas | 7 |
| Tipo de inmueble | Oficina (Edificio multipropietario) | Tamaño de planta tipo | 465 m² |
| Clase de edificio | C | Tamaño del terreno | 0,05 ha |
| Tamaño total del edificio | 3.256 m² |
| Tipo de inmueble | Oficina (Edificio multipropietario) |
| Clase de edificio | C |
| Plantas | 7 |
| Tamaño de planta tipo | 465 m² |
| Tamaño del terreno | 0,05 ha |
1 1
1 de 5
Vídeos
Matterport tour exterior en 3D
Matterport tour en 3D
Fotos
Street view
Calle
Mapa
1 de 1
Elaborado por
50 York St
¿Tienes cuenta con nosotros? Iniciar sesión
Parece que se ha producido un error al enviar tu mensaje. Vuelve a intentarlo.
Gracias. Se ha enviado tu mensaje.


