Iniciar sesión/Registrarse
Tu correo electrónico ha sido enviado.



Parte de la información se ha traducido automáticamente.
Aspectos destacados
- Prime Zetland location surrounded by high-density residential and commercial developments.
- Modern, well-maintained interior with flexible fit-out options.
- Excellent accessibility with nearby public transport and ample local amenities.
Resumen ejecutivo
Positioned within the heart of a vibrant residential and commercial environment, the shop benefits from continuous foot traffic and easy connection to local amenities. The location is supported by strong public transport links and is surrounded by cafés, supermarkets, and community facilities, offering convenience for both customers and staff. The property also includes one secure car space and a storage cage, adding to its practicality for day-to-day operations.
1 Unidad disponible
- Unidad
- Tamaño
- Uso
- Precio
- Ingresos netos de explotación
| Tipo de venta | Inversión | Referencia catastral/ID de terreno | CP/SP92073 |
| Tipo de venta | Inversión |
| Referencia catastral/ID de terreno | CP/SP92073 |
Descripción
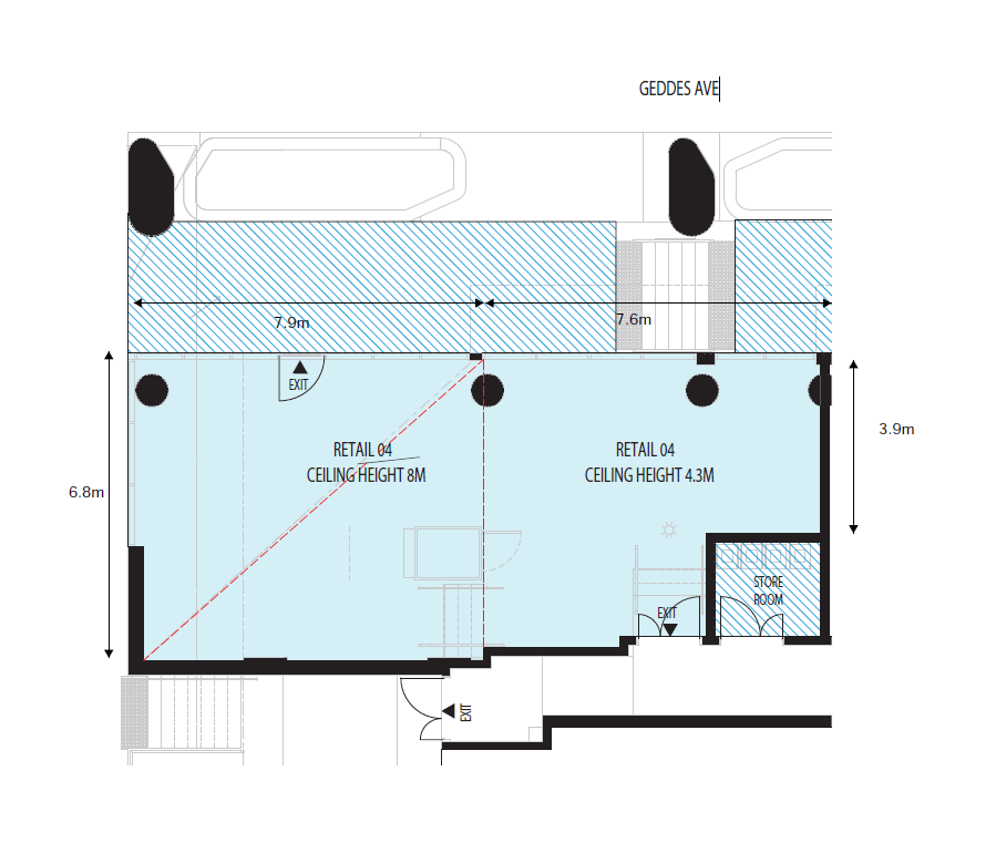
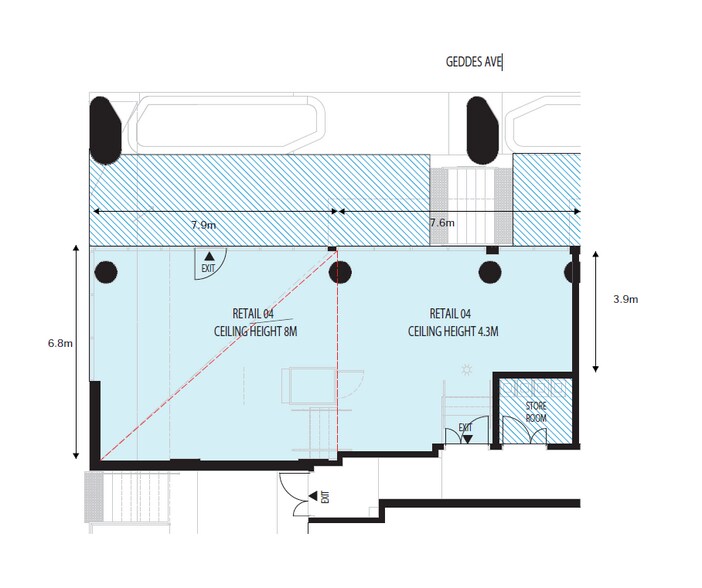
The property boasts an impressive 8-meter ceiling height and a wide shop front, providing exceptional visibility and a sense of spaciousness that allows for creative fit-outs and vertical displays. The modern interior is well-maintained and move-in ready, while still offering flexibility for customization to suit your business needs. Internal Space: 94 sqm of versatile floor space and External Area: 32 sqm of additional outdoor space.
Notas de venta
This premium retail property in the heart of Zetland offers a rare opportunity to secure a high-exposure space in one of Sydney’s most dynamic urban precincts. Featuring approximately 94 m² of internal space and an additional 32 m² of external area, this property is ideal for a wide range of businesses, including boutique retail, beauty salons, specialty stores, wellness centers, or service-based operations.
Additional conveniences include one dedicated car space, a secure storage cage, and proximity to public transport, ensuring easy access for both staff and customers. Surrounded by thriving residential and commercial developments, this location guarantees strong foot traffic and a diverse customer base. With its strategic positioning, generous floor area, and contemporary features, this property represents an outstanding opportunity for owner-occupiers or investors seeking long-term value in a high-demand market.
Additional conveniences include one dedicated car space, a secure storage cage, and proximity to public transport, ensuring easy access for both staff and customers. Surrounded by thriving residential and commercial developments, this location guarantees strong foot traffic and a diverse customer base. With its strategic positioning, generous floor area, and contemporary features, this property represents an outstanding opportunity for owner-occupiers or investors seeking long-term value in a high-demand market.
| Unidad | Tamaño | Uso | Precio | Ingresos netos de explotación |
| Unidad 4 | 94 m² | Local | Bajo solicitud | - |
Unidad 4
| Tamaño |
| 94 m² |
| Uso |
| Local |
| Precio |
| Bajo solicitud |
| Ingresos netos de explotación |
| - |
1 de 1
Vídeos
Matterport tour exterior en 3D
Matterport tour en 3D
Fotos
Street view
Calle
Mapa
Unidad 4
| Tamaño | 94 m² |
| Uso | Local |
| Precio | Bajo solicitud |
| Ingresos netos de explotación | - |
| Tipo de venta | Inversión |
| Referencia catastral/ID de terreno | CP/SP92073 |
| Descripción | |
| The property boasts an impressive 8-meter ceiling height and a wide shop front, providing exceptional visibility and a sense of spaciousness that allows for creative fit-outs and vertical displays. The modern interior is well-maintained and move-in ready, while still offering flexibility for customization to suit your business needs. Internal Space: 94 sqm of versatile floor space and External Area: 32 sqm of additional outdoor space.</li></ul> | |
| Notas de venta | |
| This premium retail property in the heart of Zetland offers a rare opportunity to secure a high-exposure space in one of Sydney’s most dynamic urban precincts. Featuring approximately 94 m² of internal space and an additional 32 m² of external area, this property is ideal for a wide range of businesses, including boutique retail, beauty salons, specialty stores, wellness centers, or service-based operations.<br> <br> Additional conveniences include one dedicated car space, a secure storage cage, and proximity to public transport, ensuring easy access for both staff and customers. Surrounded by thriving residential and commercial developments, this location guarantees strong foot traffic and a diverse customer base. With its strategic positioning, generous floor area, and contemporary features, this property represents an outstanding opportunity for owner-occupiers or investors seeking long-term value in a high-demand market.</li></ul> |
Información del edificio
Los siguientes datos sobre la propiedad se aplican a todo el edificio. Los detalles correspondientes a las unidades de condominio individuales pueden variar y se enumeran en la información de las unidades que figura más arriba.
| Tamaño total del edificio | 1.302 m² | Clase de edificio | B |
| Tipo de inmueble | Edificio residencial (Edificio multipropietario) | Plantas | 14 |
| Subtipo de inmueble | Apartamento | Tamaño de planta tipo | 93 m² |
| Tamaño total del edificio | 1.302 m² |
| Tipo de inmueble | Edificio residencial (Edificio multipropietario) |
| Subtipo de inmueble | Apartamento |
| Clase de edificio | B |
| Plantas | 14 |
| Tamaño de planta tipo | 93 m² |
1 1
1 de 4
Vídeos
Matterport tour exterior en 3D
Matterport tour en 3D
Fotos
Street view
Calle
Mapa
1 de 1
Elaborado por
499 Botany Rd - ALBA
¿Tienes cuenta con nosotros? Iniciar sesión
Parece que se ha producido un error al enviar tu mensaje. Vuelve a intentarlo.
Gracias. Se ha enviado tu mensaje.

