Tu correo electrónico ha sido enviado.


Parte de la información se ha traducido automáticamente.
Aspectos destacados
- Aparcamiento en la parte trasera
- Combinación de oficinas móviles y de planta abierta
- Dirección principal del West End
Resumen ejecutivo
Información del edificio Bajo contrato
Características del edificio
- Sistema de seguridad
Espacios disponibles
- Espacio
- Tamaño
- Uso
- Acondicionamiento
- Disponible
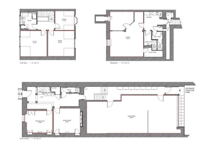
The space comprises 502 SQ FT of office space arranged over the lower ground floor. The space benefits from a modern specification and heating. The subjects are available on the basis of a new full repairing and insuring lease. Flexible terms are available. The subjects are available on the basis of a new full repairing and insuring lease. Flexible terms are available.
El espacio comprende 1,474 pies cuadrados de espacio de oficinas dispuesto en la planta baja. El espacio se beneficia de una especificación y calefacción modernas. Las asignaturas están disponibles sobre la base de un nuevo contrato de arrendamiento completo de reparación y seguro. Hay términos flexibles disponibles. Las asignaturas están disponibles sobre la base de un nuevo contrato de arrendamiento completo de reparación y seguro. Hay términos flexibles disponibles.
El espacio comprende 575 pies cuadrados de espacio de oficina distribuidos en el primer piso. El espacio se beneficia de una especificación y calefacción modernas. Las asignaturas están disponibles sobre la base de un nuevo contrato de arrendamiento completo de reparación y seguro. Hay términos flexibles disponibles.
| Espacio | Tamaño | Uso | Acondicionamiento | Disponible |
| Nivel inferior | 47 m² | Oficina | Construcción total | Inmediata |
| Planta baja | 137 m² | Oficina | Construcción total | Inmediata |
| Planta 1 | 53 m² | Oficina | Construcción total | Inmediata |
Nivel inferior
| Tamaño |
| 47 m² |
| Uso |
| Oficina |
| Acondicionamiento |
| Construcción total |
| Disponible |
| Inmediata |
Planta baja
| Tamaño |
| 137 m² |
| Uso |
| Oficina |
| Acondicionamiento |
| Construcción total |
| Disponible |
| Inmediata |
Planta 1
| Tamaño |
| 53 m² |
| Uso |
| Oficina |
| Acondicionamiento |
| Construcción total |
| Disponible |
| Inmediata |
Nivel inferior
| Tamaño | 47 m² |
| Uso | Oficina |
| Acondicionamiento | Construcción total |
| Disponible | Inmediata |
The space comprises 502 SQ FT of office space arranged over the lower ground floor. The space benefits from a modern specification and heating. The subjects are available on the basis of a new full repairing and insuring lease. Flexible terms are available. The subjects are available on the basis of a new full repairing and insuring lease. Flexible terms are available.
Planta baja
| Tamaño | 137 m² |
| Uso | Oficina |
| Acondicionamiento | Construcción total |
| Disponible | Inmediata |
El espacio comprende 1,474 pies cuadrados de espacio de oficinas dispuesto en la planta baja. El espacio se beneficia de una especificación y calefacción modernas. Las asignaturas están disponibles sobre la base de un nuevo contrato de arrendamiento completo de reparación y seguro. Hay términos flexibles disponibles. Las asignaturas están disponibles sobre la base de un nuevo contrato de arrendamiento completo de reparación y seguro. Hay términos flexibles disponibles.
Planta 1
| Tamaño | 53 m² |
| Uso | Oficina |
| Acondicionamiento | Construcción total |
| Disponible | Inmediata |
El espacio comprende 575 pies cuadrados de espacio de oficina distribuidos en el primer piso. El espacio se beneficia de una especificación y calefacción modernas. Las asignaturas están disponibles sobre la base de un nuevo contrato de arrendamiento completo de reparación y seguro. Hay términos flexibles disponibles.
Elaborado por
Empresa no proporcionada
4 Albert St
Parece que se ha producido un error al enviar tu mensaje. Vuelve a intentarlo.
Gracias. Se ha enviado tu mensaje.






