Tu correo electrónico ha sido enviado.



Parte de la información se ha traducido automáticamente.
Resumen ejecutivo
The property at 27 Mars Road, Lane Cove, is a multi-use flex building comprising a ground-floor retail area at the front, four levels of office space above, and a rear section that includes a ground-floor warehouse with an additional office level above it. The layout is designed to accommodate a mix of functions, with the retail component providing street frontage, the upper office floors offering multiple levels of workspace, and the warehouse section at the back allowing for storage or light industrial use with direct access for loading.
2 UNidades disponibles
- Unidad
- Tamaño
- Uso
- Precio
- Ingresos netos de explotación
| Tipo de venta | Inversión o usuario propietario | Referencia catastral/ID de terreno | CP/-/SP83285 |
| N.º de plazas de parking | 3 |
| Tipo de venta | Inversión o usuario propietario |
| N.º de plazas de parking | 3 |
| Referencia catastral/ID de terreno | CP/-/SP83285 |
The upper level comprises approximately 95 m² of light-filled office space, including two glass-partitioned rooms ideal for private offices or meeting areas, complemented by open-plan workstations and a lunch area. Full-width windows at the front and rear enhance natural light and ventilation, while independent reverse-cycle air conditioning ensures year-round comfort. A well-appointed kitchen completes the first floor.
The ground level offers approximately 95 m² of warehouse space with an electric roller shutter door for efficient loading, an elevated rear window for natural light, a secondary kitchen, and a bathroom with disabled access. Additional amenities include a common shower on-site, with the option to install a private shower if desired. The property includes three basement car spaces (one tandem) and casual parking directly in front of the unit.
Positioned in a tightly held estate with gated security and 24/7 remote-controlled access, this property combines convenience, security, and versatility in a sought-after Lane Cove location.
Key selling points include:
50/50 office-to-warehouse configuration
Light-filled offices with partitioned rooms and open-plan areas
Two kitchens and bathroom with disabled access
Electric roller shutter door for warehouse access
Three basement car spaces plus casual parking
Secure gated estate with 24/7 remote-controlled entry
Currently leased on a short-term basis to a long-standing tenant, the property offers options for investors or owner-occupiers, with the ability to negotiate a new lease or take possession with two months’ notice.
| Tipo de venta | Inversión o usuario propietario | Referencia catastral/ID de terreno | CP/-/SP83285 |
| N.º de plazas de parking | 2 |
| Tipo de venta | Inversión o usuario propietario |
| N.º de plazas de parking | 2 |
| Referencia catastral/ID de terreno | CP/-/SP83285 |
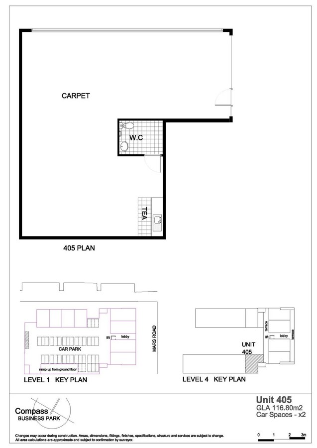
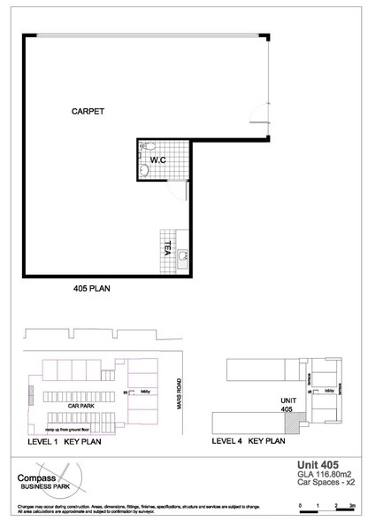
The suite is fully self-contained, featuring a private kitchen and bathroom, along with individual air conditioning for year-round comfort. Access is seamless, with pedestrian entry via a secure street-facing foyer equipped with intercom and lift, as well as goods-lift access from the loading dock for efficient deliveries. Two secure basement car spaces are included, enhancing convenience for staff or visitors.
Located within a well-maintained industrial estate, this property offers a rare opportunity to secure a versatile workspace in a sought-after Lane Cove location, with easy connectivity to major arterial roads and Sydney’s business hubs.
Key selling points include:
Flexible open-plan design suitable for multiple business uses
Excellent natural light from three sides
Private amenities and individual climate control
Direct goods-lift access from the loading dock
Two secure basement car spaces
With its combination of affordability, functionality, and location, Suite 405 represents smart buying in one of Lane Cove’s most desirable business parks.
| Unidad | Tamaño | Uso | Precio | Ingresos netos de explotación |
| Unidad 206 | 190 m² | Flex | Bajo solicitud | - |
| Unidad 405 | 117 m² | Oficina | 355.935 € (3.043,09 €/m²) | - |
Unidad 206
| Tamaño |
| 190 m² |
| Uso |
| Flex |
| Precio |
| Bajo solicitud |
| Ingresos netos de explotación |
| - |
Unidad 405
| Tamaño |
| 117 m² |
| Uso |
| Oficina |
| Precio |
| 355.935 € (3.043,09 €/m²) |
| Ingresos netos de explotación |
| - |
Unidad 206
| Tamaño | 190 m² |
| Uso | Flex |
| Precio | Bajo solicitud |
| Ingresos netos de explotación | - |
| Tipo de venta | Inversión o usuario propietario |
| N.º de plazas de parking | 3 |
| Referencia catastral/ID de terreno | CP/-/SP83285 |
| Descripción | |
| Located within the secure and well-maintained Compass Business Park, this modern industrial unit offers a highly functional two-level configuration combining office and warehouse space. Spanning approximately 190 m², the property features a balanced 50/50 split between office and warehouse areas, providing flexibility for a range of business operations.<br> <br> The upper level comprises approximately 95 m² of light-filled office space, including two glass-partitioned rooms ideal for private offices or meeting areas, complemented by open-plan workstations and a lunch area. Full-width windows at the front and rear enhance natural light and ventilation, while independent reverse-cycle air conditioning ensures year-round comfort. A well-appointed kitchen completes the first floor.<br> The ground level offers approximately 95 m² of warehouse space with an electric roller shutter door for efficient loading, an elevated rear window for natural light, a secondary kitchen, and a bathroom with disabled access. Additional amenities include a common shower on-site, with the option to install a private shower if desired. The property includes three basement car spaces (one tandem) and casual parking directly in front of the unit.<br> <br> Positioned in a tightly held estate with gated security and 24/7 remote-controlled access, this property combines convenience, security, and versatility in a sought-after Lane Cove location.</li></ul> | |
| Notas de venta | |
| An outstanding opportunity to secure a modern industrial unit in the highly regarded Compass Business Park. Offering a total of 190 m² across two levels, this property provides a functional mix of office and warehouse space, ideal for businesses seeking flexibility and convenience.<br> Key selling points include:<br> <br> 50/50 office-to-warehouse configuration<br> Light-filled offices with partitioned rooms and open-plan areas<br> Two kitchens and bathroom with disabled access<br> Electric roller shutter door for warehouse access<br> Three basement car spaces plus casual parking<br> Secure gated estate with 24/7 remote-controlled entry<br> <br> Currently leased on a short-term basis to a long-standing tenant, the property offers options for investors or owner-occupiers, with the ability to negotiate a new lease or take possession with two months’ notice.</li></ul> |
Unidad 405
| Tamaño | 117 m² |
| Uso | Oficina |
| Precio | 355.935 € (3.043,09 €/m²) |
| Ingresos netos de explotación | - |
| Tipo de venta | Inversión o usuario propietario |
| N.º de plazas de parking | 2 |
| Referencia catastral/ID de terreno | CP/-/SP83285 |
| Descripción | |
| Positioned on the top floor of the highly regarded Compass Business Park, this modern industrial office or technical suite combines functionality with contemporary design. Spanning 117 m², the property benefits from abundant natural light on three sides, creating a bright and productive environment. The open-plan layout offers flexibility for a range of uses, including office, showroom, storage, or light technical applications.<br> <br> The suite is fully self-contained, featuring a private kitchen and bathroom, along with individual air conditioning for year-round comfort. Access is seamless, with pedestrian entry via a secure street-facing foyer equipped with intercom and lift, as well as goods-lift access from the loading dock for efficient deliveries. Two secure basement car spaces are included, enhancing convenience for staff or visitors.<br> <br> Located within a well-maintained industrial estate, this property offers a rare opportunity to secure a versatile workspace in a sought-after Lane Cove location, with easy connectivity to major arterial roads and Sydney’s business hubs.</li></ul> | |
| Notas de venta | |
| An exceptional opportunity to acquire a quality, self-contained suite in Compass Business Park for just $580,000 plus GST. This property delivers outstanding value for owner-occupiers or investors seeking a functional, low-maintenance asset in a thriving business precinct.<br> Key selling points include:<br> <br> Flexible open-plan design suitable for multiple business uses<br> Excellent natural light from three sides<br> Private amenities and individual climate control<br> Direct goods-lift access from the loading dock<br> Two secure basement car spaces<br> <br> With its combination of affordability, functionality, and location, Suite 405 represents smart buying in one of Lane Cove’s most desirable business parks.</li></ul> |
Información del edificio
| Tamaño total del edificio | 6.684 m² | Plantas | 4 |
| Tipo de inmueble | Flex | Tamaño de planta tipo | 1.671 m² |
| Clase de edificio | C | Tamaño del terreno | 0,55 ha |
| Tamaño total del edificio | 6.684 m² |
| Tipo de inmueble | Flex |
| Clase de edificio | C |
| Plantas | 4 |
| Tamaño de planta tipo | 1.671 m² |
| Tamaño del terreno | 0,55 ha |
Elaborado por
27 Mars Rd
Parece que se ha producido un error al enviar tu mensaje. Vuelve a intentarlo.
Gracias. Se ha enviado tu mensaje.




