Tu correo electrónico ha sido enviado.



Parte de la información se ha traducido automáticamente.
Aspectos destacados
- Ground and lower ground floor trading areas
- Nearby occupiers include Nandos, Costa, Greggs. KFC and Superdrug
- Major throughfare road with high levels of footfall
Espacios disponibles (1)
Mostrar el precio como
- Espacio
- Tamaño
- Duración
- Precio
- Tipo
| Espacio | Tamaño | Duración | Precio | Tipo de alquiler | ||
| Planta baja | 1.369 m² | Negociable | 138,25 € /m²/año 11,52 € /m²/mes 189.204 € /año 15.767 € /mes | Reparación y seguros completos |
Planta baja
Offered by way of a new lease with a passing rent of £165,000 per annum, exclusive.
- Clase de uso: E
- Ubicado en línea con otros locales
- Loading to rear
- Splitting considered
- Across ground and basement
Gastos de comunidad
La cuota del alquiler y los gastos de comunidad que el inquilino (arrendatario) es responsable de pagar al propietario (arrendador) a lo largo del plazo del alquiler se negocian antes de que ambas partes firmen el contrato de alquiler. Los gastos de comunidad variarán en función de los servicios ofrecidos. Contactar con el agente del anuncio para conocer mejor los costes asociados a cada tipo de servicios o sus gastos adicionales.
1. Reparación y seguros completos: Todas las obligaciones de reparación y seguros del inmueble (o su parte del inmueble), ya sean interna o externamente.
2. Solo reparación interna: El inquilino solo es responsable de las reparaciones internas. El propietario es responsable de las reparaciones estructurales y externas.
3. Reparación y seguros internos: El inquilino solo es responsable de las reparaciones internas y del seguro de las partes internas del inmueble. El propietario es responsable de las reparaciones estructurales y externas.
4. Negociable o por det.: Se usa cuando el contacto de alquiler no establece los gastos de comunidad
Principales inquilinos en 27-31 London Rd, Brighton, ESX BN1 4LE
- Inquilino
- Descripción
- UK ubicaciones
- Alcance
- Poundland
- Económica/Variedades/Ahorro
- 944
- Internacional
- Pure Gym
- Fitness
- 649
- Internacional
| Inquilino | Descripción | UK ubicaciones | Alcance |
| Poundland | Económica/Variedades/Ahorro | 944 | Internacional |
| Pure Gym | Fitness | 649 | Internacional |
Información del edificio
| Espacio total disponible | 1.369 m² | Superficie bruta alquilable | 3.332 m² |
| Tipo de inmueble | Local | Año de construcción | 1969 |
| Subtipo de inmueble | Local a pie de calle |
| Espacio total disponible | 1.369 m² |
| Tipo de inmueble | Local |
| Subtipo de inmueble | Local a pie de calle |
| Superficie bruta alquilable | 3.332 m² |
| Año de construcción | 1969 |
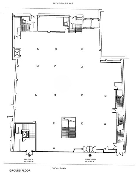
Descripción del inmueble
The property is a substantial mid terrace art deco building with prominent street frontage. The upper floors occupied by PureGym and the ground and lower ground floors offer an open plan trading area. There is a loading point to the rear located in Providence Place. The landlord will consider splitting the premises into two separate units.
Locales cercanos
Elaborado por
27-31 London Rd
Parece que se ha producido un error al enviar tu mensaje. Vuelve a intentarlo.
Gracias. Se ha enviado tu mensaje.



