Tu correo electrónico ha sido enviado.



Parte de la información se ha traducido automáticamente.
Aspectos destacados
- Boutique office building featuring a large, welcoming foyer and high ceilings throughout.
- Back-to-base security monitoring with secure after-hours access
- Premium end-of-trip facilities
- Direct access to Pacific Highway, with seamless links to the freeway and Sydney Harbour Bridge.
Espacios disponibles(4)
Mostrar el precio como
- Espacio
- Tamaño
- Duración
- Precio
- Uso
- Acondicionamiento
- Disponible
21 Berry Street delivers a thoughtfully designed office environment tailored to small and medium-sized businesses seeking a refreshing alternative to traditional corporate towers. The property blends functionality with comfort, offering a large, inviting foyer uncommon in boutique buildings, onsite showers and bike racks for active commuters, and high ceilings that maximize natural light and create an open, airy feel. On-floor amenities and daily cleaning complement secure features such as back-to-base monitoring and restricted after-hours access, providing peace of mind for tenants. Air-conditioning is easily controlled for after-hours use, ensuring flexibility for modern work patterns. Positioned in the heart of North Sydney, the property is only steps from the new Metro station entrance and a short five-minute walk from North Sydney’s main train line, creating seamless connectivity for your team and visitors. Ample on-street parking, direct access to Pacific Highway, and quick routes to Berry Street, the freeway, and the bridge further enhance accessibility. Nearby cafés, eateries, and Northpoint Eat Street provide abundant options for staff dining and client meetings, enriching the day-to-day experience at this location. Suite 102, measuring approximately 105 sqm, comes thoughtfully fitted with a boardroom accommodating up to 10 people, 12 workstations, an internal kitchenette, and large windows, creating a bright, productive workspace.
- Construido totalmente como Oficina estándar
- 1 sala de conferencias
- Aire acondicionado central
- Espacio diáfano
- Internal kitchenette, and abundant natural light
- Con capacidad para 10-15 personas
- 12 puestos de trabajo
- Luz natural
- Fully fitted suite
- Includes boardroom and multiple workstations
Suite 301 delivers a thoughtfully designed, fully fitted workspace ideal for businesses seeking a turnkey solution in the heart of North Sydney. This suite features a spacious boardroom accommodating up to 10 people, four private offices for focused work, and a dedicated cold call room to support sales teams. The inclusion of an island kitchen creates a central hub for staff collaboration and convenience. North-facing floor-to-ceiling glass floods the space with natural light, creating a bright and energizing environment that enhances productivity and employee well-being. Positioned within a boutique building, Suite 301 combines functionality with a modern aesthetic, making it an attractive option for companies looking to elevate their workplace experience.
- Construido totalmente como Oficina estándar
- Con capacidad para 5-14 personas
- 1 sala de conferencias
- Aire acondicionado central
- Luz natural
- Plano de planta en su mayoría abierta
- 5 oficinas privadas
- Espacio en excelentes condiciones
- Completamente enmoquetado
- Espacio diáfano
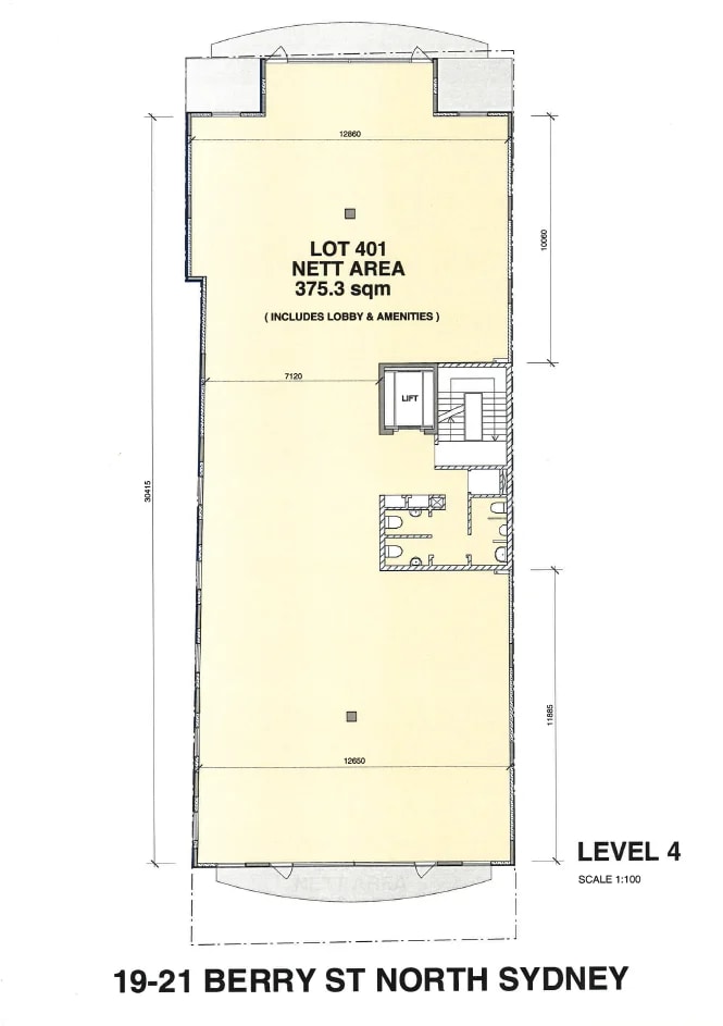
Level 4 offers a rare opportunity to secure a full-floor tenancy in a boutique building, providing flexibility and presence without the constraints of a high-rise tower. This refurbished open-plan space is bathed in natural light from windows on three sides, creating an inspiring and collaborative setting for teams. High ceilings add to the sense of openness, while exclusive on-floor amenities ensure convenience and privacy for staff. The floor can be customized with a tailored fit-out to meet specific operational requirements, giving businesses the ability to create a workspace that reflects their brand and culture. With its combination of size, adaptability, and premium location, Level 4 is an exceptional choice for companies seeking a dynamic and efficient office environment.
- Construido totalmente como Oficina estándar
- Con capacidad para 11-32 personas
- Aire acondicionado central
- Completamente enmoquetado
- Luz natural
- Plano de planta abierta
- Espacio en excelentes condiciones
- Baños privados
- Techos altos
- Espacio diáfano
Level 5 represents the pinnacle of boutique office accommodation, offering a fully fitted whole floor with sweeping views that extend to the Blue Mountains. This premium space includes a boardroom for 8–10 people, a dedicated meeting room, multiple private offices, and an expansive open-plan area designed for collaboration. A well-appointed kitchen and breakout zone provide a comfortable space for staff to recharge, while additional features such as store rooms, a comms room, and exclusive on-floor amenities with a shower enhance functionality. The highlight of this floor is its private balcony, offering a unique outdoor space for informal meetings or staff gatherings. Delivered as a refurbished fitted-out environment, Level 5 combines practicality with an impressive outlook, making it a standout option for businesses that value both performance and prestige.
- Construido totalmente como Oficina estándar
- Con capacidad para 10-29 personas
- Aire acondicionado central
- Completamente enmoquetado
- Luz natural
- Plano de planta abierta
- Espacio en excelentes condiciones
- Baños privados
- Techos altos
- Espacio diáfano
| Espacio | Tamaño | Duración | Precio | Uso | Acondicionamiento | Disponible |
| Planta 1, módulo 102 | 105 m² | Negociable | Bajo solicitud Bajo solicitud Bajo solicitud Bajo solicitud | Oficina | Construcción total | Inmediata |
| Planta 3, módulo 301 | 163 m² | Negociable | Bajo solicitud Bajo solicitud Bajo solicitud Bajo solicitud | Oficina | Construcción total | Inmediata |
| Planta 4 | 375 m² | Negociable | Bajo solicitud Bajo solicitud Bajo solicitud Bajo solicitud | Oficina | Construcción total | Inmediata |
| Planta 5 | 347 m² | Negociable | Bajo solicitud Bajo solicitud Bajo solicitud Bajo solicitud | Oficina | Construcción total | Inmediata |
Planta 1, módulo 102
| Tamaño |
| 105 m² |
| Duración |
| Negociable |
| Precio |
| Bajo solicitud Bajo solicitud Bajo solicitud Bajo solicitud |
| Uso |
| Oficina |
| Acondicionamiento |
| Construcción total |
| Disponible |
| Inmediata |
Planta 3, módulo 301
| Tamaño |
| 163 m² |
| Duración |
| Negociable |
| Precio |
| Bajo solicitud Bajo solicitud Bajo solicitud Bajo solicitud |
| Uso |
| Oficina |
| Acondicionamiento |
| Construcción total |
| Disponible |
| Inmediata |
Planta 4
| Tamaño |
| 375 m² |
| Duración |
| Negociable |
| Precio |
| Bajo solicitud Bajo solicitud Bajo solicitud Bajo solicitud |
| Uso |
| Oficina |
| Acondicionamiento |
| Construcción total |
| Disponible |
| Inmediata |
Planta 5
| Tamaño |
| 347 m² |
| Duración |
| Negociable |
| Precio |
| Bajo solicitud Bajo solicitud Bajo solicitud Bajo solicitud |
| Uso |
| Oficina |
| Acondicionamiento |
| Construcción total |
| Disponible |
| Inmediata |
Planta 1, módulo 102
| Tamaño | 105 m² |
| Duración | Negociable |
| Precio | Bajo solicitud |
| Uso | Oficina |
| Acondicionamiento | Construcción total |
| Disponible | Inmediata |
21 Berry Street delivers a thoughtfully designed office environment tailored to small and medium-sized businesses seeking a refreshing alternative to traditional corporate towers. The property blends functionality with comfort, offering a large, inviting foyer uncommon in boutique buildings, onsite showers and bike racks for active commuters, and high ceilings that maximize natural light and create an open, airy feel. On-floor amenities and daily cleaning complement secure features such as back-to-base monitoring and restricted after-hours access, providing peace of mind for tenants. Air-conditioning is easily controlled for after-hours use, ensuring flexibility for modern work patterns. Positioned in the heart of North Sydney, the property is only steps from the new Metro station entrance and a short five-minute walk from North Sydney’s main train line, creating seamless connectivity for your team and visitors. Ample on-street parking, direct access to Pacific Highway, and quick routes to Berry Street, the freeway, and the bridge further enhance accessibility. Nearby cafés, eateries, and Northpoint Eat Street provide abundant options for staff dining and client meetings, enriching the day-to-day experience at this location. Suite 102, measuring approximately 105 sqm, comes thoughtfully fitted with a boardroom accommodating up to 10 people, 12 workstations, an internal kitchenette, and large windows, creating a bright, productive workspace.
- Construido totalmente como Oficina estándar
- Con capacidad para 10-15 personas
- 1 sala de conferencias
- 12 puestos de trabajo
- Aire acondicionado central
- Luz natural
- Espacio diáfano
- Fully fitted suite
- Internal kitchenette, and abundant natural light
- Includes boardroom and multiple workstations
Planta 3, módulo 301
| Tamaño | 163 m² |
| Duración | Negociable |
| Precio | Bajo solicitud |
| Uso | Oficina |
| Acondicionamiento | Construcción total |
| Disponible | Inmediata |
Suite 301 delivers a thoughtfully designed, fully fitted workspace ideal for businesses seeking a turnkey solution in the heart of North Sydney. This suite features a spacious boardroom accommodating up to 10 people, four private offices for focused work, and a dedicated cold call room to support sales teams. The inclusion of an island kitchen creates a central hub for staff collaboration and convenience. North-facing floor-to-ceiling glass floods the space with natural light, creating a bright and energizing environment that enhances productivity and employee well-being. Positioned within a boutique building, Suite 301 combines functionality with a modern aesthetic, making it an attractive option for companies looking to elevate their workplace experience.
- Construido totalmente como Oficina estándar
- Plano de planta en su mayoría abierta
- Con capacidad para 5-14 personas
- 5 oficinas privadas
- 1 sala de conferencias
- Espacio en excelentes condiciones
- Aire acondicionado central
- Completamente enmoquetado
- Luz natural
- Espacio diáfano
Planta 4
| Tamaño | 375 m² |
| Duración | Negociable |
| Precio | Bajo solicitud |
| Uso | Oficina |
| Acondicionamiento | Construcción total |
| Disponible | Inmediata |
Level 4 offers a rare opportunity to secure a full-floor tenancy in a boutique building, providing flexibility and presence without the constraints of a high-rise tower. This refurbished open-plan space is bathed in natural light from windows on three sides, creating an inspiring and collaborative setting for teams. High ceilings add to the sense of openness, while exclusive on-floor amenities ensure convenience and privacy for staff. The floor can be customized with a tailored fit-out to meet specific operational requirements, giving businesses the ability to create a workspace that reflects their brand and culture. With its combination of size, adaptability, and premium location, Level 4 is an exceptional choice for companies seeking a dynamic and efficient office environment.
- Construido totalmente como Oficina estándar
- Plano de planta abierta
- Con capacidad para 11-32 personas
- Espacio en excelentes condiciones
- Aire acondicionado central
- Baños privados
- Completamente enmoquetado
- Techos altos
- Luz natural
- Espacio diáfano
Planta 5
| Tamaño | 347 m² |
| Duración | Negociable |
| Precio | Bajo solicitud |
| Uso | Oficina |
| Acondicionamiento | Construcción total |
| Disponible | Inmediata |
Level 5 represents the pinnacle of boutique office accommodation, offering a fully fitted whole floor with sweeping views that extend to the Blue Mountains. This premium space includes a boardroom for 8–10 people, a dedicated meeting room, multiple private offices, and an expansive open-plan area designed for collaboration. A well-appointed kitchen and breakout zone provide a comfortable space for staff to recharge, while additional features such as store rooms, a comms room, and exclusive on-floor amenities with a shower enhance functionality. The highlight of this floor is its private balcony, offering a unique outdoor space for informal meetings or staff gatherings. Delivered as a refurbished fitted-out environment, Level 5 combines practicality with an impressive outlook, making it a standout option for businesses that value both performance and prestige.
- Construido totalmente como Oficina estándar
- Plano de planta abierta
- Con capacidad para 10-29 personas
- Espacio en excelentes condiciones
- Aire acondicionado central
- Baños privados
- Completamente enmoquetado
- Techos altos
- Luz natural
- Espacio diáfano
Descripción general del inmueble
19–21 Berry Street in North Sydney delivers a boutique office experience tailored for businesses seeking a distinctive alternative to traditional corporate towers. The building features a spacious, welcoming foyer, high ceilings, and abundant natural light, complemented by modern conveniences such as onsite showers, bike racks, secure parking, and daily cleaning. Tenants benefit from back-to-base security monitoring, secure after-hours access, and easy air-conditioning activation. Ideally located just steps from the new Metro station and a short walk to North Sydney train line, the property offers direct access to the Pacific Highway, freeway connections, and the Sydney Harbour Bridge. Surrounded by vibrant amenities including Northpoint Eat Street and numerous cafes, 19–21 Berry Street combines connectivity, functionality, and comfort in one of Sydney’s most dynamic commercial precincts.
- Acceso 24 horas
- Almacén/trastero
- Techos altos
- Exposición directa al ascensor
- Espacio diáfano
- Oficinas divisibles
- Almacenamiento seguro
- Aire acondicionado
- Balcón
Información del edificio
Elaborado por
21 Berry St
Parece que se ha producido un error al enviar tu mensaje. Vuelve a intentarlo.
Gracias. Se ha enviado tu mensaje.








