Iniciar sesión/Registrarse
Tu correo electrónico ha sido enviado.



Parte de la información se ha traducido automáticamente.
ASPECTOS DESTACADOS
- Attractive situation
- Close to local amenties
- Transport links
RESUMEN EJECUTIVO
The site currently consists of a building, with a footprint measuring approx. 3,367 SqFt that has been used as a Nursery. Situated in the heart of local amenties such as restaurants, health centres, shops. There is also Barnehurst trainline close for transport links
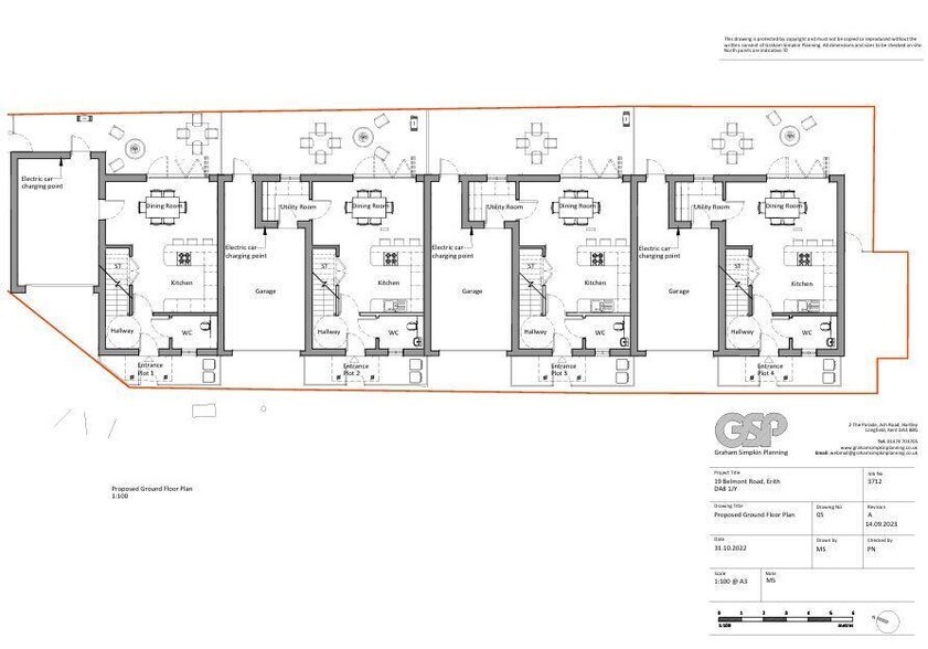
A development site with planning permission for 4 x 3 bedroom dwellings with integrated garages. Planning permission approved by London Borough of Bexley. Full details can be found under the reference - 22/02978/FUL Planning expires in October 2026
A development site with planning permission for 4 x 3 bedroom dwellings with integrated garages. Planning permission approved by London Borough of Bexley. Full details can be found under the reference - 22/02978/FUL Planning expires in October 2026
INFORMACIÓN DEL EDIFICIO
Tipo de venta
Usuario propietario
Condición de venta
Venta de subasta
Tipo de inmueble
Local
Tenencia
Plena propiedad
Subtipo de inmueble
Guardería
Tamaño del edificio
313 m²
Clase de edificio
B
Año de construcción
1971
Precio
870.909 €
Precio por m²
2.784,20 €
Alquiler
Único inquilino
Altura del edificio
1 planta
Parking
5 espacios (15,98 espacios por 1.000 m² alquilado)
Fachada
CARACTERÍSTICAS DEL EDIFICIO
- Línea de autobús
- Señalización
1 1
LOCALES CERCANOS
1 de 12
VÍDEOS
MATTERPORT TOUR EXTERIOR EN 3D
MATTERPORT TOUR EN 3D
FOTOS
STREET VIEW
CALLE
MAPA
1 de 1
Elaborado por
19 Belmont Rd
¿Tienes cuenta con nosotros? Iniciar sesión
Parece que se ha producido un error al enviar tu mensaje. Vuelve a intentarlo.
Gracias. Se ha enviado tu mensaje.
