Tu correo electrónico ha sido enviado.



Parte de la información se ha traducido automáticamente.
Aspectos destacados
- High-exposure location with dual street frontage and rear lane access.
- Ability to park cars within the showroom and warehouse areas.
Características
Espacio disponibles(1)
Mostrar el precio como
- Espacio
- Tamaño
- Duración
- Precio
- Uso
- Acondicionamiento
- Disponible
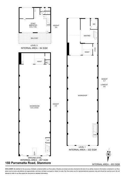
Los espacios 3 de este edificio se deben alquilar en conjunto, hasta una superficie total de 653 m² (Superficie contigua):
150 Parramatta Road offers a rare opportunity to secure a high-exposure showroom and workshop facility in the heart of Sydney’s Inner West. Positioned along Parramatta Road with dual street frontage and rear lane access, this property provides exceptional visibility and accessibility just 6 km* from the CBD. The building spans 653 m²* across three functional levels, including a ground floor showroom, a first-floor workshop, and a second-floor caretaker unit. The property is council-approved for mechanical workshop use and features a goods hoist, additional mezzanine storage, and the ability to park vehicles within the showroom and warehouse areas. With prominent signage rights and a long lease available, this is a unique offering not seen on the market for over 30 years. The location benefits from immediate access to major arterial routes including City West Link and Parramatta Road, ensuring strong connectivity to the CBD and surrounding suburbs. The first floor comprises a council-approved mechanical workshop with generous ceiling heights and a goods hoist connecting to the showroom below. This level is included in the full-building lease and is not available individually.
- Espacio en excelentes condiciones
- Aire acondicionado central
- High-exposure location with dual street frontage
- Prominent signage rights
- Staff amenities
- 1 zona de carga
- Baños privados
- Ground floor showroom with vehicle access
- Long lease terms available
| Espacio | Tamaño | Duración | Precio | Uso | Acondicionamiento | Disponible |
| Planta baja, Planta 1, Planta 2 | 653 m² | Negociable | Bajo solicitud Bajo solicitud Bajo solicitud Bajo solicitud | Flex | Construcción parcial | Inmediata |
Planta baja, Planta 1, Planta 2
Los espacios 3 de este edificio se deben alquilar en conjunto, hasta una superficie total de 653 m² (Superficie contigua):
| Tamaño |
|
Planta baja - 267 m²
Planta 1 - 322 m²
Planta 2 - 64 m²
|
| Duración |
| Negociable |
| Precio |
| Bajo solicitud Bajo solicitud Bajo solicitud Bajo solicitud |
| Uso |
| Flex |
| Acondicionamiento |
| Construcción parcial |
| Disponible |
| Inmediata |
Planta baja, Planta 1, Planta 2
| Tamaño |
Planta baja - 267 m²
Planta 1 - 322 m²
Planta 2 - 64 m²
|
| Duración | Negociable |
| Precio | Bajo solicitud |
| Uso | Flex |
| Acondicionamiento | Construcción parcial |
| Disponible | Inmediata |
150 Parramatta Road offers a rare opportunity to secure a high-exposure showroom and workshop facility in the heart of Sydney’s Inner West. Positioned along Parramatta Road with dual street frontage and rear lane access, this property provides exceptional visibility and accessibility just 6 km* from the CBD. The building spans 653 m²* across three functional levels, including a ground floor showroom, a first-floor workshop, and a second-floor caretaker unit. The property is council-approved for mechanical workshop use and features a goods hoist, additional mezzanine storage, and the ability to park vehicles within the showroom and warehouse areas. With prominent signage rights and a long lease available, this is a unique offering not seen on the market for over 30 years. The location benefits from immediate access to major arterial routes including City West Link and Parramatta Road, ensuring strong connectivity to the CBD and surrounding suburbs. The first floor comprises a council-approved mechanical workshop with generous ceiling heights and a goods hoist connecting to the showroom below. This level is included in the full-building lease and is not available individually.
- Espacio en excelentes condiciones
- 1 zona de carga
- Aire acondicionado central
- Baños privados
- High-exposure location with dual street frontage
- Ground floor showroom with vehicle access
- Prominent signage rights
- Long lease terms available
- Staff amenities
Descripción general del inmueble
The property at 150 Parramatta Road, Stanmore, is a three-level building totaling 653 m²*. It includes a ground floor showroom, a first-floor workshop, and a second-floor caretaker unit. The site has dual street frontage, rear lane access, and is located approximately 6 km from the Sydney CBD. It is accessible via Parramatta Road and City West Link. The property is council-approved for mechanical workshop use and includes a goods hoist and additional mezzanine storage.
Información del edificio
Elaborado por
150 Parramatta Rd
Parece que se ha producido un error al enviar tu mensaje. Vuelve a intentarlo.
Gracias. Se ha enviado tu mensaje.



