Tu correo electrónico ha sido enviado.
Parte de la información se ha traducido automáticamente.
ASPECTOS DESTACADOS
- Bâtiment implanté en cœur de ville avec accès immédiat aux transports
- Cadre urbain actif, bien desservi et propice à une activité professionnelle
- Environnement pratique avec commerces, services et école à deux pas
ESPACIOS DISPONIBLES(2)
Mostrar el precio como
- ESPACIO
- TAMAÑO
- DURACIÓN
-
PRECIO
- USO
- DISTRIBUCIÓN
- DISPONIBILIDAD
Situé au pied d’un programme neuf de 77 logements et bénéficiant d’un emplacement stratégique sur la Nationale 3, ce local de 71,52 m² est proposé brut de béton, avec fluides en attente. L’espace dispose d’un linéaire de façade de 11 mètres, idéal pour une activité visible, et d’une hauteur sous plafond de 2,71 m. Il est équipé d’une gaine d’extraction et d’un tarif bleu 36 kVA, permettant une polyvalence d’aménagement, notamment pour un usage libéral, médical ou de commerce de proximité. Le local est livré sans menuiseries extérieures ni vitrines, laissant une grande liberté de personnalisation pour le preneur. Ce bien se positionne comme une adresse de choix, au cœur d’un quartier dynamique où l’enseigne Carrefour City est déjà implantée.
- Depósito de seguridad: 6.258 €
- Ubicado en línea con otros locales
- Almacenamiento seguro
- 177 m² en angle, façade 25 m, brut à aménager
- Extraction, fibre, TJ 72 kVA : prêt pour restaurat
- Construido totalmente como Espacio comercial estándar
- Espacio en excelentes condiciones
- Techos acabados: 2,71 metros
- Extraction, fibre, TJ 72 kVA : prêt pour restaurat
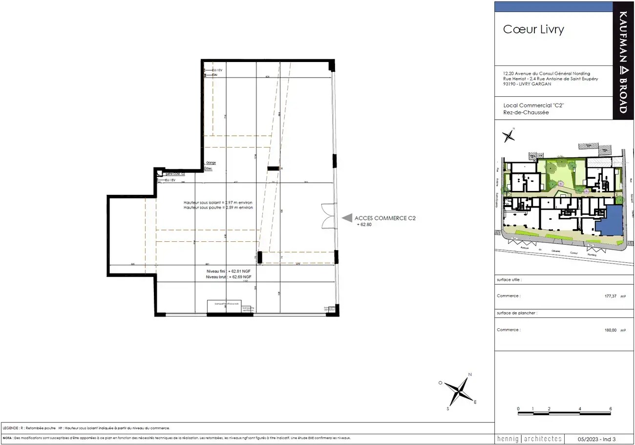
Ce local commercial de 177 m² en rez-de-chaussée offre une configuration d’angle idéale, avec un linéaire de façade de 25 mètres apportant une excellente visibilité. Livré brut de béton avec fluides en attente, il permet une personnalisation complète selon l’activité prévue. Une hauteur sous plafond de 2,97 mètres favorise un aménagement spacieux et lumineux. Une gaine d’extraction est déjà prévue, adaptée notamment aux activités de restauration ou de boulangerie artisanale. Le local bénéficie d’un raccordement en fibre optique et d’un tarif jaune de 72 kVA, adapté aux besoins énergétiques renforcés. La présence d’un espace terrasse et de places de parking ajoute au confort d’exploitation. Ce local est immédiatement disponible, sans droit d’entrée, sous contrat de bail 6/9/10.
- Depósito de seguridad: 14.189 €
- Ubicado en línea con otros locales
- Almacenamiento seguro
- 177 m² en angle, façade 25 m, brut à aménager
- Extraction, fibre, TJ 72 kVA : prêt pour restaurat
- Construido totalmente como Espacio comercial estándar
- Espacio en excelentes condiciones
- Techos acabados: 2,97 metros
- Extraction, fibre, TJ 72 kVA : prêt pour restaurat
| Espacio | Tamaño | Duración | Precio | Uso | Distribución | Disponible |
| Planta baja, módulo C1 | 72 m² | 6-10 Años | 350,00 € /m²/año HT-HC 29,17 € /m²/mes HT-HC 25.200 € /año HT-HC 2.100 € /mes HT-HC | Local | Construcción total | Inmediata |
| Planta baja, módulo C2 | 177 m² | 6-10 Años | 350,00 € /m²/año HT-HC 29,17 € /m²/mes HT-HC 61.950 € /año HT-HC 5.163 € /mes HT-HC | Local | Construcción total | Inmediata |
Planta baja, módulo C1
| Tamaño |
| 72 m² |
| Duración |
| 6-10 Años |
|
Precio
|
| 350,00 € /m²/año HT-HC 29,17 € /m²/mes HT-HC 25.200 € /año HT-HC 2.100 € /mes HT-HC |
| Uso |
| Local |
| Distribución |
| Construcción total |
| Disponible |
| Inmediata |
Planta baja, módulo C2
| Tamaño |
| 177 m² |
| Duración |
| 6-10 Años |
|
Precio
|
| 350,00 € /m²/año HT-HC 29,17 € /m²/mes HT-HC 61.950 € /año HT-HC 5.163 € /mes HT-HC |
| Uso |
| Local |
| Distribución |
| Construcción total |
| Disponible |
| Inmediata |
Planta baja, módulo C1
| Tamaño | 72 m² |
| Duración | 6-10 Años |
|
Precio
|
2.100 € /mes HT-HC |
| Uso | Local |
| Distribución | Construcción total |
| Disponible | Inmediata |
Situé au pied d’un programme neuf de 77 logements et bénéficiant d’un emplacement stratégique sur la Nationale 3, ce local de 71,52 m² est proposé brut de béton, avec fluides en attente. L’espace dispose d’un linéaire de façade de 11 mètres, idéal pour une activité visible, et d’une hauteur sous plafond de 2,71 m. Il est équipé d’une gaine d’extraction et d’un tarif bleu 36 kVA, permettant une polyvalence d’aménagement, notamment pour un usage libéral, médical ou de commerce de proximité. Le local est livré sans menuiseries extérieures ni vitrines, laissant une grande liberté de personnalisation pour le preneur. Ce bien se positionne comme une adresse de choix, au cœur d’un quartier dynamique où l’enseigne Carrefour City est déjà implantée.
- Depósito de seguridad: 6.258 €
- Construido totalmente como Espacio comercial estándar
- Ubicado en línea con otros locales
- Espacio en excelentes condiciones
- Almacenamiento seguro
- Techos acabados: 2,71 metros
- 177 m² en angle, façade 25 m, brut à aménager
- Extraction, fibre, TJ 72 kVA : prêt pour restaurat
- Extraction, fibre, TJ 72 kVA : prêt pour restaurat
Planta baja, módulo C2
| Tamaño | 177 m² |
| Duración | 6-10 Años |
|
Precio
|
5.163 € /mes HT-HC |
| Uso | Local |
| Distribución | Construcción total |
| Disponible | Inmediata |
Ce local commercial de 177 m² en rez-de-chaussée offre une configuration d’angle idéale, avec un linéaire de façade de 25 mètres apportant une excellente visibilité. Livré brut de béton avec fluides en attente, il permet une personnalisation complète selon l’activité prévue. Une hauteur sous plafond de 2,97 mètres favorise un aménagement spacieux et lumineux. Une gaine d’extraction est déjà prévue, adaptée notamment aux activités de restauration ou de boulangerie artisanale. Le local bénéficie d’un raccordement en fibre optique et d’un tarif jaune de 72 kVA, adapté aux besoins énergétiques renforcés. La présence d’un espace terrasse et de places de parking ajoute au confort d’exploitation. Ce local est immédiatement disponible, sans droit d’entrée, sous contrat de bail 6/9/10.
- Depósito de seguridad: 14.189 €
- Construido totalmente como Espacio comercial estándar
- Ubicado en línea con otros locales
- Espacio en excelentes condiciones
- Almacenamiento seguro
- Techos acabados: 2,97 metros
- 177 m² en angle, façade 25 m, brut à aménager
- Extraction, fibre, TJ 72 kVA : prêt pour restaurat
- Extraction, fibre, TJ 72 kVA : prêt pour restaurat
INFORMACIÓN DEL EDIFICIO
| Espacio total disponible | 249 m² | Estilo del apartamento | Edificios de mediana altura |
| Tipo de inmueble | Edificio residencial | Tamaño del edificio | 15.526 m² |
| Subtipo de inmueble | Apartamento | Año de construcción | 2024 |
| Espacio total disponible | 249 m² |
| Tipo de inmueble | Edificio residencial |
| Subtipo de inmueble | Apartamento |
| Estilo del apartamento | Edificios de mediana altura |
| Tamaño del edificio | 15.526 m² |
| Año de construcción | 2024 |
DESCRIPCIÓN DEL INMUEBLE
Ce bâtiment de plusieurs étages est situé dans un secteur animé et central de Livry-Gargan, à proximité immédiate des services du quotidien. Son environnement combine des commerces de proximité, des établissements scolaires et un bon maillage de transports, notamment plusieurs lignes de bus à quelques pas. L’accessibilité au tramway et la présence d’équipements sportifs et de santé renforcent l’attractivité de ce site, parfaitement adapté à une implantation professionnelle dans un cadre fonctionnel et vivant.
LOCALES CERCANOS
Elaborado por
Main Street
12 Av Du Consul General Nordling
Parece que se ha producido un error al enviar tu mensaje. Vuelve a intentarlo.
Gracias. Se ha enviado tu mensaje.



