Tu correo electrónico ha sido enviado.



Parte de la información se ha traducido automáticamente.
Aspectos destacados
- La planta baja tenía escaparates tradicionales al estilo de la calle principal.
- El 111-112 Cheyne Walk se encuentra cerca de Chelsea Embankment y Kings Road, dentro del área protegida de The Royal Borough of Kensington y Chelsea.
- Excelente ubicación en esquina.
Resumen ejecutivo
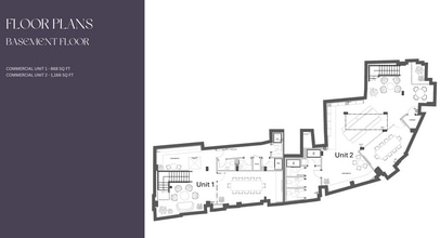
Las unidades comerciales están disponibles en condiciones Shell y Core distribuidas en tres pisos: sótano, planta baja y primer piso, y la unidad comercial 2 y la unidad minorista se pueden combinar en el sótano para crear una unidad más grande.
Ideal para propietarios, ocupantes o inversores que buscan equipar y alquilar unidades individuales.
Información del edificio
Características del edificio
- Línea de autobús
- Señalización
Espacios disponibles
- Espacio
- Tamaño
- Uso
- Posición
- Disponible
Las unidades comerciales están disponibles en estado Shell and Core en tres plantas: sótano, planta baja y primer piso. La Unidad Comercial 2 y la unidad de Retail se pueden combinar en el nivel del sótano para crear una unidad más grande. Perfecto para un propietario ocupante o un inversor que quiera acondicionar y alquilar unidades individuales.
Las unidades comerciales están disponibles en estado Shell and Core en tres plantas: sótano, planta baja y primer piso. La Unidad Comercial 2 y la unidad de Retail se pueden combinar en el nivel del sótano para crear una unidad más grande. Ideal para un propietario ocupante o un inversor que quiera acondicionar y alquilar unidades individuales.
The commercial units are available in Shell and Core condition over two floors, basement and ground. Ideal for an owner occupier or an Investor looking to fit out and let individual units.
Las unidades comerciales están disponibles en estado Shell and Core en tres plantas: sótano, planta baja y primer piso. La Unidad Comercial 2 y la unidad de Retail se pueden combinar en el nivel del sótano para crear una unidad más grande. Perfecto para un propietario ocupante o un inversor que quiera acondicionar y alquilar unidades individuales.
Las unidades comerciales están disponibles en estado Shell and Core en tres plantas: sótano, planta baja y primer piso. La Unidad Comercial 2 y la unidad de Retail se pueden combinar en el nivel del sótano para crear una unidad más grande. Perfecto para un propietario ocupante o un inversor que quiera acondicionar y alquilar unidades individuales.
The commercial units are available in Shell and Core condition over three floors, basement, ground and first floor, with Commercial Unit 2 and the Retail unit can be combined at basement level to create one larger unit. Ideal for an owner occupier or an Investor looking to fit out and let individual units.
Las unidades comerciales están disponibles en estado Shell and Core en tres plantas: sótano, planta baja y primer piso. La Unidad Comercial 2 y la unidad de Retail se pueden combinar en el nivel del sótano para crear una unidad más grande. Perfecto para un propietario ocupante o un inversor que quiera acondicionar y alquilar unidades individuales.
| Espacio | Tamaño | Uso | Posición | Disponible |
| 1 | 81 m² | Oficina/Local | En línea | Inmediata |
| 2 | 76 m² | Oficina/Local | En línea | Inmediata |
| 3 | 32 m² | Oficina/Local | En línea | Inmediata |
| 1 | 108 m² | Oficina/Local | En línea | Inmediata |
| 2 | 82 m² | Oficina/Local | En línea | Inmediata |
| 3 | 50 m² | Oficina/Local | En línea | Inmediata |
| 1 | 148 m² | Oficina/Local | En línea | Inmediata |
1
| Tamaño |
| 81 m² |
| Uso |
| Oficina/Local |
| Posición |
| En línea |
| Disponible |
| Inmediata |
2
| Tamaño |
| 76 m² |
| Uso |
| Oficina/Local |
| Posición |
| En línea |
| Disponible |
| Inmediata |
3
| Tamaño |
| 32 m² |
| Uso |
| Oficina/Local |
| Posición |
| En línea |
| Disponible |
| Inmediata |
1
| Tamaño |
| 108 m² |
| Uso |
| Oficina/Local |
| Posición |
| En línea |
| Disponible |
| Inmediata |
2
| Tamaño |
| 82 m² |
| Uso |
| Oficina/Local |
| Posición |
| En línea |
| Disponible |
| Inmediata |
3
| Tamaño |
| 50 m² |
| Uso |
| Oficina/Local |
| Posición |
| En línea |
| Disponible |
| Inmediata |
1
| Tamaño |
| 148 m² |
| Uso |
| Oficina/Local |
| Posición |
| En línea |
| Disponible |
| Inmediata |
1
| Tamaño | 81 m² |
| Uso | Oficina/Local |
| Posición | En línea |
| Disponible | Inmediata |
Las unidades comerciales están disponibles en estado Shell and Core en tres plantas: sótano, planta baja y primer piso. La Unidad Comercial 2 y la unidad de Retail se pueden combinar en el nivel del sótano para crear una unidad más grande. Perfecto para un propietario ocupante o un inversor que quiera acondicionar y alquilar unidades individuales.
2
| Tamaño | 76 m² |
| Uso | Oficina/Local |
| Posición | En línea |
| Disponible | Inmediata |
Las unidades comerciales están disponibles en estado Shell and Core en tres plantas: sótano, planta baja y primer piso. La Unidad Comercial 2 y la unidad de Retail se pueden combinar en el nivel del sótano para crear una unidad más grande. Ideal para un propietario ocupante o un inversor que quiera acondicionar y alquilar unidades individuales.
3
| Tamaño | 32 m² |
| Uso | Oficina/Local |
| Posición | En línea |
| Disponible | Inmediata |
The commercial units are available in Shell and Core condition over two floors, basement and ground. Ideal for an owner occupier or an Investor looking to fit out and let individual units.
1
| Tamaño | 108 m² |
| Uso | Oficina/Local |
| Posición | En línea |
| Disponible | Inmediata |
Las unidades comerciales están disponibles en estado Shell and Core en tres plantas: sótano, planta baja y primer piso. La Unidad Comercial 2 y la unidad de Retail se pueden combinar en el nivel del sótano para crear una unidad más grande. Perfecto para un propietario ocupante o un inversor que quiera acondicionar y alquilar unidades individuales.
2
| Tamaño | 82 m² |
| Uso | Oficina/Local |
| Posición | En línea |
| Disponible | Inmediata |
Las unidades comerciales están disponibles en estado Shell and Core en tres plantas: sótano, planta baja y primer piso. La Unidad Comercial 2 y la unidad de Retail se pueden combinar en el nivel del sótano para crear una unidad más grande. Perfecto para un propietario ocupante o un inversor que quiera acondicionar y alquilar unidades individuales.
3
| Tamaño | 50 m² |
| Uso | Oficina/Local |
| Posición | En línea |
| Disponible | Inmediata |
The commercial units are available in Shell and Core condition over three floors, basement, ground and first floor, with Commercial Unit 2 and the Retail unit can be combined at basement level to create one larger unit. Ideal for an owner occupier or an Investor looking to fit out and let individual units.
1
| Tamaño | 148 m² |
| Uso | Oficina/Local |
| Posición | En línea |
| Disponible | Inmediata |
Las unidades comerciales están disponibles en estado Shell and Core en tres plantas: sótano, planta baja y primer piso. La Unidad Comercial 2 y la unidad de Retail se pueden combinar en el nivel del sótano para crear una unidad más grande. Perfecto para un propietario ocupante o un inversor que quiera acondicionar y alquilar unidades individuales.
Locales cercanos
Elaborado por
112 Cheyne Walk
Parece que se ha producido un error al enviar tu mensaje. Vuelve a intentarlo.
Gracias. Se ha enviado tu mensaje.


