Tu correo electrónico ha sido enviado.



Parte de la información se ha traducido automáticamente.
Aspectos destacados
- Servicio de conserjería
- Sala de conferencias con espacio interior/exterior, televisor de alta definición, Wi-Fi y mesas de entrenamiento
- Gimnasio renovado con equipos de la serie elevada Life Fitness que incluyen una máquina de escaleras y un remero, una bicicleta de spinning Peloton, TRX y pesas libres
Espacios disponibles(3)
Mostrar el precio como
- Espacio
- Tamaño
- Duración
- Precio
- Uso
- Acondicionamiento
- Disponible
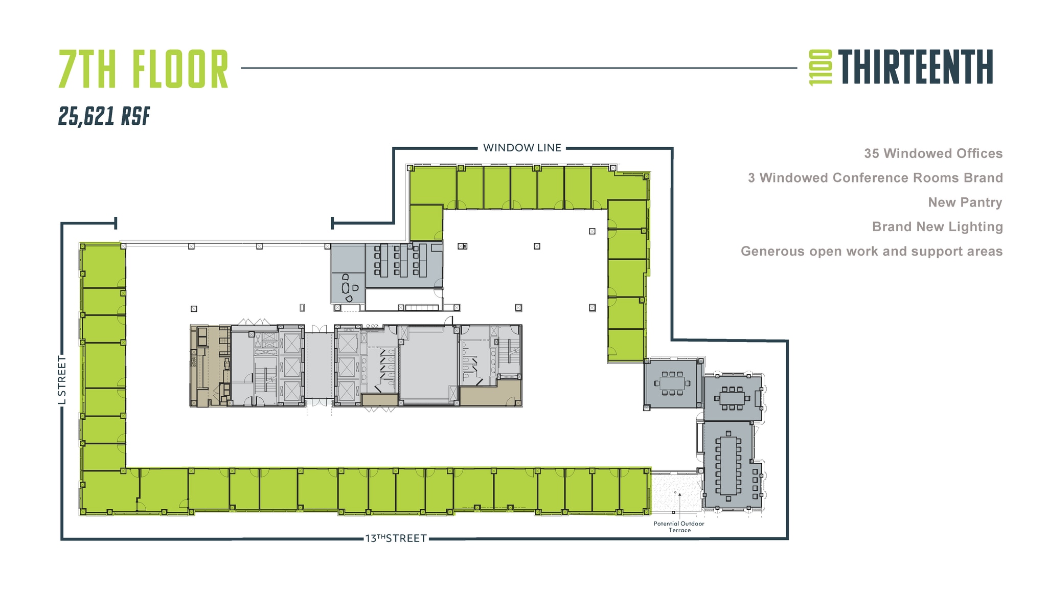
Suite 700 is a bright and inviting "finish ready" full floor featuring 35 windowed offices, 3 windowed conference rooms, generous open work areas, upgraded lighting and a new pantry. Your client can personalize the final finishes and occupy in 60 days! https://my.matterport.com/show/?m=2AAFFr9PQJA
- El precio incluye los servicios básicos y del edificio, y los gastos del inmueble
- 35 oficinas privadas
- Espacio en excelentes condiciones
- Construido totalmente como Oficina estándar
- 5 salas de conferencias
Front of building shell block, easily divisible.
- El precio incluye los servicios básicos y del edificio, y los gastos del inmueble
- Plano de planta en su mayoría abierta
Terrific ready to go space with direct elevator exposure featuring 5 windowed offices, space for over 20 workstations, 10-person conference room and generous open pantry.
- El precio incluye los servicios básicos y del edificio, y los gastos del inmueble
- Plano de planta abierta
- 1 sala de conferencias
- Espacio listo para funcionar.
- Construido totalmente como Oficina estándar
- 5 oficinas privadas
- 24 puestos de trabajo
| Espacio | Tamaño | Duración | Precio | Uso | Acondicionamiento | Disponible |
| Planta 7, módulo 700 | 2.380 m² | Negociable | 495,75 € /m²/año 41,31 € /m²/mes 1.180.016 € /año 98.335 € /mes | Oficina | Construcción total | Inmediata |
| Planta 10 | 1.037 m² | Negociable | 514,11 € /m²/año 42,84 € /m²/mes 533.124 € /año 44.427 € /mes | Oficina | Espacio sin acabar | Inmediata |
| Planta 11, módulo 1150 | 432 m² | Negociable | 459,03 € /m²/año 38,25 € /m²/mes 198.385 € /año 16.532 € /mes | Oficina | Construcción total | Inmediata |
Planta 7, módulo 700
| Tamaño |
| 2.380 m² |
| Duración |
| Negociable |
| Precio |
| 495,75 € /m²/año 41,31 € /m²/mes 1.180.016 € /año 98.335 € /mes |
| Uso |
| Oficina |
| Acondicionamiento |
| Construcción total |
| Disponible |
| Inmediata |
Planta 10
| Tamaño |
| 1.037 m² |
| Duración |
| Negociable |
| Precio |
| 514,11 € /m²/año 42,84 € /m²/mes 533.124 € /año 44.427 € /mes |
| Uso |
| Oficina |
| Acondicionamiento |
| Espacio sin acabar |
| Disponible |
| Inmediata |
Planta 11, módulo 1150
| Tamaño |
| 432 m² |
| Duración |
| Negociable |
| Precio |
| 459,03 € /m²/año 38,25 € /m²/mes 198.385 € /año 16.532 € /mes |
| Uso |
| Oficina |
| Acondicionamiento |
| Construcción total |
| Disponible |
| Inmediata |
Planta 7, módulo 700
| Tamaño | 2.380 m² |
| Duración | Negociable |
| Precio | 98.335 € /mes |
| Uso | Oficina |
| Acondicionamiento | Construcción total |
| Disponible | Inmediata |
Suite 700 is a bright and inviting "finish ready" full floor featuring 35 windowed offices, 3 windowed conference rooms, generous open work areas, upgraded lighting and a new pantry. Your client can personalize the final finishes and occupy in 60 days! https://my.matterport.com/show/?m=2AAFFr9PQJA
- El precio incluye los servicios básicos y del edificio, y los gastos del inmueble
- Construido totalmente como Oficina estándar
- 35 oficinas privadas
- 5 salas de conferencias
- Espacio en excelentes condiciones
Planta 10
| Tamaño | 1.037 m² |
| Duración | Negociable |
| Precio | 44.427 € /mes |
| Uso | Oficina |
| Acondicionamiento | Espacio sin acabar |
| Disponible | Inmediata |
Front of building shell block, easily divisible.
- El precio incluye los servicios básicos y del edificio, y los gastos del inmueble
- Plano de planta en su mayoría abierta
Planta 11, módulo 1150
| Tamaño | 432 m² |
| Duración | Negociable |
| Precio | 16.532 € /mes |
| Uso | Oficina |
| Acondicionamiento | Construcción total |
| Disponible | Inmediata |
Terrific ready to go space with direct elevator exposure featuring 5 windowed offices, space for over 20 workstations, 10-person conference room and generous open pantry.
- El precio incluye los servicios básicos y del edificio, y los gastos del inmueble
- Construido totalmente como Oficina estándar
- Plano de planta abierta
- 5 oficinas privadas
- 1 sala de conferencias
- 24 puestos de trabajo
- Espacio listo para funcionar.
Descripción general del inmueble
A solo una cuadra al norte de la icónica Franklin Square, en la confluencia del Distrito Central de Negocios de DC y el East End, el recientemente renovado 1100 13th Street ofrece un entorno de oficina sin igual y SIN DEUDAS. Con 254 000 pies cuadrados de espacio de oficinas de clase A y 16 000 pies cuadrados de espacio comercial, hay suficiente espacio para expandirse y hacer fluir sus ideas. Las comodidades incluyen un amplio espacio para reuniones, un gimnasio con vestuarios, un patio ajardinado y un estacionamiento subterráneo. Cerca del nuevo centro de convenciones de Washington, del centro de la ciudad y de numerosos restaurantes, hoteles y espacios al aire libre, 1100 13th Street realmente lo tiene todo.
- Control de accesos
- Centro de conferencias
- Patio
- Gimnasio
- Property manager en las instalaciones
- Calefacción central
- Aire acondicionado
- Balcón
Información del edificio
Principales inquilinos
- Planta
- Nombre del inquilino
- Sector
- Varios
- Associated Press
- Información
- Varios
- Banner & Witcoff, Ltd.
- Servicios técnicos, científicos y profesionales
- 8
- Bryant Miller Olive
- Servicios técnicos, científicos y profesionales
- 9
- Hearst-Argyle Television
- Información
- 7
- Kiplinger
- Información
- Varios
- National Committee for Quality Assurance
- Servicios
- 4
- The E.W. Scripps Company
- Información
Sostenibilidad
Sostenibilidad
Certificación LEED LEED (acrónimo de «liderazgo en energía y diseño medioambiental» en inglés) es una certificación para edificaciones sostenibles desarrollada por el USGBC (Consejo de la Construcción Ecológica de Estados Unidos), centrada en el diseño, construcción, gestión y mantenimiento de edificios, viviendas y barrios sostenibles. El objetivo de esta certificación es ayudar a los propietarios y gestores de edificaciones a ser responsables con el medioambiente y usar los recursos de manera eficiente. La certificación LEED es un símbolo de logros y liderazgo en materia de sostenibilidad reconocido mundialmente. Para que un proyecto obtenga la certificación LEED, debe ganar puntos cumpliendo requisitos y ganando créditos relativos a las emisiones de carbono, el consumo de energía y agua, la producción de residuos, el transporte, los materiales, las condiciones sanitarias y la calidad del ambiente interior. Los proyectos pasan por un proceso de verificación y se les conceden puntos que corresponden a una certificación LEED de un nivel determinado: Platinum (80 o más puntos) Gold (entre 60 y 79 puntos) Silver (entre 50 y 59 puntos) Certificado (entre 40 y 49 puntos)
Elaborado por
1100 13th Street NW | 1100 13th St NW
Parece que se ha producido un error al enviar tu mensaje. Vuelve a intentarlo.
Gracias. Se ha enviado tu mensaje.








